Hausansicht
Mögliche Küche
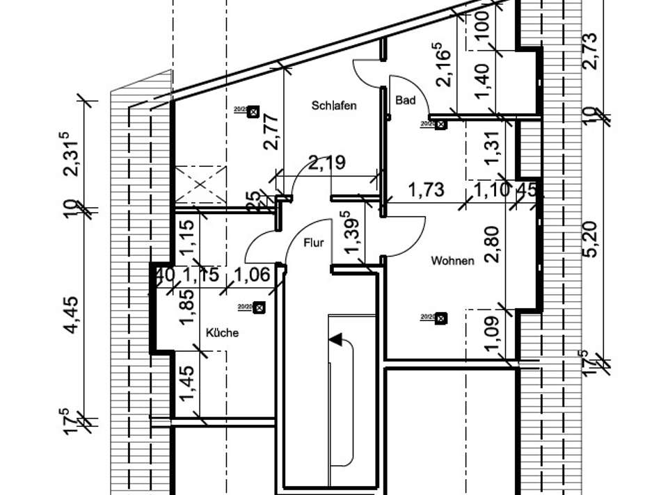
Grundriss

Sanierte Wohnung als Kapitalanlage oder Eigennutz - Ölper Braunschweig

location icon 38114 Innenstadt, Braunschweig
In Zusammenarbeit mit Immoscout Logo

Informationen

Typ
Etagenwohnung
Wohnfläche ca.
46 m²
Nutzfläche ca.
5 m²
Zimmer
2
Schlafzimmer
1
Badezimmer
1
  • Keller
  • Balkon
  • Provisionsfrei

Kosten

Kaufpreis
162.750 €
Hausgeld
100,00 €
Provision für Käufer
Nein

Bausubstanz & Energieausweis

Baujahr
1900
Objektzustand
Saniert
Heizungsart
Gas-Heizung
Wesentlicher Energieträger
Gas

Objektbeschreibung

Sie suchen eine frisch sanierte Fachwerk 2 Zimmer Wohnung in einem schönen Mehrfamilienhaus Fachwerk in bester Lage von Ölper in Braunschweig - und dazu können Sie die Sanierung vorher mitgestalten? Dann sind Sie hier genau richtig. Die Wohnung bietet eine optimale Kapitalanlage zur Vermietung oder als Selbstnutzung.

Wir bieten hier noch eine übrige Wohnungen im Mehrfamilienhaus in der Celler-Heerstraße, die frisch vor der Sanierung stehen.

Eckdaten:
Mehrfamilienhaus Fachwerk - folgende Wohnung steht zur Verfügung

1. Obergeschoß Wohnung 46,5m2 - 2 Zimmer + Küche und Bad


Folgendes bieten wir dazu in dem Preis
- Neue Fenster
- Massives Mauerwerk
- Neues Parkett
- Neue Elektrik
- Neue Leitungen
- Q3 Wände
- Neue Decken 
- Neue Gasheizungen mit Heizkörpern
- Türen
- Bad (Fliesen plus Geräte)

Was können Sie mitgestalten?
- Fußbodenmaterial
- Fliesenfarbe
- Wandfarbe
- Badmaterial

Als Zusatz buchbar:
- Fußbodenheizung
- Küche
- Spezielle Schiebetüren
- Smart Home
- Sicherheitstechnik 
- uvm.
- Parkplatz/Garage/Carport




Sie können gerne bei Interesse Kontakt mit uns aufnehmen, wenn Sie ihre Traumwohnung mit gestalten wollen.

Ausstattung

Zu der Wohnung gibt es 1 Carport dazu

Lage

Sanierte Wohnung als Kapitalanlage oder Eigennutz - Ölper Braunschweig
38114 Innenstadt, Braunschweig

Die genaue Adresse dieses Objekts erhalten Sie vom Anbieter.

Ölper in Braunschweig ist eine äußerst attraktive und vielseitige Lage für Käufer, die eine Wohnung suchen. Der Stadtteil liegt unmittelbar am historischen Zentrum und bietet daher eine perfekte Kombination aus urbanem Leben und angenehmem Wohnkomfort. Hier einige Aspekte, die die Lage besonders schmackhaft machen:

Zentrale Lage mit guter Anbindung: Ölper befindet sich nur wenige Minuten vom Braunschweiger Stadtzentrum entfernt. Das bedeutet, dass Sie alle wichtigen Annehmlichkeiten wie Einkaufsmöglichkeiten, Restaurants, Cafés und kulturelle Einrichtungen schnell erreichen können. Die Anbindung an den öffentlichen Nahverkehr ist hervorragend, mit zahlreichen Bus- und Straßenbahnlinien, die das tägliche Pendeln bequem gestalten.

Grünflächen und Naherholung: Der Hagenmarkt, der Stadtpark und die nahegelegene Osterwohler Wettern sind ideale Rückzugsorte für Erholung inmitten der Stadt. Für Familien mit Kindern oder Hundebesitzern ist dies besonders attraktiv.

Charakteristische Architektur: Das Gebiet zeichnet sich durch eine charmante Mischung aus historischen Altbauten und modernen Neubauten aus, was ihm eine besondere Atmosphäre verleiht. Wer ein großes Interesse an klassischer Architektur oder stilvollen Altbauwohnungen hat, wird hier fündig.

Vielfältige Freizeitmöglichkeiten: In der Umgebung gibt es eine breite Auswahl an Freizeitmöglichkeiten, darunter Fitnessstudios, Sportvereine und kulturelle Einrichtungen wie Theater, Kinos und Museen. Besonders hervorzuheben ist die Nähe zur Braunschweiger Stadthalle, die regelmäßig Veranstaltungen und Konzerte bietet.

Sonstiges

Hier fällt keine Provision an

Anbieter

Waldberg Immobilien GmbH Fallersleber Str. 6, 38442 Wolfsburg / Ehmen

Sanierte Wohnung als Kapitalanlage oder Eigennutz - Ölper Braunschweig

Vertriebsansprechpartner: expose.salutation.NO_SALUTATION Cornelius Dertmann

Weitere Informationen finden Sie unter:
http://www.waldberg-immobilien.de (Website)
Impressum des Anbieters

Hausansicht location icon 38114 Innenstadt, Braunschweig
Wohnfläche
46 m²
Zimmer
2
Kaufpreis
162.750 €
Finanzierung berechnen Anbieter kontaktieren