Maisonette -Altbauwohnungen + Balkon renovierungsbedürftig - Theaterwall Braunschweig

location icon 38100 Innenstadt, Braunschweig
In Zusammenarbeit mit Immoscout Logo

Informationen

Typ
Etagenwohnung
Wohnfläche ca.
125 m²
Nutzfläche ca.
15 m²
Zimmer
4
Schlafzimmer
4
Badezimmer
2
  • Keller
  • Balkon
  • Provisionsfrei

Kosten

Kaufpreis
487.500 €
Hausgeld
250,00 €
Provision für Käufer
Nein

Bausubstanz & Energieausweis

Baujahr
1900
Objektzustand
Renovierungsbedürftig
Heizungsart
Gas-Heizung
Wesentlicher Energieträger
Gas

Objektbeschreibung

Sie suchen eine großzügige Wohnung mit Altbaucharme in einem Mehrfamilienhaus mit 5 Wohneinheiten in bester Lage von Braunschweig, dem Theaterwall? Dann sind Sie hier genau richtig.
Denkmalschutz liegt ebenfalls vor, was einen enormen Steuervorteil mit sich bringen kann.

Wir bieten hier noch 1 von 3 übrige Wohnungen im Mehrfamilienhaus im Theaterwall, die renovierungsbedarf haben.

Eckdaten:
Mehrfamilienhaus bestehend aus 5 Wohneinheiten
2 Wohnungen stehen zum Verkauf

Erdgeschoß
1 Obergeschoß
jeweils 125 m2 Wohnfläche

Parkplatz extra oder Garage


Die Wohnung ist aus den 80igern und wurde teileweise in der 90igern saniert.

Da die Wohnungen verfügen über viele Leichtbauwände, somit gibt es viele Gestaltungsmöglichkeiten. So könnte man aus den 4 Zimmer nauch 5 gestalten.

Bei Details gerne kontaktieren.

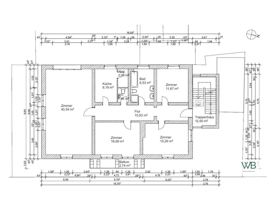
Grundriss

Zimmer mit Balkon

Ausstattung

Gastheizung
Balkon
Parkplätze
5-6 Zimmer

Lage

Maisonette -Altbauwohnungen + Balkon renovierungsbedürftig - Theaterwall Braunschweig
38100 Innenstadt, Braunschweig

Die genaue Adresse dieses Objekts erhalten Sie vom Anbieter.

Der Theaterwall in Braunschweig ist eine äußerst attraktive und vielseitige Lage für Käufer, die eine Wohnung suchen. Der Stadtteil liegt unmittelbar am historischen Zentrum und bietet daher eine perfekte Kombination aus urbanem Leben und angenehmem Wohnkomfort. Hier einige Aspekte, die die Lage besonders schmackhaft machen:

Zentrale Lage mit guter Anbindung: Das östliche Ringgebiet befindet sich nur wenige Minuten vom Braunschweiger Stadtzentrum entfernt. Das bedeutet, dass Sie alle wichtigen Annehmlichkeiten wie Einkaufsmöglichkeiten, Restaurants, Cafés und kulturelle Einrichtungen schnell erreichen können. Die Anbindung an den öffentlichen Nahverkehr ist hervorragend, mit zahlreichen Bus- und Straßenbahnlinien, die das tägliche Pendeln bequem gestalten.

Grünflächen und Naherholung: Trotz seiner zentralen Lage bietet Der Theaterwall zahlreiche Grünflächen, die zum Entspannen und Spazieren einladen. Der Hagenmarkt, der Stadtpark und die nahegelegene Osterwohler Wettern sind ideale Rückzugsorte für Erholung inmitten der Stadt. Für Familien mit Kindern oder Hundebesitzern ist dies besonders attraktiv.

Charakteristische Architektur: Das Gebiet zeichnet sich durch eine charmante Mischung aus historischen Altbauten und modernen Neubauten aus, was ihm eine besondere Atmosphäre verleiht. Wer ein großes Interesse an klassischer Architektur oder stilvollen Altbauwohnungen hat, wird hier fündig.

Vielfältige Freizeitmöglichkeiten: In der Umgebung gibt es eine breite Auswahl an Freizeitmöglichkeiten, darunter Fitnessstudios, Sportvereine und kulturelle Einrichtungen wie Theater, Kinos und Museen. Besonders hervorzuheben ist die Nähe zur Braunschweiger Stadthalle, die regelmäßig Veranstaltungen und Konzerte bietet.

Wachstum und Entwicklung: Der Theaterwall hat in den letzten Jahren eine positive Entwicklung durchgemacht und ist weiterhin ein aufstrebendes Viertel. Neue Cafés, Restaurants und kleine Geschäfte prägen zunehmend das Straßenbild.

Sonstiges

Hier fällt keine Provision an

Anbieter

Waldberg Immobilien GmbH Fallersleber Str. 6, 38442 Wolfsburg / Ehmen

Maisonette -Altbauwohnungen + Balkon renovierungsbedürftig - Theaterwall Braunschweig

Vertriebsansprechpartner: expose.salutation.NO_SALUTATION Cornelius Dertmann

Weitere Informationen finden Sie unter:
http://www.waldberg-immobilien.de (Website)
Impressum des Anbieters

Zimmer mit Balkon location icon 38100 Innenstadt, Braunschweig
Wohnfläche
125 m²
Zimmer
4
Kaufpreis
487.500 €
Finanzierung berechnen Anbieter kontaktieren