Ein Zuhause, das wirklich zu eurem Leben passt.

location icon 59348 Lüdinghausen
In Zusammenarbeit mit Immoscout Logo

Informationen

Haustyp
Einfamilienhaus (freistehend)
Etagenanzahl
2
Wohnfläche ca.
166 m²
Nutzfläche ca.
12,2 m²
Grundstücksfläche ca.
545 m²
Zimmer
6
Schlafzimmer
5
Badezimmer
2
  • Gäste-WC
  • Provisionsfrei

Kosten

Kaufpreis
524.539 €
Provision für Käufer
Nein

Bausubstanz & Energieausweis

Baujahr
unbekannt
Bauphase
Haus in Planung (projektiert)
Objektzustand
Erstbezug

Objektbeschreibung

Mit mir baust Du DEIN Haus, nicht irgendein Haus... Was ich damit meine?

Überzeuge Dich sich selbst davon, dass Du in meiner Beratung im Mittelpunkt stehst! 

Es ist mir ganz besonders wichtig, dass wir möglichst all Deine Wünsche zur Realität machen werden.

Der richtige Ansprechpartner als Baupartner ist besonders wichtig, schließlich bauen viele Menschen nur einmal. Wenn Du es wünschst, werde ich Dir dabei helfen, Dein Ziel entspannt und sicher zu erreichen. 

Du hast mein Wort darauf! 

Ich freue mich auf Dich!

Alle Infos über Ihre Ansprechpartnerin:
Marlen Weber
mobil: 0152 256 67 118

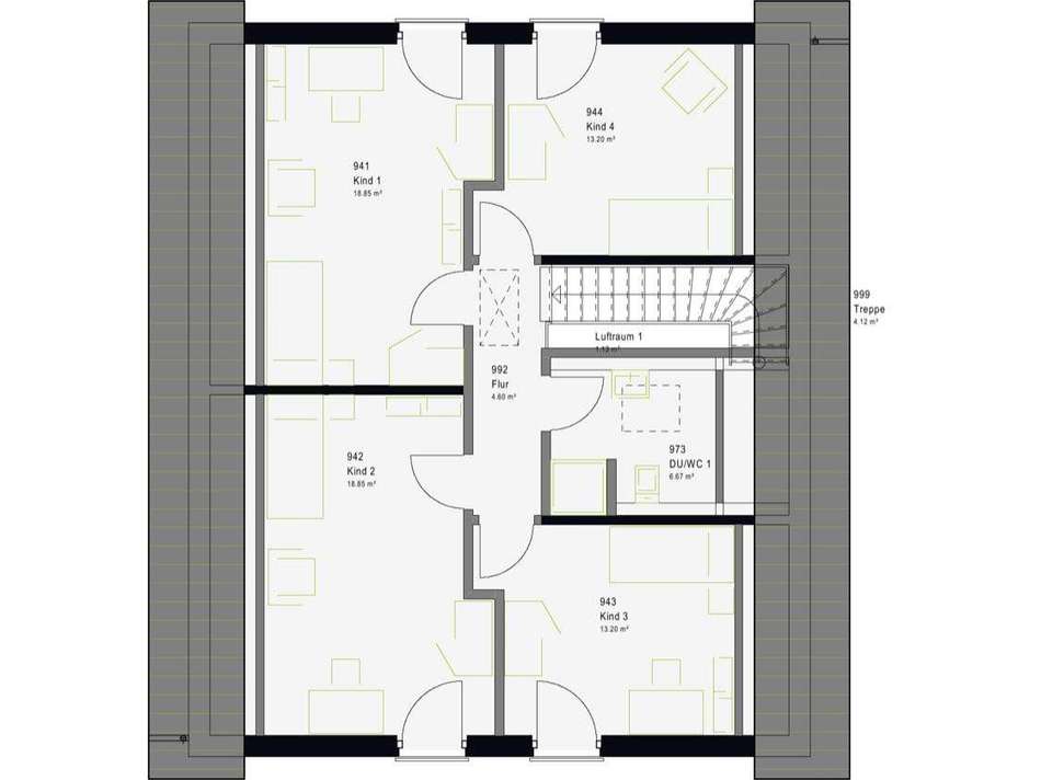
Grundriss

Grundriss Erdgeschoss
Grundriss Erdgeschoss
Grundriss Dachgeschoss
Grundriss Dachgeschoss

Ausstattung

Warum aktuell kein Weg an massahaus und einem Energiesparhaus vorbei führt:

- 15 Monate Kaufpreisgarantie
- Unfassbar kurze Lieferzeiten (ca. 14 Wochen ab Baugenehmigung)
- Sei dein eigener Energieerzeuger
- Strom selbst erzeugen und speichern
- Abgestimmte Haustechnik mit neuster Wärmepumpentechnik 
- Nutze den eigenen Strom für die Wallbox und lade dein Auto
- Hocheffiziente und hochgedämmte Energiesparhäuser bauen - dadurch fast keine Energiekosten haben
- Hoher Beitrag zum Klimaschutz durch dauerhafte CO2-Speicherung

Lage

Ein Zuhause, das wirklich zu eurem Leben passt.
59348 Lüdinghausen

Die genaue Adresse dieses Objekts erhalten Sie vom Anbieter.

Das hier angebotene Grundstück wird durch einen unserer vielen Grundstückspartner separat vermarktet. 
Der Grundstückpreis ist im angegebenen Kaufpreis enthalten.

Nicht Ihre favorisierte Lage?
Mit unserem KOSTENLOSEN Grundstücksservice für unsere Baupartner finden wir gemeinsam auch Ihr Traumgrundstück.

Sonstiges

Ihre Vorteile im Überblick:

+ 45 Jahre Erfahrung
+ über 40.000 gebaute Häuser und zufriedene Baufamilien 
+ innovative Top-Architektur
+ KfW Energieeffizienzhaus 55
+ das herausragende massa-Preis-Leistungs-Verhältnis
+ energiesparendes massa-ecobalance-SYSTEM
+ tolle Hausauswahl, über 60 verschiedene Haustypen
+ Fenster mit 3-fach Verglasung
+ 5 Jahre Gesamtgarantie nach BGB
+ TÜV-Siegel Toxproof für gesundes Wohnen
+ kompetente Hausberatung in 75 Musterhäusern in ganz Deutschland
+ Beratung vor Ort
+ Grundstücksservice
+ unabhängige externe Finanzierungsberatung
+ Sonderzinsprogramme 
+ schnelle Bauzeiten, kompetente Baubetreuung 
+ gesundes Wohnen und zertifizierte Top-Qualität vom Ausbauhaus-Marktführer 
+ Made in Germany 
und vieles mehr 

AUF EIN EHRLICHES WORT: Ein Haus zu bauen ist Vertrauenssache! 
Niemand kann oder sollte per Internet ein Haus planen oder erwerben. 

Dafür sollte Ihnen selber das Thema zu wichtig sein. 

Haben wir Ihr Interesse geweckt? 
Rufen Sie gleich an und vereinbaren Sie einen kostenlosen und unverbindlichen Beratungstermin.
Oder besichtigen Sie unser Musterhaus in Arnsberg.

Hinweis zu den gesetzlichen Pflichtangaben gemäß GEG:
Das hier angebotene Haus ist ein Neubauprojekt und es liegt daher noch kein Energieausweis vor. Dieser wird Ihnen spätestens im Rahmen der Erstellung des Objektes ausgehändigt!

Ihre massa haus Vertriebspartnerin

Marlen Weber

mobil: 0152 256 67 118
http://www.massa-haus.de
http://blog.massa-haus.de

DATENSCHUTZINFORMATION:

https://www.massa-haus.de/kontakt/datenschutzerkl%C3%A4rung.html

Hausbau im Zeitraffer
https://www.youtube.com/embed/xlLt48f6h7s
Bemusterung mobau Wirtz und Claasen
https://www.youtube.com/embed/L94jGcCf8No
Offizielles Massa Haus Video
https://www.youtube.com/embed/atj3PuczaKo
Dämmen und Beplanken
https://www.youtube.com/embed/VBf_v-hFqQY
Fliesen legen leicht gemacht
http://www.youtube.com/embed/UArX9w9DV9o
My Gekko
http://www.youtube.com/embed/zf0fAiQMCl0

Anbieter

massa haus - Marlen Weber Ermen 3, 59348 Lüdinghausen

Ein Zuhause, das wirklich zu eurem Leben passt.

Vertriebsansprechpartner: Frau Marlen Weber

Weitere Informationen finden Sie unter:
http://www.massa-haus.de (Website)
Impressum des Anbieters

Hausansicht location icon 59348 Lüdinghausen
Wohnfläche
166 m²
Grundstücksfläche
545 m²
Zimmer
6
Kaufpreis
524.539 €
Finanzierung berechnen Anbieter kontaktieren