Vom Rohdiamanten zum Renditeobjekt. Mehrfamilienhaus mir drei Wohnungen in Dusslingen.

location icon 72144 Dußlingen
In Zusammenarbeit mit Immoscout Logo

Informationen

Haustyp
Mehrfamilienhaus
Wohnfläche ca.
184,29 m²
Nutzfläche ca.
67,92 m²
Grundstücksfläche ca.
492 m²
Zimmer
7
Schlafzimmer
5
Badezimmer
3
Anzahl Garage / Stellplatz
1 Garage
  • Gäste-WC
  • Einliegerwohnung

Kosten

Kaufpreis
619.000 €
Provision für Käufer
4,76% inkl. 19% MwSt.

Bausubstanz & Energieausweis

Baujahr
1960
Objektzustand
Gepflegt
Heizungsart
Zentralheizung
Wesentlicher Energieträger
Öl
Energieausweis
liegt vor
Energieausweistyp
Bedarfsausweis
Endenergiebedarf
168,83 kWh/(m²*a)
Energie­effizienz­klasse
F
168,83 kWh/(m²*a)
Energie­effizienz­klasse F
  • A+
  • A
  • B
  • C
  • D
  • E
  • F
  • G
  • H
  • 0
  • 25
  • 50
  • 75
  • 100
  • 125
  • 150
  • 175
  • 200
  • 225
  • >250

Objektbeschreibung

Hier wartet eine Chance...

Diese Immobilie bietet Ihnen aktuell zwei vollwertige Wohnungen sowie eine zusätzliche Einheit im Dachgeschoss. Die Wohnflächen verteilen sich dabei auf ca. 76,89 m² im Erdgeschoss, ca. 68,04 m² im Obergeschoss sowie ca. 31,34 m² im Dachgeschoss. Letzteres ist teilweise ausgebaut, eröffnet aber mit etwas Kreativität und Umbaugeschick die Möglichkeit, eine weitere attraktive Wohneinheit zu schaffen.

Das Haus befindet sich in einer ruhigen, gewachsenen Wohnlage von Dusslingen auf einem schönen Grundstück mit viel Platz rund ums Haus. Die Substanz ist solide und die Richtung stimmt: In den letzten Jahren wurden bereits wichtige Maßnahmen begonnen. Neue Bodenbeläge wurden teilweise verlegt, die Fenster durch 2-fach verglaste Kunststofffenster ersetzt, Wände neu verputzt und auch die Elektrik wurde bereits erneuert.

Damit ist ein großer Teil der grundlegenden Arbeiten bereits erledigt... jetzt geht es darum, das Objekt fertigzustellen und nach eigenen Vorstellungen zu vollenden. Insbesondere die Bäder sowie der Außenbereich bieten Ihnen die Möglichkeit, moderne Standards umzusetzen und den Wert der Immobilie deutlich zu steigern.

Das Haus ist vollständig unterkellert und bietet somit zusätzliche Nutz- und Abstellflächen sowie weitere Möglichkeiten zur individuellen Nutzung.

Ein Objekt für Macher. Für Visionäre. Für alle, die nicht nur kaufen, sondern gestalten wollen. Hier entsteht mit dem richtigen Blick und etwas Engagement ein echtes Schmuckstück.

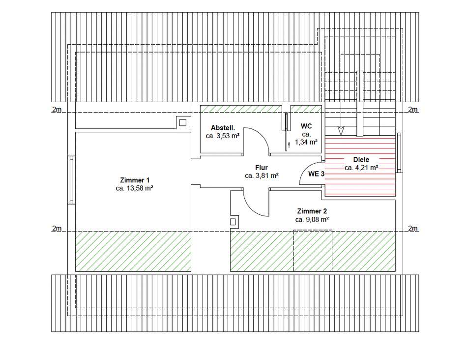
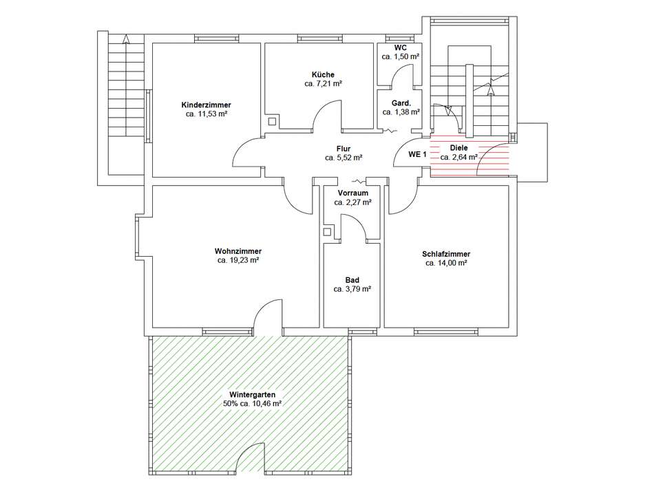
Grundriss

Dachgeschoss
Dachgeschoss
Obergeschoss
Obergeschoss
Erdgeschoss
Erdgeschoss

Ausstattung

Highlights auf einen Blick: 

• 3 Wohneinheiten – zwei vollwertige Wohnungen teilausgebautes Dachgeschoss
• Wohnflächen: ca. 76,89 m² (EG), ca. 68,04 m² (OG), ca. 31,34 m² (DG)
• Dachgeschoss mit großem Entwicklungspotenzial zur zusätzlichen Wohnung
• Großzügiges Grundstück in ruhiger, gewachsener Wohnlage
• Wintergarten im Erdgeschoss als attraktiver Zusatzwohnraum
• Haus vollständig unterkellert mit viel Nutz- und Abstellfläche
• Bereits begonnene Sanierungsmaßnahmen (u. a. Elektrik erneuert)
• Kunststofffenster mit 2-fach Verglasung
• Wände teilweise neu verputzt und Bodenbeläge begonnen
• Ideal für Eigennutzer, Mehrgenerationenwohnen oder Kapitalanleger
• Gute Grundrisse mit hellen, gut geschnittenen Räumen
• Starkes Wertsteigerungspotenzial durch Fertigstellung und Ausbau

Lage

Vom Rohdiamanten zum Renditeobjekt. Mehrfamilienhaus mir drei Wohnungen in Dusslingen.
72144 Dußlingen

Die genaue Adresse dieses Objekts erhalten Sie vom Anbieter.

Dußlingen ist eine äußerst attraktive Gemeinde im Landkreis Tübingen und liegt eingebettet im landschaftlich reizvollen Steinlachtal – zwischen dem Albvorland der Schwäbischen Alb und dem Naturraum des Rammert. Die Lage verbindet auf ideale Weise naturnahes Wohnen mit einer hervorragenden Anbindung an die umliegenden Städte.

Die Universitätsstadt Tübingen ist nur etwa 10 Kilometer entfernt und in wenigen Minuten erreichbar. Auch Reutlingen sowie die gesamte Region Neckar-Alb sind schnell angebunden, was den Standort besonders für Pendler attraktiv macht. Die Bundesstraße B27 verläuft direkt durch das Gemeindegebiet und wurde in den letzten Jahren modern ausgebaut, wodurch eine schnelle Verbindung in Richtung Stuttgart sowie in den Süden gewährleistet ist. Ergänzt wird dies durch einen eigenen Bahnhof an der Bahnstrecke Tübingen–Sigmaringen sowie ein gut ausgebautes Busnetz innerhalb des Verkehrsverbundes naldo.

Dußlingen selbst präsentiert sich als gewachsene, familienfreundliche Gemeinde mit hoher Lebensqualität. Rund 6.000 Einwohner genießen hier eine sehr gute Infrastruktur mit vielseitigem Einzelhandel, medizinischer Versorgung sowie kurzen Wegen im Alltag. Kindertagesstätten, eine Grundschule sowie weiterführende Schulen befinden sich direkt im Ort, was die Gemeinde besonders für Familien attraktiv macht.

Auch wirtschaftlich ist Dußlingen gut aufgestellt: Neben traditionellen Handwerksbetrieben haben sich moderne Unternehmen aus den Bereichen Maschinenbau, Kunststoffverarbeitung und Dienstleistung angesiedelt. Die Nähe zu starken Wirtschaftsstandorten wie Tübingen und Reutlingen sorgt zusätzlich für eine stabile Nachfrage nach Wohnraum.

Die Umgebung bietet zudem einen hohen Freizeit- und Erholungswert. Zahlreiche Spazier- und Radwege entlang der Steinlach, weitläufige Felder sowie die Nähe zur Schwäbischen Alb laden zu vielfältigen Outdoor-Aktivitäten ein. Gleichzeitig profitieren Bewohner von der ruhigen, überschaubaren Struktur eines charmanten Ortes, ohne auf die Vorzüge urbaner Infrastruktur verzichten zu müssen.

Insgesamt vereint Dußlingen eine ruhige, naturnahe Wohnlage mit hervorragender Anbindung und solider Infrastruktur eine Kombination, die sowohl für Eigennutzer als auch für Kapitalanleger äußerst interessant ist.

Sonstiges

Haben wir Ihr Interesse geweckt oder haben Sie weitere Fragen? Überzeugen Sie sich vor Ort bei einer individuellen Besichtigung. 

Gerne stehen wir Ihnen persönlich zur Verfügung:
Mobil    +49 151 55668461
Fax        +49 711 184 278 41
E-Mail   jonas.herrmann@rwm-immobilien.de

Weitere Angebote erwarten Sie auf unserer Homepage: www.rwm-immobilien.de 

Alle im Exposé enthaltenen Angaben beruhen auf Aussagen des/der Eigentümers/Eigentümerin sowie der Hausverwaltung. Unsere Angebote sind freibleibend und in diesem Falle nur für Sie bestimmt. Eine Weitergabe an Dritte bedarf unserer Zustimmung.

Anbieter

RWM Immobilien GmbH Seebronner Straße 1, 72108 Rottenburg am Neckar

Vom Rohdiamanten zum Renditeobjekt. Mehrfamilienhaus mir drei Wohnungen in Dusslingen.

Vertriebsansprechpartner: Herr Jonas Herrmann

Weitere Informationen finden Sie unter:
http://www.rwm-immobilien.de (Website)
Impressum des Anbieters
Widerrufsbelehrung

Titelbild location icon 72144 Dußlingen
Wohnfläche
184,29 m²
Grundstücksfläche
492 m²
Zimmer
7
Kaufpreis
619.000 €
Finanzierung berechnen Anbieter kontaktieren