Raum für Familie, Freiheit und große Pläne - Ein Paradies für Fahrzeugliebhaber und für mehrere Gene

location icon 72768 Oferdingen, Reutlingen
In Zusammenarbeit mit Immoscout Logo

Informationen

Haustyp
Mehrfamilienhaus
Wohnfläche ca.
137,04 m²
Grundstücksfläche ca.
603 m²
Bezugsfrei ab
ab Mitte 2026
Zimmer
7
Badezimmer
2
Anzahl Garage / Stellplatz
2 Garagen
  • Keller

Kosten

Kaufpreis
570.000 €
Provision für Käufer
3,57 % Käuferprovision inkl. Mehrwertsteuer.

Bausubstanz & Energieausweis

Baujahr
1960
Objektzustand
Gepflegt
Heizungsart
Zentralheizung
Wesentlicher Energieträger
Gas
Energieausweis
liegt vor
Energieausweistyp
Bedarfsausweis
Endenergiebedarf
184,8 kWh/(m²*a)
Energie­effizienz­klasse
F
184,8 kWh/(m²*a)
Energie­effizienz­klasse F
  • A+
  • A
  • B
  • C
  • D
  • E
  • F
  • G
  • H
  • 0
  • 25
  • 50
  • 75
  • 100
  • 125
  • 150
  • 175
  • 200
  • 225
  • >250

Objektbeschreibung

Große Wünsche, große Pläne und Raum für jedes Projekt, das dir am Herzen liegt. Hier findest du einen Ort, an dem du dich entfalten und deinen Ideen freien Lauf lassen kannst.

Ob als Mehrgenerationenhaus, als clevere Kombination aus Eigennutzung und Vermietung oder als Refugium für Fahrzeugliebhaber und leidenschaftliche Schrauber – dieses gepflegte Zweifamilienhaus vereint auf beeindruckende Weise Wohnkomfort, Flexibilität und praktischen Nutzraum und bietet eine Vielzahl an Möglichkeiten.

Zwei schöne Wohneinheiten, zwei außergewöhnlich hohe und weitläufige Garagen, ein schöner Garten sowie ein Hobbyraum im Erdgeschoss und das geräumige Untergeschoss machen diese Immobilie zu einem echten Unikat.  Das absolute Herzstück für alle, die Fahrzeuge lieben oder handwerklichen Leidenschaften frönen sind die zwei Garagen. Hier finden Wohnmobile, Wohnwagen, liebevoll gepflegte Oldtimer, Landmaschinen oder Motorräder nicht nur sicheren Unterstand, sondern auch den nötigen Platz für Pflege, Restaurierung und Wartung. Die großzügige Deckenhöhe macht selbst die Unterbringung von hochbauenden Fahrzeugen problemlos möglich. Wer träumt nicht von einer eigenen Werkstatt, in der man in Ruhe tüfteln, schrauben und größere Projekte verwirklichen kann? Hier ist dieser Traum greifbar nah und die findest die perfekte Umgebung für dein Hobby. Direkt hinter dem Haus öffnet sich ein großzügiges Stück Grün. Hier gibt es genügend Raum für spielende Kinder, eigene Gartengestaltung oder schlicht stille Momente in der Natur. Ob Gemüsebeet, Obstgarten, Terrasse oder Feuerstelle – der Garten lädt dazu ein, ihn ganz nach den eigenen Vorstellungen zu gestalten. Diese außergewöhnliche Immobilie ist mehr als ein Haus – es ist ein Ort, an dem Generationen zusammenwachsen, Ideen verwirklicht werden und große Leidenschaften ihren Platz finden. Selten vereint sich so viel Wohnqualität, Nutzungsvielfalt und handwerkliches Potenzial unter einem Dach.

Grundriss

Erdgeschoss
Erdgeschoss
Obergeschoss
Obergeschoss
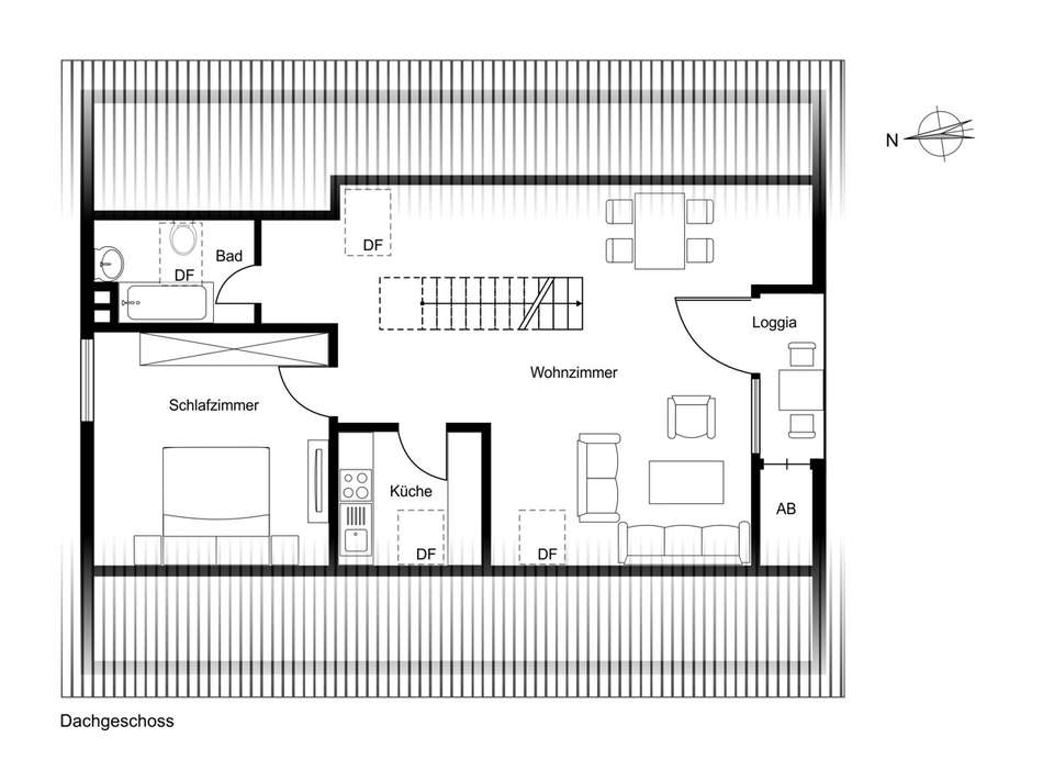
Dachgeschoss
Dachgeschoss

Ausstattung

Die Wohnung im Obergeschoss ist noch bis Juni diesen Jahres vermietet und begeistert durch ihre freundliche, lichtdurchflutete Atmosphäre. Großzügige Fenster in jedem Raum lassen natürliches Tageslicht von morgens bis abends einströmen – ob in der Küche, im Bad oder im weitläufigen Wohnbereich. Mit 4,5 Zimmern bietet diese Einheit reichlich Platz für die Familie. Das Dachgeschoss überzeugt mit einer einladenden Fensterfront, die die Räume den ganzen Tag in warmes Licht taucht und durch die sonnige Loggia mit Blick ins Grüne - ideal zum Entspannen oder für laue Abende im Freien. Mit 2,5 Zimmern eignet sich diese Einheit perfekt als Wohnraum für die jüngere Generation im Mehrgenerationenverbund  oder für eine attraktive Vermietung.  Im Erdgeschoss steht ein großzügiger Hobbyraum zur Verfügung, der vielfältigste Nutzungsmöglichkeiten eröffnet: Werkstatt, Atelier, Homeoffice, Lagerraum oder Fitnessbereich – deiner Fantasie sind keine Grenzen gesetzt. Das Untergeschoss bietet neben der Waschküche zudem genügend Stauraum für alles, was im Alltag nicht ständig benötigt wird. Ob Vorräte, saisonale Gegenstände oder Hobby- und Freizeitutensilien – hier findet alles seinen Platz.

Lage

Raum für Familie, Freiheit und große Pläne - Ein Paradies für Fahrzeugliebhaber und für mehrere Gene
72768 Oferdingen, Reutlingen

Die genaue Adresse dieses Objekts erhalten Sie vom Anbieter.

Dieses großzügige Haus liegt in einem gewachsenen Wohngebiet im Reutlinger Stadtteil Oferdingen – einem Ort, der ländliche Idylle mit urbaner Nähe verbindet. Hier erwartet dich eine grüne, entspannte Umgebung, in der sich Familien ebenso wohlfühlen wie Naturliebhaber, die Wert auf Lebensqualität und Erholung legen.

Die unmittelbare Nachbarschaft ist geprägt von einem angenehmen Miteinander und einer gewachsenen Struktur – ein Ort, an dem man gerne ankommt und bleibt. Gleichzeitig profitierst du von einer guten Infrastruktur: Schulen, Kindergärten und Einkaufsmöglichkeiten sind schnell und unkompliziert erreichbar und machen den Alltag besonders angenehm.

Auch in der Freizeit bietet Oferdingen zahlreiche Möglichkeiten: Ob sportlich aktiv auf den örtlichen Sport- und Tennisanlagen oder eingebunden in die lebendige Vereinskultur – hier ist für jede Generation etwas geboten. Die umliegende Natur lädt zudem zu Spaziergängen, Radtouren und entspannten Momenten im Grünen ein.

Die Reutlinger Innenstadt erreichst du in etwa 15 Minuten mit dem Auto. Dort erwarten dich vielfältige Einkaufs-, Gastronomie- sowie Kultur- und Freizeitangebote. Auch mit öffentlichen Verkehrsmitteln bist du flexibel und schnell im Zentrum.

Die Universitätsstadt Tübingen ist ebenfalls nur rund 20 Minuten entfernt und bequem erreichbar. Darüber hinaus bieten die Nähe zu Stuttgart und Metzingen sowie regelmäßige Zugverbindungen ab Reutlingen zusätzliche Mobilität und eröffnen dir zahlreiche Möglichkeiten – beruflich wie privat.

Ein Zuhause an diesem Standort vereint das Beste aus zwei Welten: naturnahes Wohnen in entspannter Atmosphäre und gleichzeitig die Nähe zu lebendigen Städten.

Anbieter

KRAMS Immobilien GmbH Kaiserpassage 9, 72764 Reutlingen

Raum für Familie, Freiheit und große Pläne - Ein Paradies für Fahrzeugliebhaber und für mehrere Gene

Vertriebsansprechpartner: Frau Nadja Wezel

Weitere Informationen finden Sie unter:
Impressum des Anbieters
Widerrufsbelehrung

Titelbild mit Logo location icon 72768 Oferdingen, Reutlingen
Wohnfläche
137,04 m²
Grundstücksfläche
603 m²
Zimmer
7
Kaufpreis
570.000 €
Finanzierung berechnen Anbieter kontaktieren