Ihr exklusives Zuhause in Lichtenstein-Unterhausen - Traumlage, Traumhaus

location icon 72805 Lichtenstein
In Zusammenarbeit mit Immoscout Logo

Informationen

Wohnfläche ca.
165 m²
Grundstücksfläche ca.
825 m²
Zimmer
5
  • Provisionsfrei

Kosten

Kaufpreis
995.000 €

Bausubstanz & Energieausweis

Baujahr
unbekannt
Bauphase
Haus in Planung (projektiert)

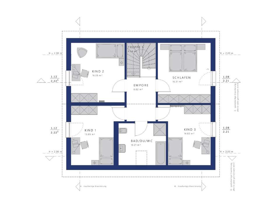
Objektbeschreibung

Traumhaft schön und traumhaft funktionell - Lebensqualität maximiert.
Auch bei diesem EVOLUTION Einfamilienhaus steht wieder die enorm große Vielfalt und eine maximale Individualität im
Vordergrund. Von klassisch über repräsentativ bis zu ganz modern ist alles möglich, um ein EVOLUTION 165 zu einem echten
Einzelstück zu machen. Neben der Entscheidung für eine der vier Dachformen beeinflussen dabei die vielen zur Verfügung
stehenden Architektur-Bauteile, die Vielfalt bei der Fassadengestaltung und die Farben der Fenster sowie Dachsteine maßgeblich
das Design des Hauses.
Erleben und genießen. Dieses Gefühl vermittelt EVOLUTION 165 in Perfektion. Ein sowohl im Erd- als auch im Obergeschoss
perfekt gestalteter Grundriss bietet wirklich alles, was man von einem innovativen Haus erwartet. Viel Platz, viele Räume,
viel Licht, viele Möglichkeiten für Gemeinsames und viele Rückzugsmöglichkeiten. All das wird hier ideal aufgeteilt und
gestaltet. Ob im Erdgeschoss, in dem das Familienleben und das Arbeiten stattfindet, oder im Obergeschoss, wo jeder sein
eigenes Reich hat.

Ergänzende Links

Ausstattung

Das Haus wird in bekannter Bien-Zenker Qualität schlüsselfertig angeboten. Eigenleistungen sind möglich.  

Im Preis enthalten:

* Effizienzhaus 40
* Satteldach mit 25° Dachneigung
* Keller
* Kniestock 180cm
* Fenster mit 3-fach-Isolierverglasung, mit exzellentem Wärme- und Schalldämmschutz
* ökologische und nachhaltige Fertig-Bauweise
* Planungswünsche können noch berücksichtigt werden!
* Wohlfühl-Klima-Heizung
* Sanitär- und Elektroinstallation

Anpassung der Dachneigung und des Kniestocks an Bauvorschriften gegen Preiskorrektur möglich. 

Grundstück im Preis inbegriffen. Zuzüglich der ortsüblichen Baunebenkosten. 

Gerne beraten wir Sie mit unserem unabhängigen Finanzierungsspezialisten!

Lage

Ihr exklusives Zuhause in Lichtenstein-Unterhausen - Traumlage, Traumhaus
72805 Lichtenstein

Die genaue Adresse dieses Objekts erhalten Sie vom Anbieter.

Das exklusive Baugrundstück befindet sich in Lichtenstein-Unterhausen, einem idyllisch gelegenen Ort am Fuße der Schwäbischen Alb. Die Lage verbindet auf ideale Weise ruhiges Wohnen in naturnaher Umgebung mit einer hervorragenden Anbindung an die umliegenden Städte.

Die Gemeinde bietet eine hohe Lebensqualität, geprägt von einer freundlichen Nachbarschaft, viel Grün und einer entspannten Wohnatmosphäre - perfekt für alle, die Wert auf Ruhe, Natur und Erholung legen.

Trotz der beschaulichen Lage ist Unterhausen verkehrstechnisch bestens angebunden:

Reutlingen erreichen Sie in nur ca. 10-15 Minuten mit dem Auto.

Die Städte Tübingen und Metzingen sind ebenfalls in kurzer Zeit erreichbar.

Über die B27 gelangen Sie zudem schnell Richtung Stuttgart.

Einkaufsmöglichkeiten für den täglichen Bedarf, Schulen, Kindergärten sowie Ärzte befinden sich direkt vor Ort oder in den Nachbargemeinden. Auch Freizeit- und Erholungsmöglichkeiten kommen nicht zu kurz - die Schwäbische Alb mit ihren Wander- und Radwegen sowie kulturellen Highlights wie Schloss Lichtenstein liegt praktisch direkt vor der Haustüre.

Fazit: Lichtenstein-Unterhausen bietet Ihnen die seltene Kombination aus ruhigem Wohnen im Grünen und schneller Erreichbarkeit der umliegenden Städte - ein idealer Ort, um Ihr neues Zuhause zu verwirklichen.

Sonstiges

Wir stehen Ihnen gerne zur Verfügung, um Fragen zu den Eigenschaften des Grundstücks zu beantworten und Ihnen bei Ihrem Suchprozess behilflich zu sein. Zögern Sie nicht, uns zu kontaktieren, wenn Sie weitere Informationen benötigen.

Wir schätzen Ihr Interesse an unserem Grundstücksangebot und möchten darauf hinweisen, dass wir aus verschiedenen Gründen die genaue Adresse des Grundstücks erst in einem persönlichen Gespräch bekannt geben können. Dies dient sowohl Ihrem als auch unserem Schutz, um sicherzustellen, dass wir Ihre Anfrage bestmöglich bearbeiten können.

Kontaktangaben sind wichtig: Bitte stellen Sie sicher, dass Sie uns Ihre vollständigen Kontaktdaten zur Verfügung stellen. Anfragen ohne vollständige Kontaktdaten können aus organisatorischen Gründen nicht bearbeitet werden.

Kommission oder Direktverkauf: Wir möchten darauf hinweisen, dass das angebotene Grundstück entweder in Kommission angeboten wird oder direkt von Dritten verkauft wird. Dies kann bedeuten, dass der oben genannte Preis aufgrund der aktuellen Marktsituationen variieren kann.

Maklercourtage: Bitte beachten Sie, dass bei diesem Grundstücksangebot gegebenenfalls eine zusätzliche Maklercourtage anfallen kann. Die genauen Bedingungen hierfür werden im persönlichen Gespräch erläutert.

Das Haus befindet sich in der Projektierung - Änderungen an Grundriss und Aussehen sind jederzeit möglich.

Die Bilder, Grundrisse, etc können Sonderausstattungen enthalten die nicht im Preis inbegriffen sind.

Planen Sie ihren Traum vom eigenen Haus mit Bien-Zenker. Wir beraten Sie ausführlich und ehrlich. Gemeinsam schaffen wir die Grundlagen für Ihren Hausbau.

Milan Weber und Bien-Zenker - Hier passt alles zusammen!

http://diefertighausprofis.de/ 

-

Bien-Zenker ist für seine überdurchschnittliche Kundenorientierung als einer von "Deutschlands Kundenchampions 2017" ausgezeichnet worden. Dieses Zertifikat verleihen das F.A.Z.-Institut, die Deutsche Gesellschaft für Qualität (DGQ) und das Marktforschungsunternehmen forum! GmbH seit zehn Jahren an Unternehmen, denen es in besonderem Maße gelingt, Kunden leistungsmäßig und emotional anzusprechen, an sich zu binden und somit zu Fans zu machen. Grundlage ist eine umfangreiche Rundum-Kundenbeziehungs-Analyse auf Basis repräsentativer Kundenbefragungen.

Bei der Untersuchung der Servicequalität von zwölf Fertighausanbietern durch das Deutsche Institut für Service-Qualität (DISQ) erreichte Bien-Zenker einen hervorragenden dritten Platz. Dabei konnten besonders unsere beratenden Kollegen glänzen, die in den verdeckt durchgeführten Testberatungen nicht nur mit Fachwissen, sondern auch dadurch punkteten, dass sie sehr umfassend auf die Lebenssituation der Kunden eingingen. Zudem wurde der schnelle und reibungslose Versand von Informationsmaterialien gelobt.

Beim jährlich stattfindenden Focus-Money Fertighaushersteller-Test wurde Bien-Zenker erneut zum "Fairsten Fertighausanbieter" gekürt. Dabei konnte sich der hessische Anbieter gegenüber dem Vorjahr sogar noch verbessern: in der Kategorie "Faire Kundenkommunikation" beurteilten die befragten Bauherren die Leistung nun mit "sehr gut". Insgesamt vergaben sie an Bien-Zenker 4 x die Note "sehr gut" und 2 x "gut".

Anbieter

Milan Weber - Handelsvertreter der Bien-Zenker GmbH Schneidergasse 18, 72581 Dettingen an der Erms

Vertriebsansprechpartner: Herr Milan Weber

Weitere Informationen finden Sie unter:
http://www.bien-zenker.de (Website)
Impressum des Anbieters
Widerrufsbelehrung

30093-1895-31-g location icon 72805 Lichtenstein
Wohnfläche
165 m²
Grundstücksfläche
825 m²
Zimmer
5
Kaufpreis
995.000 €
Finanzierung berechnen Anbieter kontaktieren