Eingerichtetes Apartment nähe Hochschule

location icon 68199 Neckarau, Mannheim
In Zusammenarbeit mit Immoscout Logo

Informationen

Typ
Etagenwohnung
Wohnfläche ca.
24,21 m²
Zimmer
1
Badezimmer
1

Kosten

Kaufpreis
112.000 €
Hausgeld
162,00 €
Provision für Käufer
3,5 % inkl. MwSt.

Bausubstanz & Energieausweis

Baujahr
1993
Heizungsart
Fernwärme
Wesentlicher Energieträger
Fernwärme
Energieausweis
liegt vor
Energieausweistyp
Verbrauchsausweis
Endenergiebedarf
83 kWh/(m²*a)
Energie­effizienz­klasse
C
83 kWh/(m²*a)
Energie­effizienz­klasse C
  • A+
  • A
  • B
  • C
  • D
  • E
  • F
  • G
  • H
  • 0
  • 25
  • 50
  • 75
  • 100
  • 125
  • 150
  • 175
  • 200
  • 225
  • >250

Objektbeschreibung

Das 1 Zimmer-Apartment befindet sich im 2. Obergeschoss des gepflegten Apartmenthauses aus dem Jahre 1993. Sie erwartet dieses charmante und gut geschnittene 1-Zimmerwohnung mit ca. 24 m² Wohnfläche. Die Wohnung ist hell, freundlich und verfügt über eine praktische Pantryküche, die optimal in den Wohnraum integriert ist.

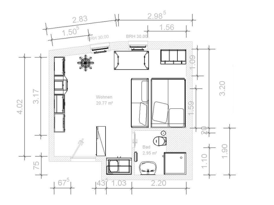
Grundriss

502a1631-5804-4245-9c2e-43c898

Ausstattung

- Pantry
- Duschbad
- Fahrradkeller
- Waschküche


Vom Vormieter können Möbel übernommen werden.

Lage

Eingerichtetes Apartment nähe Hochschule
68199 Neckarau, Mannheim

Die genaue Adresse dieses Objekts erhalten Sie vom Anbieter.

Die Wohnung befindet sich in verkehrsgünstiger Lage im Stadtteil Neckarau im Süden von Mannheim. Einkaufsmöglichkeiten für den täglichen Bedarf, Supermärkte, Bäckereien und Cafés befinden sich in unmittelbarer Nähe. Darüber hinaus bietet der Stadtteil zahlreiche Freizeitmöglichkeiten. Der nahegelegene Waldpark Mannheim sowie das Rheinufer laden zu Spaziergängen, Sport und Erholung im Grünen ein.
Die Anbindung an den öffentlichen Nahverkehr ist hervorragend: Straßenbahn- und Bushaltestellen befinden sich in fußläufiger Entfernung und ermöglichen eine schnelle Verbindung in die Mannheimer Innenstadt sowie zur Universität Mannheim. Auch die Hochschule Mannheim ist bequem erreichbar.

Sonstiges

Sämtliche Angaben stammen vom Verkäufer und dienen einer ersten Information. Für Richtigkeit und Vollständigkeit wird keine Haftung übernommen. Irrtümer bleiben vorbehalten. Es gelten die AGBs von Wolfgang Vogel Immobilien.

Anbieter

VOGEL IMMOBILIEN seit 1993 R7, 33, 68161 Mannheim

Eingerichtetes Apartment nähe Hochschule

Vertriebsansprechpartner: Frau Silvia Diekmann

Weitere Informationen finden Sie unter:
http://www.immobilienvogel.de (Website)
Impressum des Anbieters

502a1631-5804-4245-9c2e-43c898 location icon 68199 Neckarau, Mannheim
Wohnfläche
24,21 m²
Zimmer
1
Kaufpreis
112.000 €
Finanzierung berechnen Anbieter kontaktieren