Bestpreisgarantie bei Bien-Zenker - Kleine Extras, große Wirkung: So wird Ihr Zuhause zum Traumhaus!

location icon 72813 Sankt Johann
In Zusammenarbeit mit Immoscout Logo

Informationen

Wohnfläche ca.
145 m²
Grundstücksfläche ca.
600 m²
Zimmer
5
  • Provisionsfrei

Kosten

Kaufpreis
490.000 €

Bausubstanz & Energieausweis

Baujahr
unbekannt
Bauphase
Haus in Planung (projektiert)

Objektbeschreibung

Willkommen in Ihrem neuen Traumhaus, dem Bien-Zenker Edition 145 V2, wo zeitlose Eleganz und moderner Wohnkomfort auf harmonische Weise zusammenkommen. Dieses außergewöhnliche Zuhause bietet Ihnen ein einzigartiges Wohnerlebnis, das höchsten Ansprüchen gerecht wird.

Haus-Highlights:

Elegante Architektur: Das Bien-Zenker Edition 145 V2 beeindruckt mit einer gelungenen Kombination aus klassischer Architektur und zeitgemäßem Design. Das Ergebnis ist ein ästhetisches Meisterwerk, das sich perfekt in jede Umgebung einfügt.

Hochwertige Materialien: Nur die besten Materialien wurden für den Bau dieses Hauses verwendet, um Qualität und Langlebigkeit zu gewährleisten. Hier erwartet Sie eine Kombination aus erstklassiger Handwerkskunst und modernster Technologie.

Lichtdurchflutete Räume: Große Fensterflächen lassen den Innenraum in natürlichem Licht erstrahlen und schaffen eine warme, einladende Atmosphäre. Genießen Sie sonnige Morgenstunden und helle, offene Wohnbereiche.

Offenes Wohnkonzept: Der großzügige Wohn- und Essbereich ist ideal für gesellige Zusammenkünfte mit Familie und Freunden geeignet. Die offene Küche ist modern gestaltet und bietet reichlich Platz für kulinarische Kreationen.

Komfortable Schlafzimmer: Das Edition 145 V2 bietet geräumige Schlafzimmer, die Ruhe und Erholung versprechen. Hier können Sie sich zurückziehen und entspannte Nächte verbringen.

Energieeffizienz: Dieses Haus zeichnet sich durch seine hohe Energieeffizienz aus, dank modernster Bautechnologien und einer ausgezeichneten Isolierung. Damit sparen Sie nicht nur langfristig Kosten, sondern leisten auch einen Beitrag zur Umwelt.

Die Bien-Zenker Edition 145 V2 bietet Ihnen ein perfektes Zuhause für Ihre Familie. Hier können Sie Ihren individuellen Lebensstil in vollen Zügen genießen und Wohnträume wahr werden lassen.

Verpassen Sie nicht die Gelegenheit, sich von diesem einzigartigen Haus verzaubern zu lassen. Vereinbaren Sie noch heute einen Beratungstermin und erleben Sie die Faszination des Bien-Zenker Edition 145 V2 hautnah.

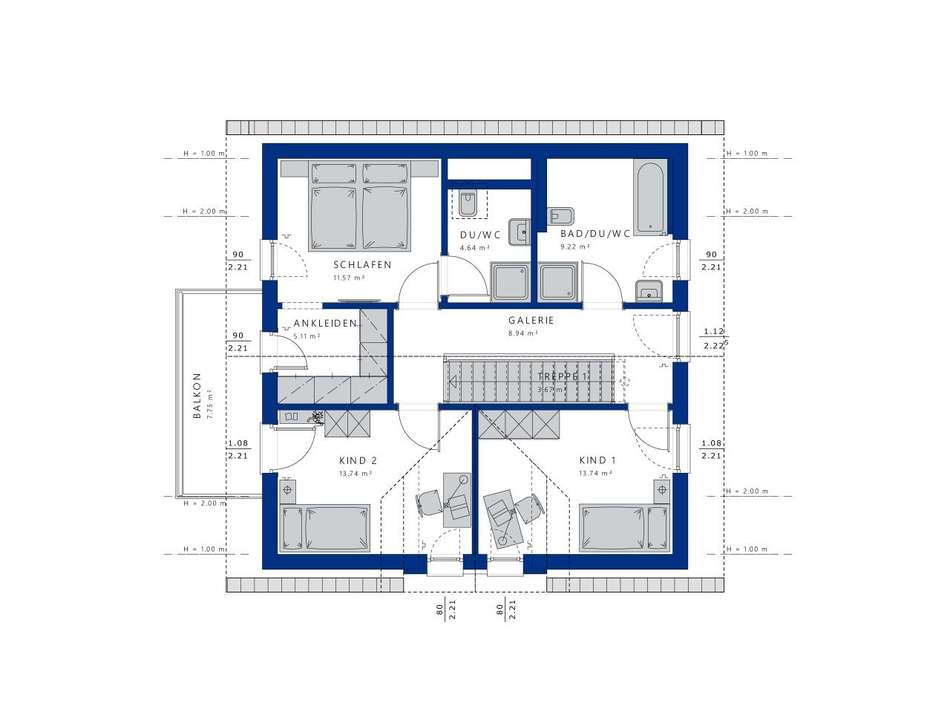
Grundriss

EG
EG
DG
DG

Ergänzende Links

Ausstattung

Das Haus wird in bekannter Bien-Zenker Qualität zur Ausstattung fertig angeboten. Der Innenausbau erfolgt durch Ihre Eigenleistung. 

Im Preis enthalten:

* Effizienzhaus 40 plus mit QNG Zertifikat
* Satteldach mit 38° Dachneigung
* Bodenplatte
* Kniestock 100cm
* Fenster mit 3-fach-Isolierverglasung, mit exzellentem Wärme- und Schalldämmschutz
* ökologische und nachhaltige Fertig-Bauweise
* Planungswünsche können noch berücksichtigt werden!
* Wohlfühl-Klima-Heizung
* Sanitär- und Elektroinstallation

Anpassung der Dachneigung und des Kniestocks an Bauvorschriften gegen Preiskorrektur möglich. 

Grundstück im Preis inbegriffen. Zuzüglich der ortsüblichen Baunebenkosten. 

Gerne beraten wir Sie mit unserem unabhängigen Finanzierungsspezialisten!

Lage

Bestpreisgarantie bei Bien-Zenker - Kleine Extras, große Wirkung: So wird Ihr Zuhause zum Traumhaus!
72813 Sankt Johann

Die genaue Adresse dieses Objekts erhalten Sie vom Anbieter.

Sankt Johann-Upfingen ist ein malerischer Ortsteil der Gemeinde Sankt Johann im Landkreis Reutlingen. Der Ort liegt idyllisch auf der Schwäbischen Alb und bietet eine Kombination aus ländlichem Charme, historischen Gebäuden und einer aktiven Dorfgemeinschaft.

Sonstiges

Bitte beachten Sie, dass der Erwerb dieses Grundstückes ausschließlich über die zuständige Gemeinde erfolgen kann. Als Anbieter von Bien-Zenker Fertighäusern haben wir keinen Einfluss auf die Vergabe oder die Entscheidungsprozesse der Gemeindeverwaltung.

Es ist wichtig zu betonen, dass die Gemeinde die Vergabe der Grundstücke gemäß ihren eigenen Kriterien und Richtlinien durchführt. Dies kann unter anderem den Wohnsitznachweis, finanzielle Voraussetzungen und andere lokale Bestimmungen umfassen. Wir empfehlen Ihnen daher, sich direkt an die Gemeindeverwaltung zu wenden, um sich über die genauen Bedingungen und Verfahren für den Erwerb dieser Grundstücke zu informieren.

Unser Ziel ist es, Ihnen umfassende Informationen über die Möglichkeiten zum Bau eines Bien-Zenker Hauses auf dem Grundstück zur Verfügung zu stellen und Ihnen bei Ihrer Suche nach dem perfekten Bien-Zenker Haus zu helfen. Bitte haben Sie jedoch Verständnis dafür, dass wir keine Kontrolle über den Vergabeprozess der Gemeinde haben und keine Garantie für den erfolgreichen Erwerb bieten können.

Wir stehen Ihnen gerne zur Verfügung, um Fragen zu den Eigenschaften des Grundstücks zu beantworten und Ihnen bei Ihrem Suchprozess behilflich zu sein. Zögern Sie nicht, uns zu kontaktieren, wenn Sie weitere Informationen benötigen.

Wir schätzen Ihr Interesse an unserem Grundstücksangebot und möchten darauf hinweisen, dass wir aus verschiedenen Gründen die genaue Adresse des Grundstücks erst in einem persönlichen Gespräch bekannt geben können. Dies dient sowohl Ihrem als auch unserem Schutz, um sicherzustellen, dass wir Ihre Anfrage bestmöglich bearbeiten können.

Kontaktangaben sind wichtig: Bitte stellen Sie sicher, dass Sie uns Ihre vollständigen Kontaktdaten zur Verfügung stellen. Anfragen ohne vollständige Kontaktdaten können aus organisatorischen Gründen nicht bearbeitet werden.

Kommission oder Direktverkauf: Wir möchten darauf hinweisen, dass das angebotene Grundstück entweder in Kommission angeboten wird oder direkt von Dritten verkauft wird. Dies kann bedeuten, dass der oben genannte Preis aufgrund der aktuellen Marktsituationen variieren kann.

Maklercourtage: Bitte beachten Sie, dass bei diesem Grundstücksangebot gegebenenfalls eine zusätzliche Maklercourtage anfallen kann. Die genauen Bedingungen hierfür werden im persönlichen Gespräch erläutert.

Das Haus befindet sich in der Projektierung - Änderungen an Grundriss und Aussehen sind jederzeit möglich.

Die Bilder, Grundrisse, etc können Sonderausstattungen enthalten die nicht im Preis inbegriffen sind.

Planen Sie ihren Traum vom eigenen Haus mit Bien-Zenker. Wir beraten Sie ausführlich und ehrlich. Gemeinsam schaffen wir die Grundlagen für Ihren Hausbau.

Boris Nübling und Bien-Zenker - Hier passt alles zusammen!

http://diefertighausprofis.de/ 

-

Bien-Zenker ist für seine überdurchschnittliche Kundenorientierung als einer von "Deutschlands Kundenchampions 2017" ausgezeichnet worden. Dieses Zertifikat verleihen das F.A.Z.-Institut, die Deutsche Gesellschaft für Qualität (DGQ) und das Marktforschungsunternehmen forum! GmbH seit zehn Jahren an Unternehmen, denen es in besonderem Maße gelingt, Kunden leistungsmäßig und emotional anzusprechen, an sich zu binden und somit zu Fans zu machen. Grundlage ist eine umfangreiche Rundum-Kundenbeziehungs-Analyse auf Basis repräsentativer Kundenbefragungen.

Bei der Untersuchung der Servicequalität von zwölf Fertighausanbietern durch das Deutsche Institut für Service-...

Anbieter

Milan Weber - Handelsvertreter der Bien-Zenker GmbH Schneidergasse 18, 72581 Dettingen an der Erms

Vertriebsansprechpartner: Herr Milan Weber

Weitere Informationen finden Sie unter:
http://www.bien-zenker.de (Website)
Impressum des Anbieters
Widerrufsbelehrung

29675-1868-1-g location icon 72813 Sankt Johann
Wohnfläche
145 m²
Grundstücksfläche
600 m²
Zimmer
5
Kaufpreis
490.000 €
Finanzierung berechnen Anbieter kontaktieren