Außenansicht
Frontansicht
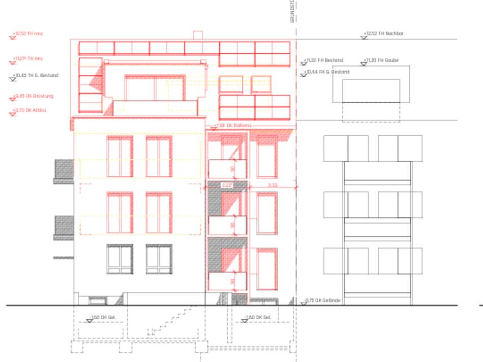
Umbauplan
Umbauplan
ThcgExuJUseFkMx7foVizttp-big W
UoqnkpQr7vgJ2yY4MeCZFkfL-big 4
pnxHZKGLaEcqyTfep8vFiPHi-big 3
2CYYNBwB45XZfnVj4HU2JNah-big 8
sm7HPUWZkEBFp5CseYuUaHKP-big 9
mPMGedmsBWfDNJpAYRnb3w18-big 5
fXgRCPz9GJoAbfkwpipvscSd-big 5
zEm8rmp6Mcq8fa4HzSYKcQr6-big W
Q9h5NYaqTt3Q26eitnorKQb4-big 2
x2C17nezd3Q1mkMeYggU69KX-big 7
Nebenraum
Bad
Aussicht
Haustür
Treppenhaus
Hofansicht
Eingang
Straße

Umbauobjekt mit Dachausbaugenehmigung - Helle Dachgeschosswohnung mit Feldrandlage in Feudenheim

location icon 68259 Feudenheim, Mannheim
In Zusammenarbeit mit Immoscout Logo

Informationen

Typ
Dachgeschoss
Etage
3 von 3
Wohnfläche ca.
65 m²
Bezugsfrei ab
sofort
Zimmer
2
Schlafzimmer
1
Badezimmer
1
  • Keller
  • Provisionsfrei

Kosten

Kaufpreis
149.000 €
Hausgeld
78,00 €
Provision für Käufer
Nein

Bausubstanz & Energieausweis

Baujahr
1955
Wesentlicher Energieträger
Strom
Energieausweis
liegt vor
Energieausweistyp
Bedarfsausweis
Endenergiebedarf
137 kWh/(m²*a)
Energie­effizienz­klasse
E
137 kWh/(m²*a)
Energie­effizienz­klasse E
  • A+
  • A
  • B
  • C
  • D
  • E
  • F
  • G
  • H
  • 0
  • 25
  • 50
  • 75
  • 100
  • 125
  • 150
  • 175
  • 200
  • 225
  • >250

Objektbeschreibung

Hinweis: Bei dem angebotenen Objekt handelt es sich nicht um eine Maisonettewohnung, sondern ausschließlich um die abgebildete obere Etage. Die auf den Fotos sichtbare Bodenöffnung wird im Zuge Ihres Umbaus geschlossen.

Diese Immobilie bietet eine ideale Gelegenheit für Käufer mit Vision und Freude an einem individuellen Umbauprojekt.

Aktuell verfügt die Wohnung über ca. 65 m² Wohnfläche, aufgeteilt in 2 Zimmer. Für das Objekt liegt bereits eine vollständig genehmigte Dachausbauplanung vor, die den Ausbau zu einer großzügigen 3-Zimmer-Wohnung mit Küche, Bad, Gäste-WC und Terrasse ermöglicht. Sämtliche Pläne und behördlichen Genehmigungen sind vorhanden, der Umbau kann sofort beginnen.

Im Rahmen der geplanten Umbaumaßnahmen wird das Dach vergrößert, die bestehenden Innenwände entfernt und eine Terrasse neu errichtet, wodurch ein modernes und lichtdurchflutetes Wohnkonzept entsteht.

Die geschätzten Umbaukosten belaufen sich, abhängig von Eigenleistung und Vergabe von Facharbeiten, auf ca. 200.000 €.

Das Highlight der Wohnung ist die uneingeschränkte Aussicht auf das ehemalige Gartenschaugelände, welches eine weite, grüne Sicht bietet.

Ein ideales Angebot für Eigennutzer oder Kapitalanleger, die Wohnraum preiswert erwerben möchten und Lust auf Gestaltung und Umbau haben.

Wenn Sie Interesse am einem größeren Umbauprojekt haben, vereinbaren Sie gerne einen Besichtigungstermin. Wir freuen uns auf Ihre Anfrage!

Lage

Umbauobjekt mit Dachausbaugenehmigung - Helle Dachgeschosswohnung mit Feldrandlage in Feudenheim
68259 Feudenheim, Mannheim

Die genaue Adresse dieses Objekts erhalten Sie vom Anbieter.

Feudenheim ist ein ruhiger und grüner Stadtteil im Süden von Mannheim. Mit seiner eher beschaulichen Atmosphäre ist er besonders bei Familien und Menschen, die das Leben abseits des Trubels der Innenstadt schätzen, beliebt. Der Stadtteil bietet eine angenehme Wohnqualität und ist dabei dennoch gut an die Innenstadt und die umliegenden Gebiete angebunden.

Die Mischung aus Altbauten und modernen Wohnungen schafft eine interessante, charmante Umgebung. Die grünen Straßen und kleinen Parks laden zum Spazieren und Entspannen ein, und auch die Nähe zum Waldpark sorgt für ausreichend Platz, um die Natur zu genießen.

In Feudenheim findet man nicht nur Ruhe, sondern auch eine gute Infrastruktur – Einkaufsmöglichkeiten, Schulen und Kindergärten sind schnell erreichbar, und auch die Verkehrsanbindung ist durch Busse und Bahnen bequem.

Feudenheim ist ein Stadtteil für diejenigen, die den Komfort der Stadt mit einem entspannten Wohnumfeld verbinden möchten.

Anbieter

MT-HOME Immobilien GmbH Kalmitstraße 3a, 67227 Frankenthal

Vertriebsansprechpartner: Frau Victoria Seyboldt

Weitere Informationen finden Sie unter:
Impressum des Anbieters

Außenansicht location icon 68259 Feudenheim, Mannheim
Wohnfläche
65 m²
Zimmer
2
Kaufpreis
149.000 €
Finanzierung berechnen Anbieter kontaktieren