Platz für Ihr Traumhaus! Schönes Grundstück in Neureut Heide

location icon 76149 Neureut, Karlsruhe
In Zusammenarbeit mit Immoscout Logo

Informationen

Wohnfläche ca.
135 m²
Grundstücksfläche ca.
844 m²
Zimmer
5
Schlafzimmer
4
Badezimmer
3

Kosten

Kaufpreis
650.000 €
Provision für Käufer
3,57%

Bausubstanz & Energieausweis

Baujahr
1936
Wesentlicher Energieträger
Öl
Energieausweis
liegt vor
Energieausweistyp
Bedarfsausweis
Endenergiebedarf
245,8 kWh/(m²*a)
Energie­effizienz­klasse
G
245,8 kWh/(m²*a)
Energie­effizienz­klasse G
  • A+
  • A
  • B
  • C
  • D
  • E
  • F
  • G
  • H
  • 0
  • 25
  • 50
  • 75
  • 100
  • 125
  • 150
  • 175
  • 200
  • 225
  • >250

Objektbeschreibung

Dieses mit einem abrissreifen Einfamilienhaus in ruhiger Lage von NEUREUT - HEIDE bebaute Grundstück eignet sich ideal für:

- ein Neubauprojekt
- Bauträger
- Handwerker
- "Häuslebauer"

Dieses Einfamilienhaus befindet sich in ruhiger Lage von Neureut Heide auf einem ca. 844 m² großen Grundstück. 

Entsprechende Planungen für den Neubau eines exklusiven Ein-Zweifamilienhauses inkl. bis zu sieben Tiefgaragenstellplätze liegen vor, siehe Pläne.
Alternativ wäre auch der Bau eines Mehrfamilienhauses möglich.

Das ursprünglich im Jahre 1936 erbaute und 1973 sanierte Wohnhaus befindet sich derzeit in einem abrissreifen Zustand (Wasserschaden etc.).

Das Wohnhaus verfügt über eine Wohnfläche von ca. 135 m². Diese teilt sich über drei Geschosse plus Keller auf. Eine Garage und weitere Anbauten sind aktuell vorhanden.

Überzeugen Sie sich bei einem individuellen Besichtigungstermin von dieser Immobilie.

Grundriss

Lageplan Neubau
Lageplan Neubau
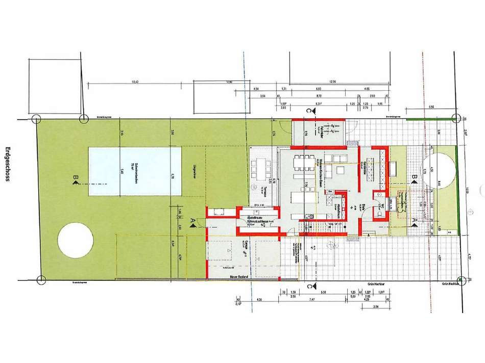
Grundriss EG Neubau
Grundriss EG Neubau
Grundriss UG  Neubau mit bis z
Grundriss UG Neubau mit bis z
Grundriss und Ansichten Neubau
Grundriss und Ansichten Neubau
Ansichten und Schnitte Neubau
Ansichten und Schnitte Neubau
Grundriss-Skizze EG Bestand
Grundriss-Skizze EG Bestand
Grundriss-Skizze OG Bestand
Grundriss-Skizze OG Bestand
Grundriss-Skizze DG Bestand
Grundriss-Skizze DG Bestand
Grundriss-Skizze KG Bestand
Grundriss-Skizze KG Bestand

Ausstattung

- ca. 820 m² großes Grundstück
- es gab bereits eine Baugenehmigung für ein exklusives Ein-Zweifamilienhaus, siehe Pläne
(Neubau inkl. bis zu sieben Tiefgaragenstellplätze)
- alternativ auch Neubau eines MFH möglich
- Bebauungsplan "469 Heide" von 1960 liegt vor

abrissreifes Wohnhaus mit Wasserschaden (die Bilder wurden bereits vor dem Wasserschaden aufgenommen):
- drei Bäder
- Laminat-, Teppich- und Fliesenböden
- doppelverglaste Holzfenster 
- große Terrasse
- Öl-Zentralheizung
- Keller
- Anbau
- Garage

Lage

Platz für Ihr Traumhaus! Schönes Grundstück in Neureut Heide
76149 Neureut, Karlsruhe

Die genaue Adresse dieses Objekts erhalten Sie vom Anbieter.

Die Immobilie liegt in Karlsruhe-Neureut im Stadtteil Neureut-Heide in ruhiger Lage
Optimale Infrastruktur, alle Schultypen in der Nähe, vielfältige Einkaufsmöglichkeiten und kulturelle Einrichtungen, der gewachsene Stadtteil Neureut und der kurze Weg zur Straßenbahn (ca. 100 m) lassen dieses Wohnobjekt zu einer außergewöhnlichen Heimat fürs Leben werden.
Im Norden der Stadt liegt die ehemals selbstständige Landgemeinde Neureut, die sowohl einen dörflichen wie auch modernen Charakter hat. Öffentliche und private Dienstleistungseinrichtungen machen den Stadtteil zu einem Schwerpunkt im Norden der Stadt, auch für die Gemeinden der nördlichen Hardt (z.B. Gymnasium / Realschule oder Hallenbad sind am Ort). Neureut kann auf eine kontinuierliche Entwicklung der Infrastruktur und Einwohnerzahl zurückblicken. Heute leben hier mehr als 18.000 Menschen. Die Straßenbahn verbindet Neureut auf kurzem und schnellem Wege mit dem Stadtzentrum, all seinen einschlägigen öffentlichen Einrichtungen und dem nahegelegenen nördlichen Schwarzwald. Ebenfalls sind direkte Busverbindungen in die Innenstadt vorhanden.
In Neureut gibt es zahlreiche Einkaufsmöglichkeiten (Lidl, Rewe, Penny und eine Bäckerei),  einen katholischen und evangelischen Kindergarten, eine Kita, eine Grundschule sowie einen Fußballverein. Zwei Hausärzte und eine Apotheke sind fußläufig zu erreichen.

Sonstiges

Bei weiterem Interesse laden wir Sie gerne zu einer persönlichen Besichtigung vor Ort ein. Bitte legen Sie uns dazu eine aktuelle (vorläufige) Finanzierungsbestätigung Ihrer Bank oder einen Kapitalnachweis vor.

Diese Immobilie befindet sich im exklusiven Alleinauftrag von HUST Immobilien. Missbräuchliche Verwendung dieses Angebots in jedweder Form wird bei Bekanntwerden sofort mit allen Rechtsmitteln unterbunden. Kontaktaufnahmen zu den Eigentümern sind strengstens untersagt und werden ausdrücklich nicht gestattet.

Anbieter

Hust Immobilien GmbH & Co. KG Killisfeldstr. 48, 76227 Karlsruhe / Durlach

Platz für Ihr Traumhaus! Schönes Grundstück in Neureut Heide

Vertriebsansprechpartner: expose.salutation.COMPANY HUST Immobilien

Weitere Informationen finden Sie unter:
http://hust-immobilien.de (Website)
Impressum des Anbieters
Widerrufsbelehrung

Garten und Rückansicht location icon 76149 Neureut, Karlsruhe
Wohnfläche
135 m²
Grundstücksfläche
844 m²
Zimmer
5
Kaufpreis
650.000 €
Finanzierung berechnen Anbieter kontaktieren