Qualität, die bleibt – Ihre individuelle Doppelhaushälfte in Frickenhausen 🌿

location icon 72636 Frickenhausen
In Zusammenarbeit mit Immoscout Logo

Informationen

Haustyp
Einfamilienhaus (freistehend)
Wohnfläche ca.
115 m²
Nutzfläche ca.
65 m²
Grundstücksfläche ca.
215 m²
Zimmer
4
Schlafzimmer
3
Badezimmer
1
Anzahl Garage / Stellplatz
1 Stellplatz
  • Gäste-WC
  • Keller
  • Provisionsfrei

Kosten

Kaufpreis
594.000 €
Provision für Käufer
Nein

Bausubstanz & Energieausweis

Baujahr
2026
Bauphase
Haus in Planung (projektiert)
Ausstattung
Gehobene Qualität
Heizungsart
Wärmepumpe

Objektbeschreibung

WOHNGENUSS PUR IN IHRER NEUEN DOPPELHAUSHÄLFTE. Stellen Sie sich vor, wie Sie morgens in Ihrem lichtdurchfluteten Zuhause in Frickenhausen erwachen. Mit 115 m² Wohnfläche bietet dieses Haus den idealen Rückzugsort für Sie und Ihre Liebsten. Dank des inkludierten Kellers gewinnen Sie wertvollen zusätzlichen Raum für Ihre Hobbys oder als praktischen Stauraum.

Bei Schwabenhaus bauen wir nicht nur Wände, wir bauen Ihr Lebensgefühl. Die durchdachte Planung sorgt für eine Atmosphäre, in der Sie sich vom ersten Moment an geborgen fühlen. Nachhaltig gebaut und individuell auf Ihre Bedürfnisse abgestimmt – so wird aus einem Haus Ihr echtes Zuhause.

IHR PROJEKT EIGENHEIM BEGINNT JETZT. Wir begleiten Sie mit über 55 Jahren Erfahrung auf jedem Schritt zu Ihrem Traumhaus. 🏡

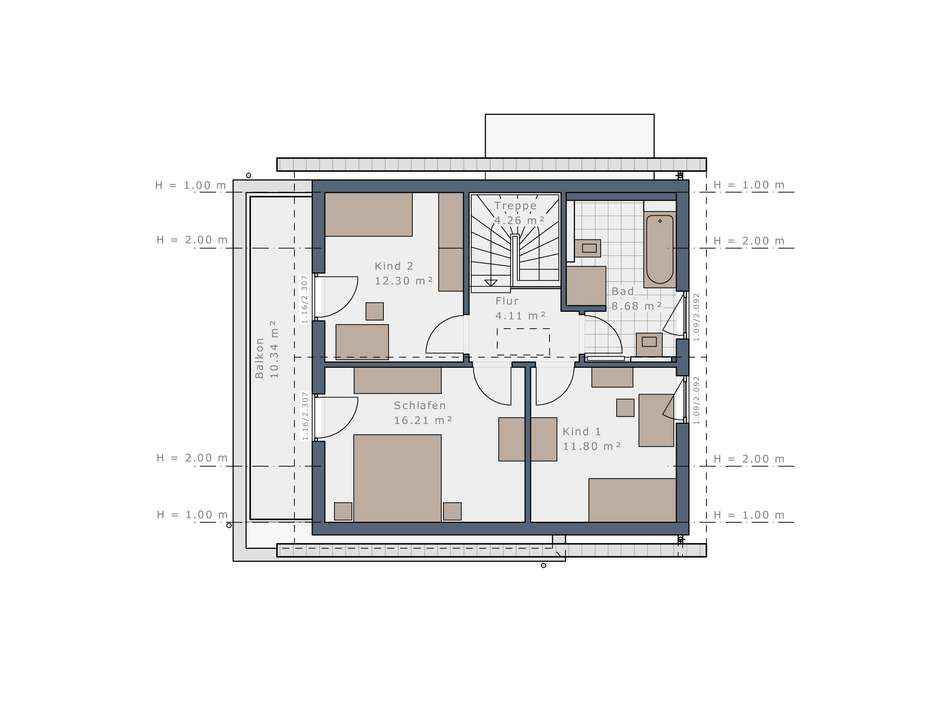
Grundriss

Grundriss Erdgeschoss
Grundriss Erdgeschoss
Grundriss Obergeschoss
Grundriss Obergeschoss

Ergänzende Links

Ausstattung

• Inklusive Keller für maximalen Stauraum
• Bodenplatte inklusive Dämmpaket
• Zimmermannmäßiges Pfettendach
• Premium-Manufakturwand mit Putzfassade
• Massiv-Vollholz-Treppe
• Fenster mit 3-Scheiben-Wärmeschutzverglasung
• Photovoltaikanlagen-Vorbereitung
• Hochwertige Holz-Haustür in vielfältigen Design-Lösungen
• Rollläden im Erd- und Obergeschoss
• Außenfensterbänke aus Naturstein
• Innenfensterbänke aus Kunst- oder Naturstein
• Wärmepumpen-Heizung (Green-Edition)
• Elektroinstallation
• Sanitärinstallation
• Schwimmender Estrich mit Wärmedämmung
• Beplankung für Decken und Dachschrägen mit Gipskartonplatten

Lage

Qualität, die bleibt – Ihre individuelle Doppelhaushälfte in Frickenhausen 🌿
72636 Frickenhausen

Die genaue Adresse dieses Objekts erhalten Sie vom Anbieter.

Das Baugrundstück befindet sich in ruhiger und attraktiver Wohnlage von 72636 Frickenhausen im Landkreis Esslingen. Die Gemeinde bietet eine sehr gute Infrastruktur mit Einkaufsmöglichkeiten, Ärzten, Kindergärten und Grundschule direkt vor Ort.
Über die B313 ist Nürtingen in wenigen Minuten erreichbar, mit Anschluss an die A8 Richtung Stuttgart und München. Busverbindungen sowie die Tälesbahn sorgen für eine gute Anbindung an den öffentlichen Nahverkehr.
Die naturnahe Umgebung mit zahlreichen Rad- und Wanderwegen macht die Lage besonders attraktiv für Familien und Naturliebhaber.

Sonstiges

Vereinbaren Sie einen persönlichen Beratungstermin, um über Ihren Haustraum und das angebotene Objekt zu sprechen. 
Bitte beachten Sie, dass die dargestellten Bilder und Grundrisse nur beispielhaft sind und unter Umständen Sonderbauteile enthalten, die nicht im aufgerufenen Preis inkludiert sind. 

Haben Sie außerdem Verständnis dafür, dass erst nach dem persönlichen Gespräch weitere Details zu dem angebotenen Grundstück bekanntgegeben werden und dass nur vollständige Anfragen bearbeitet werden können.

Anbauteile, Carport, Garage und Keller können Extras sein, die als Sonderausstattung angeboten werden. Abbildungen, Grundrisse und Flächenangaben sind beispielhaft und können Extras zeigen. Flächenangaben nach DIN 277.

Profitieren Sie jetzt von der Schwabenhaus Online Beratung und verwirklichen Sie Ihr Traumhaus https://www.schwabenhaus.de/anmeldung-hausbau-beratung-online/

Anbieter

Schwabenhaus Reutlingen - Erik Reis - Handelsvertretung für die Schwabenhaus GmbH Große Heerstraße 33, 72793 Pfullingen

Qualität, die bleibt – Ihre individuelle Doppelhaushälfte in Frickenhausen 🌿

Vertriebsansprechpartner: Herr Erik Reis

Weitere Informationen finden Sie unter:
http://www.schwabenhaus.de (Website)
Impressum des Anbieters

Wohnzimmer location icon 72636 Frickenhausen
Wohnfläche
115 m²
Grundstücksfläche
215 m²
Zimmer
4
Kaufpreis
594.000 €
Finanzierung berechnen Anbieter kontaktieren