Stilvolle Altbauperle in Bestlage – Großzügige 4-Zimmer-Wohnung in der Mannheimer Oststadt

location icon 68165 Schwetzingerstadt/Oststadt, Mannheim
In Zusammenarbeit mit Immoscout Logo

Informationen

Wohnfläche ca.
122 m²
Bezugsfrei ab
01.01.2027
Zimmer
4
  • Gäste-WC
  • Aufzug
  • Keller
  • Balkon
  • Vermietet

Kosten

Kaufpreis
650.000 €
Provision für Käufer
3% zzgl. MwSt.

Bausubstanz & Energieausweis

Baujahr
1906
Wesentlicher Energieträger
Fernwärme

Objektbeschreibung

Diese charmante und lichtdurchflutete 4-Zimmer-Wohnung befindet sich in einem repräsentativen, denkmalgeschützten Altbau in der begehrten Mannheimer Oststadt – einem der schönsten und gefragtesten Viertel der Stadt. Bereits beim Betreten des gepflegten Mehrfamilienhauses mit insgesamt 14 Wohneinheiten wird der besondere Charakter dieses historischen Gebäudes spürbar.

Die Wohnung liegt im Hochparterre und begeistert durch ihren klassischen Altbauflair: hohe Decken, großzügige Raumaufteilung und liebevoll erhaltene Details verleihen ihr eine besondere Wohnatmosphäre. Ein echtes Highlight ist der originale Terrazzoboden im Flur, der den historischen Charme eindrucksvoll unterstreicht und einen stilvollen Empfangsbereich schafft.

Im Zuge einer umfassenden Neustrukturierung des Gebäudes vor rund zehn Jahren wurden nahezu alle Einheiten aufwendig saniert. Dabei wurden unter anderem die Holzfenster erneuert und mit moderner Doppelverglasung ausgestattet sowie die Balkonanlagen zeitgemäß modernisiert – eine gelungene Verbindung von historischem Flair und zeitgemäßem Wohnkomfort.

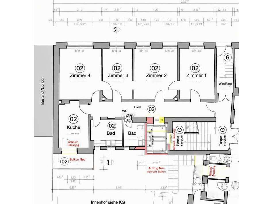
Mit einer Wohnfläche von ca. 122 m² bietet die Wohnung vier großzügige und vielseitig nutzbare Zimmer. Aktuell wird sie als Wohngemeinschaft genutzt, der bestehende Mietvertrag läuft noch bis zum 31.12.2026. Damit eröffnet sich sowohl eine attraktive Möglichkeit zur sofortigen Kapitalanlage als auch eine perspektivische Eigennutzung. Darüber hinaus erlaubt die Teilungserklärung sowohl eine Nutzung zu Wohnzwecken als auch als Büro – ideal für alle, die Wohnen und Arbeiten stilvoll verbinden möchten.

Ein Balkon erweitert den Wohnraum ins Freie, lädt zum Verweilen ein und bietet zudem einen wundervollen Blick auf die Christuskirche. Ergänzt wird das Angebot durch einen eigenen Kellerraum sowie einen Aufzug im Gebäude. In den Wohnräumen ist überwiegend Laminat verlegt, eine Einbauküche ist derzeit nicht vorhanden.

Besonders interessant ist das vorhandene Gestaltungspotenzial: Ein Gäste-WC mit Dusche ist bereits vorhanden, während das eigentliche Badezimmer noch geschaffen werden kann. Der hierfür vorgesehene Raum wird aktuell als Küche genutzt – eine ideale Gelegenheit, die Wohnung nach eigenen Vorstellungen weiterzuentwickeln und individuellen Wohnkomfort zu realisieren.

Die derzeitige Kaltmiete beträgt 1.000 € monatlich und gewährleistet eine regelmäßige Einnahmesituation. Gleichzeitig bietet die Immobilie mittel- bis langfristig attraktive Entwicklungsperspektiven.

Diese Immobilie vereint auf besondere Weise historischen Charme, großzügiges Wohnen, flexible Nutzungsmöglichkeiten und spannendes Entwicklungspotenzial – eine seltene Gelegenheit für Kapitalanleger und Eigennutzer mit Sinn für das Besondere.

Grundriss

Außenansicht

Lage

Stilvolle Altbauperle in Bestlage – Großzügige 4-Zimmer-Wohnung in der Mannheimer Oststadt
68165 Schwetzingerstadt/Oststadt, Mannheim

Die genaue Adresse dieses Objekts erhalten Sie vom Anbieter.

Die Lage in der Mannheimer Oststadt spricht für sich: geprägt von eindrucksvoller Jugendstilarchitektur, ruhigen, baumbestandenen Straßen und einer exzellenten Infrastruktur. Einkaufsmöglichkeiten, Cafés, Restaurants, Ärzte sowie Schulen und Kindergärten befinden sich in unmittelbarer Nähe. Die Mannheimer Innenstadt und der Wasserturm sind bequem fußläufig erreichbar. Dank der hervorragenden Anbindung an den öffentlichen Nahverkehr gelangen Sie zudem schnell und unkompliziert zu allen wichtigen Zielen in der Stadt.

Anbieter

Huther Immobilien Mannheim GmbH Friedrichsplatz 14, 68165 Mannheim

Stilvolle Altbauperle in Bestlage – Großzügige 4-Zimmer-Wohnung in der Mannheimer Oststadt

Vertriebsansprechpartner: Frau Mirjana Keza

Weitere Informationen finden Sie unter:
http://www.huther-mannheim.de (Website)
Impressum des Anbieters

Außenansicht location icon 68165 Schwetzingerstadt/Oststadt, Mannheim
Wohnfläche
122 m²
Zimmer
4
Kaufpreis
650.000 €
Finanzierung berechnen Anbieter kontaktieren