6% Rendite - kernsanierte 3 Zimmerwohnung mit Garage in Mannheim Schwetzingerstadt

location icon Burgstraße 4, 68165 Schwetzingerstadt/Oststadt, Mannheim
In Zusammenarbeit mit Immoscout Logo

Informationen

Typ
Etagenwohnung
Etage
0 von 5
Wohnfläche ca.
65 m²
Bezugsfrei ab
sofort
Zimmer
3
Schlafzimmer
3
Badezimmer
1
Anzahl Garage / Stellplatz
1 Garage
  • Barrierefrei
  • Keller
  • Einbauküche
  • Provisionsfrei
  • Vermietet

Kosten

Kaufpreis
299.000 €
Hausgeld
257,00 €
Garage/ Stellplatz-Kaufpreis
20.000 €
Provision für Käufer
Nein

Bausubstanz & Energieausweis

Baujahr
1959
Objektzustand
Erstbezug nach Sanierung
Heizungsart
Etagenheizung
Wesentlicher Energieträger
Gas
Energieausweis
liegt vor
Energieausweistyp
Verbrauchsausweis
Endenergiebedarf
167 kWh/(m²*a)
Energie­effizienz­klasse
F
167 kWh/(m²*a)
Energie­effizienz­klasse F
  • A+
  • A
  • B
  • C
  • D
  • E
  • F
  • G
  • H
  • 0
  • 25
  • 50
  • 75
  • 100
  • 125
  • 150
  • 175
  • 200
  • 225
  • >250

Objektbeschreibung

Zum Verkauf steht eine hochwertig kernsanierte 3-Zimmer-Wohnung in bester Lage der Schwetzinger Vorstadt in Mannheim.

Die ca. 65 m² große Erdgeschosswohnung wurde umfassend modernisiert und wird aktuell erfolgreich als 3er-Wohngemeinschaft vermietet - ein besonders gefragtes und renditestarkes Vermietungskonzept in Universitätsstädten.

Die Kombination aus Top-Lage, WG-Vermietung und solider Rendite macht diese Immobilie zu einer idealen Kapitalanlage mit sofortigen Einnahmen.

Wirtschaftlichkeit / Rendite
Miete pro Zimmer: 500 € / Monat
Gesamtmiete Wohnung: 1.500 € / Monat
Tiefgarage: 100 € / Monat

➡️ Gesamt-Kaltmiete: 1.600 € / Monat
➡️ Jahreskaltmiete: 19.200 €

Hausgeld: 257 € / Monat

umlagefähig: 169,30 €
nicht umlagefähig: 87,70 €

Kaufpreise:
Wohnung: 299.000 €
Garage 20.000 €

Gesamtkaufpreis: 319.000 €
Bruttorendite: ca. 6 %
Sehr attraktive Rendite durch WG-Konzept und Top-Lage
Eckdaten
Baujahr: 1959
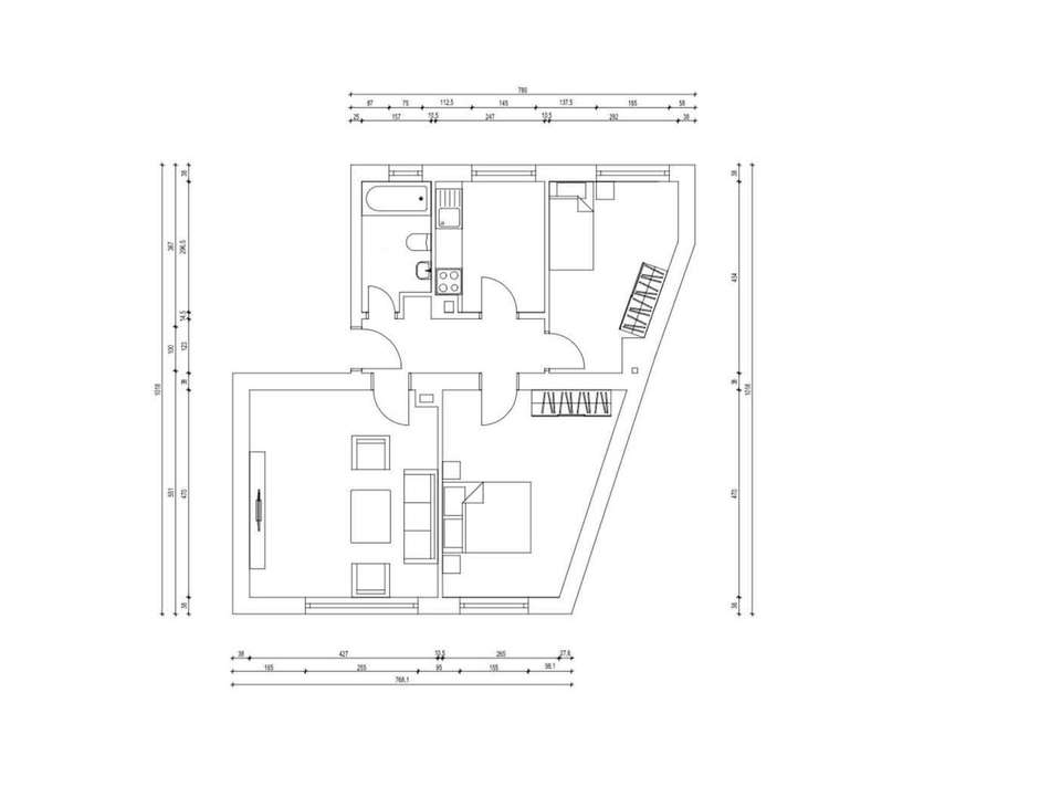
Wohnfläche: ca. 65 m²
Zimmer: 3
Etage: Erdgeschoss
Zustand: Kernsaniert
Vermietung: WG (voll vermietet)
Stellplatz: Tiefgarage
Energieeffizienzklasse: F

Grundriss

Schlafzimmer 1

Ausstattung

Keller, Duschbad, Einbauküche, Barrierefrei, Fliesen

Bemerkungen:
Die Wohnung wurde umfassend modernisiert:
Komplett neues Badezimmer
Erneuerung aller Wasser- und Abwasserleitungen
Neue Elektrik
Neue Bodenbeläge & Wandgestaltung
Austausch von Türen und Türzargen
Teilweise neue Fenster
Einbauküche und komplett möbliert 

Sorglos-Investment ohne Renovierungsbedarf

Lage

6% Rendite - kernsanierte 3 Zimmerwohnung mit Garage in Mannheim Schwetzingerstadt
Burgstraße 4, 68165 Schwetzingerstadt/Oststadt, Mannheim
Lage - Mannheim Schwetzingerstadt

Die Immobilie befindet sich in der beliebten Schwetzingerstadt (68165 Mannheim) - einer der gefragtesten Wohnlagen der Stadt.

✔ Fußläufig zur Innenstadt
✔ Nähe zur Universität Mannheim
✔ Sehr gute Infrastruktur & ÖPNV-Anbindung
✔ Hohe Nachfrage nach WG-Zimmern

Perfekt für Studenten & junge Berufstätige - dauerhaft hohe Vermietbarkeit

Sonstiges

Heizungsart: Etagenheizung
Energieträger: Gas

Diese Immobilie eignet sich ideal für Kapitalanleger, die eine renditestarke, sofort vermietete und modernisierte Wohnung in gefragter Lage suchen.

Gerne stellen wir Ihnen weitere Unterlagen zur Verfügung oder vereinbaren einen Besichtigungstermin.

Makleranfragen unerwünscht!
Nach § 7 UWG sind unaufgeforderte Kontaktaufnahmen durch Makler ohne ausdrückliche Einwilligung des Empfängers verboten!

Makleranfragen nicht erwünscht. Nach § 7 UWG sind unaufgeforderte Kontaktaufnahmen durch Makler ohne ausdrückliche Einwilligung des Empfängers verboten!

ohne-makler (OM) ist weder Anbieter noch Vermittler der Immobilie. OM betreibt eine Plattform für Immobilieneigentümer, die unter anderem die gleichzeitige Veröffentlichung einzelner Inserate auf mehreren Immobilienportalen ermöglicht. Die Inhalte dieser Inserate werden ausschließlich von Dritten verantwortet. Für die Richtigkeit, Vollständigkeit oder Rechtmäßigkeit der Angaben übernimmt OM keine Haftung. Hinweise auf mögliche Rechtsverstöße können jederzeit gemeldet werden und werden nach Prüfung umgehend bearbeitet.

Anbieter

6% Rendite - kernsanierte 3 Zimmerwohnung mit Garage in Mannheim Schwetzingerstadt

Vertriebsansprechpartner: expose.salutation.NO_SALUTATION Privatangebot

Weitere Informationen finden Sie unter:
http://www.ohne-makler.net (Website)
Impressum des Anbieters

Schlafzimmer 1 location icon Burgstraße 4, 68165 Schwetzingerstadt/Oststadt, Mannheim
Wohnfläche
65 m²
Zimmer
3
Kaufpreis
299.000 €
Finanzierung berechnen Anbieter kontaktieren