Oststadt: 3-Zimmer-Perle mit Augustaanlagen-Blick – Sanierungsobjekt mit enormem Potenzial!

location icon 68165 Schwetzingerstadt/Oststadt, Mannheim
In Zusammenarbeit mit Immoscout Logo

Informationen

Etage
3 von 6
Wohnfläche ca.
80 m²
Nutzfläche ca.
3 m²
Bezugsfrei ab
Sofort
Zimmer
3
Schlafzimmer
2
Badezimmer
1
  • Aufzug
  • Keller
  • Balkon

Kosten

Kaufpreis
335.000 €
Hausgeld
285,00 €
Provision für Käufer
2,38%

Bausubstanz & Energieausweis

Baujahr
1960
Objektzustand
Renovierungsbedürftig
Ausstattung
Normale Qualität
Heizungsart
Fernwärme
Wesentlicher Energieträger
Fernwärme
Energieausweis
liegt vor
Energieausweistyp
Verbrauchsausweis
Endenergiebedarf
139 kWh/(m²*a)
Energie­effizienz­klasse
E
139 kWh/(m²*a)
Energie­effizienz­klasse E
  • A+
  • A
  • B
  • C
  • D
  • E
  • F
  • G
  • H
  • 0
  • 25
  • 50
  • 75
  • 100
  • 125
  • 150
  • 175
  • 200
  • 225
  • >250

Objektbeschreibung

Diese helle und 3-Zimmer Wohnung mit zwei Balkonen und hervorragendem Schnitt befindet sich in einem gepflegten 21-Parteien-Wohnhaus aus den 1960er Jahre. Die attraktive Immobilie mit Personenaufzug befindet sich in einer der beliebtesten und repräsentativsten Wohnlagen Mannheims.
Die Wohnung überzeugt durch ihre sonnige Süd- und Nord-Ausrichtung sowie den direkten Blick aus dem Wohnzimmer auf die Augustaanlage – Mannheims berühmteste und kunstvoll gestaltete Straße mit der renommierten Skulpturenmeile / Kunstmeile, die mit über 60 zeitgenössischen Skulpturen ein einzigartiges Open-Air-Museum bildet.

Zusammenfassung – Ihre Vorteile auf einen Blick

Helle 3-Zimmer-Wohnung mit zwei Balkonen
Traumhafter Blick auf die Augustaanlage / Skulpturenmeile
Gepflegtes Mehrfamilienhaus mit Aufzug
Sehr gute zentrale Lage in der Oststadt
Deutliches Wertsteigerungspotenzial durch Sanierung

Die Wohnung eignet sich hervorragend als Eigennutzung nach Modernisierung oder als wertstabile Kapitalanlage in einer der attraktivsten Lagen Mannheims.

Gerne übersenden wir Ihnen auf Anfrage Grundriss, Energieausweis und weitere Details. Besichtigungstermine sind kurzfristig möglich.

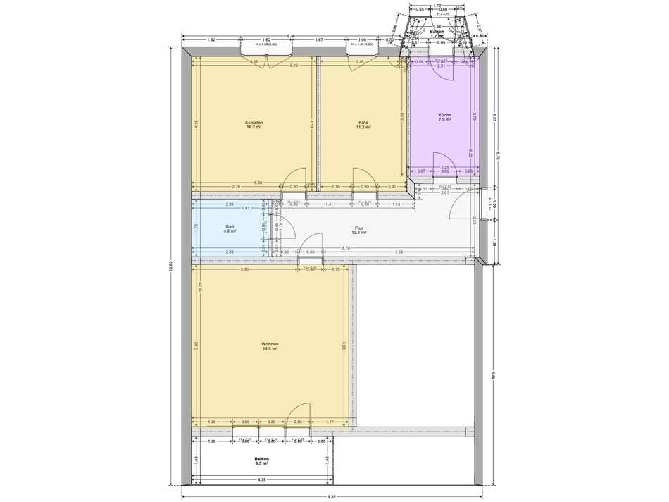
Grundriss

Frontansicht

Ausstattung

- Helles, großzügiges Wohnzimmer mit Südbalkon und herrlichem Blick in die grüne, baumgesäumte Augustaanlage
- Geräumiger Flur (ideal als Garderoben- und Abstellbereich)
- Elternschlafzimmer (ruhig gelegen)
- Zweites Zimmer (Kinder-/Arbeits-/Gästezimmer)
- Innenliegendes Badezimmer mit Badewanne
- Separate Küche mit zwei fest eingebauten Vorratsschränken und Zugang zum praktischen Nordbalkon (ideal zum Lüften oder als kleiner Frühstücksbalkon)

Bodenbeläge: hochwertiges Laminat in den Wohn- und Schlafräumen, Fliesen in Bad und Küche

Weitere Ausstattungsmerkmale:
- Gepflegtes, helles Treppenhaus
- Eigener Kellerabstellraum
- Personenaufzug
- Kabel-TV-Anschluss

Hinweis zur Parkplatzsituation
Die Wohnung verfügt über keinen eigenen Stellplatz. In unmittelbarer Umgebung stehen jedoch zahlreiche öffentliche Parkplätze sowie Anwohnerparkzonen zur Verfügung – typisch und gut lösbar in dieser zentralen, innerstädtischen Lage.

Sanierungsbedarf

Die Wohnung präsentiert sich in einem grundsoliden, aber sanierungsbedürftigen Zustand. Geplante / anstehende Modernisierungsmaßnahmen betreffen insbesondere:

- Erneuerung der Elektroinstallation
- Austausch der Fenster
- Sanierung des Badezimmers
- Erneuerung der Oberflächen (Böden, Wände)

Diese Investitionen bieten die einmalige Chance, die Wohnung nach eigenen Vorstellungen und mit hohem Wertsteigerungspotenzial zu modernisieren – ideal für Eigennutzer mit handwerklichem Interesse oder Investoren, die eine gefragte Lage mit Entwicklungspotenzial suchen.

Lage

Oststadt: 3-Zimmer-Perle mit Augustaanlagen-Blick – Sanierungsobjekt mit enormem Potenzial!
68165 Schwetzingerstadt/Oststadt, Mannheim

Die genaue Adresse dieses Objekts erhalten Sie vom Anbieter.

Die Mannheimer Oststadt (Schwetzingerstadt/Oststadt) zählt zu den gefragtesten und lebendigsten Stadtteilen Mannheims. Die Augustaanlage verbindet Kultur, Grünanlagen und City-Nähe auf einzigartige Weise. In wenigen Minuten erreichen Sie die Innenstadt-Quadrate, den Wasserturm, den Luisenpark, die Universität sowie exzellente Einkaufs- und Gastronomieangebote. ÖPNV-Anbindungen (Straßenbahn, Bus) sind fußläufig hervorragend erreichbar.

Sonstiges

Der Makler-Vertrag mit uns und/oder unserem Beauftragten kommt durch die Bestätigung der Inanspruchnahme unserer Maklertätigkeit in Textform zustande, wie z.B. insbesondere die Unterschrift des Suchkundenvertrages und/oder des Objekt-Exposés. Die Höhe der Courtage richtet sich nach den ab dem 23.12.2020 in Kraftgetretenen gesetzlichen Regelungen zur Teilung der Maklercourtage. Hiernach wird die Courtage regelmäßig für beide Parteien (Eigentümer und Käufer) 2,38 % auf den Kaufpreis inklusive gesetzlicher Umsatzsteuer betragen und ist bei notariellem Vertragsabschluss verdient und fällig. Die Höhe der Bruttocourtage unterliegt einer Anpassung bei Steuersatzänderung. […] Grunderwerbsteuer, Notar- und Gerichtskosten trägt der Käufer. Bitte haben Sie Verständnis, dass wir nur Anfragen mit Ihren vollständig ausgefüllten Adressdaten bearbeiten können.Zusammenfassung – Ihre Vorteile auf einen Blick

Interessiert? Wir freuen uns auf Ihre Kontaktaufnahme!

Anbieter

immoFraMa GmbH Rohrlachstraße 79, 67063 Ludwigshafen am Rhein

Oststadt: 3-Zimmer-Perle mit Augustaanlagen-Blick – Sanierungsobjekt mit enormem Potenzial!

Vertriebsansprechpartner: Herr Thomas Jurk

Weitere Informationen finden Sie unter:
Impressum des Anbieters
Widerrufsbelehrung

Frontansicht location icon 68165 Schwetzingerstadt/Oststadt, Mannheim
Wohnfläche
80 m²
Zimmer
3
Kaufpreis
335.000 €
Finanzierung berechnen Anbieter kontaktieren