+++ Zentrumsnahe 1 Zimmer Wohnung mit Loggia und Fahrstuhl +++

location icon Kreuzstraße 110, 38118 Westliches Ringgebiet, Braunschweig
In Zusammenarbeit mit Immoscout Logo

Informationen

Typ
Etagenwohnung
Etage
2
Wohnfläche ca.
42 m²
Zimmer
1
Badezimmer
1
  • Aufzug
  • Keller
  • Balkon

Kosten

Kaufpreis
120.000 €
Provision für Käufer
3,57% inkl. MwSt.
Die Käuferprovision beträgt 3,57% inkl. MwSt. vom beurkundeten Kaufpreis. Verdient und fällig mit Beurkundung des notariellen Kaufvertrages. Der Immobilienmakler hat einen provisionspflichtigen Maklervertrag mit dem Verkäufer in gleicher Höhe abgeschlossen.

Bausubstanz & Energieausweis

Baujahr
1972
Ausstattung
Normale Qualität
Heizungsart
Fernwärme
Wesentlicher Energieträger
Fernwärme
Energieausweis
liegt vor
Energieausweistyp
Verbrauchsausweis
Endenergiebedarf
129 kWh/(m²*a)
Energie­effizienz­klasse
D
129 kWh/(m²*a)
Energie­effizienz­klasse D
  • A+
  • A
  • B
  • C
  • D
  • E
  • F
  • G
  • H
  • 0
  • 25
  • 50
  • 75
  • 100
  • 125
  • 150
  • 175
  • 200
  • 225
  • >250

Objektbeschreibung

Zentrumsnahe 1 Zimmer Eigentumswohnung mit großer Loggia und Fahrstuhl im Haus.

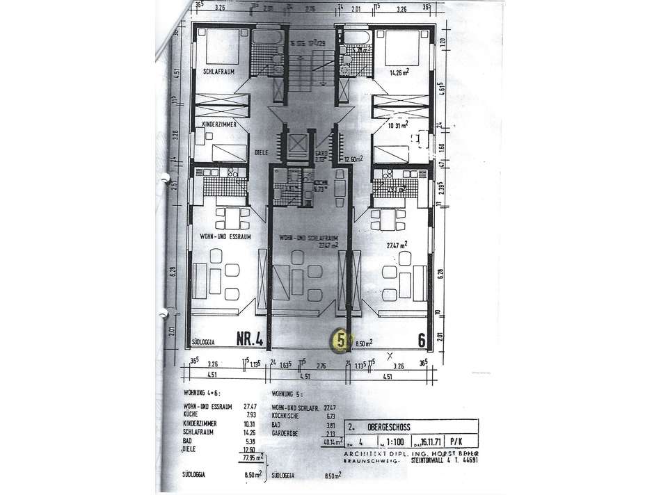
Diese im 2. Obergeschoss gelegene ca. 42m² große Wohnung ist  bestens geeignet für eine Einzelperson.  

Neben einer praktischen Küchenzeile bietet das große Wohn- und Schlafzimmer mit Zugang auf die Loggia, genügend Platz zum Leben, Schlafen und Arbeiten/Lernen.

Die Wohnung verfügt über ein innenliegendes Duschbad und einen kleinen Keller. Hinter dem Haus sind PKW Stellplätze. 

Gern stellen wir Ihnen dieses Objekt während einer Besichtigung genauer vor.

Grundriss

Außenansicht 1

Ausstattung

- Kunststofffenster
- Loggia
- Küchenzeile
- Keller
- Fahrstuhl im Haus

Lage

+++ Zentrumsnahe 1 Zimmer Wohnung mit Loggia und Fahrstuhl +++
Kreuzstraße 110, 38118 Westliches Ringgebiet, Braunschweig
38118 Braunschweig, Kreuzstr. 110

Sonstiges

Kundeninformation:
Unser Angebot basiert auf den Angaben Dritter und obwohl wir alle Angaben sorgfältig machen, müssen wir uns Irrtümer, Auslassungen sowie Zwischenverkauf vorbehalten. Wir übernehmen keine Gewähr/Haftung für die Richtigkeit, Vollständigkeit und Aktualität der von Dritten gemachten Angaben. Unser Exposé ist nur für den Empfänger bestimmt. 

Sonstiges:
Bitte haben Sie dafür Verständnis, dass wir Anfragen nur bearbeiten können, wenn folgende Daten vollständig angegeben werden:
- Name
- Wohnanschrift
- Telefon- oder Mobilnummer
- E-Mail Adresse

Anbieter

BAUER IMMOBILIEN Dornenbusch 8, 38120 Braunschweig

+++ Zentrumsnahe 1 Zimmer Wohnung mit Loggia und Fahrstuhl +++

Vertriebsansprechpartner: Herr Andreas Bauer

Weitere Informationen finden Sie unter:
http://www.bauerimmobilien24.de (Website)
Impressum des Anbieters
Widerrufsbelehrung

Außenansicht 1 location icon Kreuzstraße 110, 38118 Westliches Ringgebiet, Braunschweig
Wohnfläche
42 m²
Zimmer
1
Kaufpreis
120.000 €
Finanzierung berechnen Anbieter kontaktieren