Ein Juwel im Aichtal: "Wohnen Sie großzügig in reizvoller und ruhiger Sonnenlage" Modernes EFH

location icon 72631 Aichtal
In Zusammenarbeit mit Immoscout Logo

Informationen

Haustyp
Einfamilienhaus (freistehend)
Etagenanzahl
1
Wohnfläche ca.
187 m²
Grundstücksfläche ca.
500 m²
Zimmer
6
Schlafzimmer
4
Badezimmer
2
Anzahl Garage / Stellplatz
1 Außenstellplatz
  • Keller
  • Provisionsfrei

Kosten

Kaufpreis
1.039.040 €
Provision für Käufer
Nein

Bausubstanz & Energieausweis

Baujahr
2027
Bauphase
Haus in Planung (projektiert)
Ausstattung
Gehobene Qualität
Heizungsart
Fußbodenheizung

Objektbeschreibung

In einem familienfreundlichen Neubaugebiet von Aichtal-Grötzingen präsentieren wir Ihnen dieses sehr gut ausgestattete Einfamilienhaus mit großzügigem Raumangebot und durchdachter Grundrissgestaltung. Ideal für Familien, die Wohnen im modernen Stil mit viel Platz und Komfort verbinden möchten.

Das Erdgeschoss bietet eine durchdachte Mischung aus Wohn- und Arbeitsbereich. Ein separates Büro eignet sich ideal für's Homeoffice. Ergänzt wird diese Ebene durch ein modernes Duschbad sowie einen praktischen Abstellraum.
Das Herzstück bildet der offene und sehr großzügige Wohn-, Ess- und Küchenbereich, der mit viel Tageslicht und einer einladenden Atmosphäre begeistert. Von hier gelangen Sie auf die sonnige Terrasse und in den herrlichen Garten.
Das großzügige Elternschlafzimmer im Dachgeschoss bietet ausreichend Platz. Zwei helle Kinderzimmer schaffen ideale Bedingungen zum Spielen, Lernen und Entspannen.
Ein geräumiges Badezimmer rundet diese Etage ab und sorgt für Komfort im Alltag.
Das Untergeschoss bietet wertvollen zusätzlichen Platz: Ein großer Kellerraum eignet sich perfekt für Stauraum, Werkstatt oder Hobbybereich.
Ein separater Vorratsraum sorgt für Ordnung im Alltag.
Ein echtes Highlight ist das große Gästezimmer – ideal für Besuch von Freunden und Familie, als Jugendzimmer oder als Rückzugsort für größere Kinder.
Die Fußbodenheizung im ganzen Haus sorgt für ein angenehmes Wohnraumklima.

Grundriss

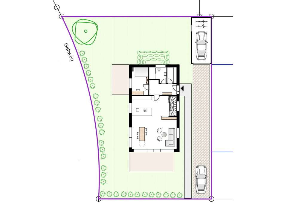
Lageplan
Lageplan
Erdgeschoss
Erdgeschoss
Dachgeschoss
Dachgeschoss
Untergeschoss
Untergeschoss
Schnitt
Schnitt
Grundstück/Haus gesucht!
Grundstück/Haus gesucht!

Ausstattung

Das Haus ist bezugsfertig geplant. Alle Bodenbeläge, Malerarbeiten sowie elektrischen Rollläden sind im Preis enthalten. Sämtliche Zimmer sind mit Parkettboden ausgestattet.
Dieses Einfamilienhaus wird in sehr guter Massivbauweise (Stein auf Stein) mit 3-fach Verglasung, Fußbodenheizung, LWWP (GEG 2024) und Photovoltaik-Anlage erstellt, Energieeffizienzklasse A+.

Lage

Ein Juwel im Aichtal: "Wohnen Sie großzügig in reizvoller und ruhiger Sonnenlage" Modernes EFH
72631 Aichtal

Die genaue Adresse dieses Objekts erhalten Sie vom Anbieter.

Das Haus befindet sich in ruhiger und gewachsener Wohnlage (Baulücke) in Aichtal-Grötzingen. Die Umgebung ist geprägt von Einfamilienhäusern und bietet ein angenehmes, sicheres Wohnumfeld – ideal für Familien mit Kindern.
Kindergärten, Schulen sowie Einkaufsmöglichkeiten für den täglichen Bedarf sind bequem erreichbar. Zahlreiche Freizeit- und Erholungsmöglichkeiten in der Natur befinden sich in unmittelbarer Nähe und laden zu Spaziergängen, Fahrradtouren und gemeinsamen Ausflügen ein.
Die gute Anbindung an die umliegenden Städte Stuttgart, Tübingen und Reutlingen, macht den Standort zusätzlich attraktiv – so verbinden Sie ruhiges Wohnen mit einer guten Erreichbarkeit der Region.

Sonstiges

Vereinbaren Sie gleich einen Termin mit uns am Grundstück, um mehr zu erfahren.

Ihre Wünsche können in der Aufteilung und Planung noch berücksichtigt werden. 

"Eine Gelegenheit für die junge Familie, in traumhafter Sonnenlage und mit herrlichem Garten sehr großzügig und modern zu wohnen!"

Anbieter

gut Immobilien GmbH Große Falterstr. 101, 70597 Stuttgart

Ein Juwel im Aichtal: "Wohnen Sie großzügig in reizvoller und ruhiger Sonnenlage" Modernes EFH

Vertriebsansprechpartner: Frau Agnes Kech

Weitere Informationen finden Sie unter:
http://www.gutimmo.de (Website)
Impressum des Anbieters

Ansicht location icon 72631 Aichtal
Wohnfläche
187 m²
Grundstücksfläche
500 m²
Zimmer
6
Kaufpreis
1.039.040 €
Finanzierung berechnen Anbieter kontaktieren