Flexibles Doppelhaus in Karlsruhe - Individuell geplant und energieeffizient gebaut

location icon 76227 Durlach, Karlsruhe
In Zusammenarbeit mit Immoscout Logo

Informationen

Haustyp
Doppelhaushälfte
Etagenanzahl
2
Wohnfläche ca.
113,64 m²
Grundstücksfläche ca.
845 m²
Zimmer
3
Schlafzimmer
2
Badezimmer
1
  • Barrierefrei
  • Gäste-WC
  • Provisionsfrei

Kosten

Kaufpreis
1.027.384 €

Bausubstanz & Energieausweis

Baujahr
2026
Bauphase
Haus in Planung (projektiert)

Objektbeschreibung

Diese projektiert geplante Doppelhaushälfte in Karlsruhe bietet Ihnen die Möglichkeit, Ihr zukünftiges Zuhause ganz nach Ihren persönlichen Wünschen und Vorstellungen zu gestalten. Mit 3,0 Zimmern und einer Wohnfläche von 113,64 m² auf zwei Etagen genießen Sie großzügigen Raum für Ihre Familie. Zwei Schlafzimmer, ein modernes Badezimmer sowie ein zusätzliches Gäste-WC schaffen komfortable Lebensbedingungen. Das Haus ist nach dem KfW55-Standard energieeffizient konzipiert und steht auf einem großzügigen 845 m² großen Grundstück im attraktiven Wohngebiet von Karlsruhe. Das Projekt berücksichtigt Ihre individuellen Raumwünsche und Gestaltungsideen, sodass Ihr Doppelhaus zu einem einzigartigen Zuhause wird.

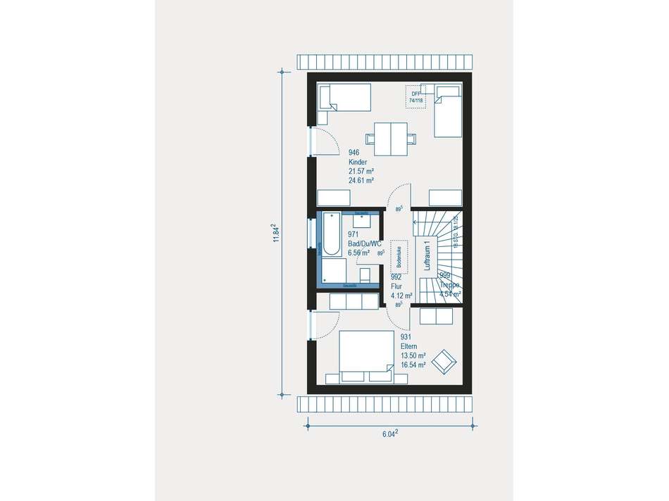
Grundriss

Grundriss
Grundriss
Grundriss
Grundriss
Grundriss
Grundriss

Ausstattung

Das Haus überzeugt mit hochwertiger Holzrahmenbauweise und moderner, energieeffizienter Wand- und Gebäudetechnik. Zu allen Häusern gehören unter anderem eine Architektenleistung, ein Bau-Sicherheitspaket, eine Luft-Wasser-Wärmepumpe sowie dreifach verglaste Fenster mit Aluminiumrollläden. Die Luftdichtigkeitsmessung und kontrollierte Be- und Entlüftungsanlage mit Wärmerückgewinnung sorgen für ein angenehmes Raumklima. Hochwertige Innenausstattung wie Echtholztreppe, Innentüren, Zargen, Fliesen, Bodenbeläge und Tapeten sind ebenfalls inklusive. Zudem erhalten Sie detaillierte und leicht verständliche Ausbauanleitungen, Ausbaupakete mit Materialien und Werkzeugen sowie persönliche Beratung durch einen Ausbauberater.

Lage

Flexibles Doppelhaus in Karlsruhe - Individuell geplant und energieeffizient gebaut
76227 Durlach, Karlsruhe

Die genaue Adresse dieses Objekts erhalten Sie vom Anbieter.

Das Grundstück befindet sich in einem ruhigen Wohngebiet von Karlsruhe, das mit einer ausgezeichneten Infrastruktur überzeugt. Einkaufsmöglichkeiten, Schulen und Kindergärten sind in kurzer Fahrzeit erreichbar. Freizeitmöglichkeiten in der Natur und diverse Sportangebote in der Umgebung garantieren eine hohe Lebensqualität. Die gute Anbindung an öffentliche Verkehrsmittel ermöglicht Ihnen eine schnelle Erreichbarkeit des Stadtzentrums und anderer wichtiger Ziele.

Sonstiges

allkauf steht für maximale Sicherheit, kurze Lieferzeiten und garantierte Fertigstellung. Mit über 35 Jahren Erfahrung im Fertighausbau bietet allkauf Ihnen moderne Ausbauhäuser mit hoher Qualität, flexibler Grundrissgestaltung und umfangreichen Inklusivleistungen. Sie können bei uns zwischen drei Dienstleistungspaketen wählen: VIELBESCHÄFTIGTE, AMBITIONIERTE und HEIMWERKER, die Ihnen ermöglichen, den Innenausbau selbst zu übernehmen oder sich professionell unterstützen zu lassen. Durch das Ausbaukonzept sparen Sie Kosten und erhalten eine Muskelhypothek bei der Finanzierung. Zu jedem Haus gehören umfangreiche Leistungen wie Architektenleistung, Bau-Sicherheitspaket, Heizungs- und Elektropaket, dreifach verglaste Fenster, Luft-Wasser-Wärmepumpe, Echtholztreppe, Bodenbeläge, Luftdichtigkeitsmessung, Dämm- und Beplankungspaket, Haustechnik, kontrollierte Be- und Entlüftung, Sanitärobjekte, Innentüren, Steckdosen, detaillierte Ausbauanleitungen, Ausbaupakete mit Werkzeugen, persönliche Beratung, Festpreis-, Liefer- und Fertigstellungsgarantie sowie Zugang zur Ausbau-Akademie. Die Vorteile eines allkauf Fertighauses umfassen kurze Lieferzeiten von durchschnittlich 14 Wochen, hohe Planungssicherheit, Flexibilität im Innenausbau, individuelle Grundrissplanung, hohe Materialqualität, nachhaltiges Bauen mit Holzrahmenbauweise und professionelle Unterstützung durch erfahrene Hausbauprofis. Ob Doppelhaus, Einfamilienhaus oder Bungalow - mit allkauf realisieren Sie Ihren Traum vom Eigenheim. Vereinbaren Sie noch heute Ihren Termin zur Planung Ihres individuellen allkauf Traumhauses.

Anbieter

allkauf haus - Nils Drach Xaver-Fuhr-Strasse 111, 68163 Mannheim

Vertriebsansprechpartner: Herr Nils Drach

Weitere Informationen finden Sie unter:
https://www.allkauf-ausbauhaus.de/ (Website)
Impressum des Anbieters
Widerrufsbelehrung

812963-66330-1-g location icon 76227 Durlach, Karlsruhe
Wohnfläche
113,64 m²
Grundstücksfläche
845 m²
Zimmer
3
Kaufpreis
1.027.384 €
Finanzierung berechnen Anbieter kontaktieren