Einzigartige Gelegenheit in Kirchentellingsfurt - Doppelhaus inkl. Grundstück

location icon 72138 Kirchentellinsfurt
In Zusammenarbeit mit Immoscout Logo

Informationen

Haustyp
Doppelhaushälfte
Etagenanzahl
2
Wohnfläche ca.
140 m²
Grundstücksfläche ca.
297 m²
Zimmer
6
  • Provisionsfrei

Kosten

Kaufpreis
725.220 €

Bausubstanz & Energieausweis

Baujahr
unbekannt
Bauphase
Haus in Planung (projektiert)

Objektbeschreibung

Doppelhaushälfte "Celebration 139" 

Die Häuser können im Grundriss und in der Größe individuell angepasst werden - schnell sein lohnt sich!

Individuelle Architektur, modernes Design und ein zeitgemäßes Raumkonzept - die Doppelhaushälfte Celebration 139 verbindet auf einzigartige Weise Qualität, Komfort und zeitgemäßes Wohnen. Auf ca. 150 m² Wohnfläche bietet dieses Haus großzügige Räume für Familien, Paare oder Kapitalanleger und lässt sich ganz nach Ihren persönlichen Vorstellungen gestalten und erweitern.

Optional besteht die Möglichkeit, eine Einliegerwohnung im Keller zu realisieren - ideal zur Vermietung, als Gästebereich oder für ein Mehrgenerationenkonzept. Der voll unterkellerte Bauweise schafft zusätzlichen Platz für Technik, Hobby, Stauraum oder Wohnen.

Architektonisch überzeugt das Celebration 139 durch moderne Gestaltungsmöglichkeiten wie große Fensterflächen, klare Linien und attraktive Fassadenelemente. Ergänzende Designoptionen wie Erker, Balkone, Giebel, farbliche Akzente oder Holzdetails ermöglichen eine individuelle Außengestaltung. Verschiedene Dachformen, zum Beispiel Sattel- oder Walmdach, runden das äußere Erscheinungsbild harmonisch ab.

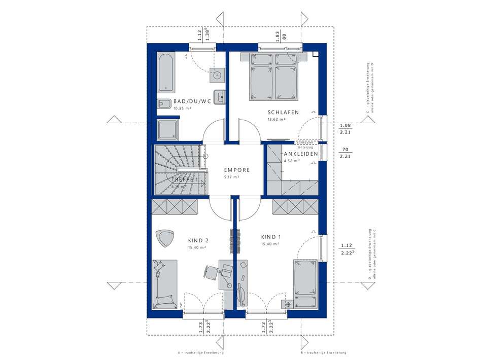
Auch im Inneren begeistert das Haus durch ein durchdachtes Raumkonzept. Der offen gestaltete Wohn- und Essbereich im Erdgeschoss sorgt für ein helles, großzügiges Wohngefühl und bildet das Herzstück des Hauses. Große Fensterflächen sorgen für viel Tageslicht und ein angenehmes Wohnklima. Im Obergeschoss erwarten Sie komfortable Schlafräume sowie ein großzügiges Bad mit modernen Ausstattungsoptionen.

Die Doppelhaushälfte Celebration 139 vereint modernes Wohnen mit hoher Funktionalität und Flexibilität - und bietet den perfekten Rahmen, um Ihren Wohntraum Wirklichkeit werden zu lassen.

Ergänzende Links

Ausstattung

Das Haus wird in bekannter Bien-Zenker Qualität schlüsselfertig angeboten. Das Haus kann individuell verändert werden.

Im Preis enthalten:

* Effizienzhaus 40 plus optional mit QNG Zertifikat
* Satteldach mit 25° Dachneigung
* Kniestock 160cm
* auf Bodenplatte
* Fenster mit 3-fach-Isolierverglasung, mit exzellentem Wärme- und Schalldämmschutz
* ökologische und nachhaltige Fertig-Bauweise
* Planungswünsche können noch berücksichtigt werden!
* Wohlfühl-Klima-Heizung
* Sanitär- und Elektroinstallation

Anpassung der Dachneigung und des Kniestocks an Bauvorschriften gegen Preiskorrektur möglich. 

Grundstück im Preis inbegriffen. Zuzüglich der ortsüblichen Baunebenkosten. 

Gerne beraten wir Sie mit unserem unabhängigen Finanzierungsspezialisten!

Lage

Einzigartige Gelegenheit in Kirchentellingsfurt - Doppelhaus inkl. Grundstück
72138 Kirchentellinsfurt

Die genaue Adresse dieses Objekts erhalten Sie vom Anbieter.

Die Immobilie befindet sich in der attraktiven Gemeinde Kirchentellinsfurt (PLZ 72138), idyllisch gelegen zwischen Reutlingen und Tübingen. Die Umgebung zeichnet sich durch eine ruhige, naturnahe Wohnlage mit gleichzeitig hervorragender Anbindung an die umliegenden Städte aus.

Kirchentellinsfurt bietet eine sehr gute Infrastruktur mit Einkaufsmöglichkeiten für den täglichen Bedarf, Kindergärten, Schulen sowie medizinischer Versorgung vor Ort. Die nahegelegenen Städte Tübingen und Reutlingen sind in wenigen Minuten erreichbar und erweitern das Angebot an Kultur, Bildung und Freizeit erheblich.

Die Verkehrsanbindung ist ausgezeichnet: Über die Bundesstraße B27 sowie den Bahnhof Kirchentellinsfurt bestehen schnelle Verbindungen in Richtung Stuttgart, Tübingen und Reutlingen. Auch der öffentliche Nahverkehr ist gut ausgebaut.

Die landschaftlich reizvolle Umgebung mit dem Neckartal und zahlreichen Rad- und Wanderwegen lädt zu vielfältigen Freizeitaktivitäten und Erholung im Grünen ein.

Sonstiges

Wir schätzen Ihr Interesse an unserem Grundstücksangebot und möchten darauf hinweisen, dass wir aus verschiedenen Gründen die genaue Adresse des Grundstücks erst in einem persönlichen Gespräch bekannt geben können. Dies dient sowohl Ihrem als auch unserem Schutz, um sicherzustellen, dass wir Ihre Anfrage bestmöglich bearbeiten können.

Kontaktangaben sind wichtig: Bitte stellen Sie sicher, dass Sie uns Ihre vollständigen Kontaktdaten zur Verfügung stellen. Anfragen ohne vollständige Kontaktdaten können aus organisatorischen Gründen nicht bearbeitet werden.

Kommission oder Direktverkauf: Wir möchten darauf hinweisen, dass das angebotene Grundstück entweder in Kommission angeboten wird oder direkt von Dritten verkauft wird. Dies kann bedeuten, dass der oben genannte Preis aufgrund der aktuellen Marktsituationen variieren kann.

Maklercourtage: Bitte beachten Sie, dass bei diesem Grundstücksangebot gegebenenfalls eine zusätzliche Maklercourtage anfallen kann. Die genauen Bedingungen hierfür werden im persönlichen Gespräch erläutert.

Das Haus befindet sich in der Projektierung - Änderungen an Grundriss und Aussehen sind jederzeit möglich.

Die Bilder, Grundrisse, etc können Sonderausstattungen enthalten die nicht im Preis inbegriffen sind.

Planen Sie ihren Traum vom eigenen Haus mit Bien-Zenker. Wir beraten Sie ausführlich und ehrlich. Gemeinsam schaffen wir die Grundlagen für Ihren Hausbau.

Kevin Baur und Bien-Zenker - Hier passt alles zusammen!

http://diefertighausprofis.de/ 

-

Bien-Zenker ist für seine überdurchschnittliche Kundenorientierung als einer von "Deutschlands Kundenchampions 2017" ausgezeichnet worden. Dieses Zertifikat verleihen das F.A.Z.-Institut, die Deutsche Gesellschaft für Qualität (DGQ) und das Marktforschungsunternehmen forum! GmbH seit zehn Jahren an Unternehmen, denen es in besonderem Maße gelingt, Kunden leistungsmäßig und emotional anzusprechen, an sich zu binden und somit zu Fans zu machen. Grundlage ist eine umfangreiche Rundum-Kundenbeziehungs-Analyse auf Basis repräsentativer Kundenbefragungen.

Bei der Untersuchung der Servicequalität von zwölf Fertighausanbietern durch das Deutsche Institut für Service-Qualität (DISQ) erreichte Bien-Zenker einen hervorragenden dritten Platz. Dabei konnten besonders unsere beratenden Kollegen glänzen, die in den verdeckt durchgeführten Testberatungen nicht nur mit Fachwissen, sondern auch dadurch punkteten, dass sie sehr umfassend auf die Lebenssituation der Kunden eingingen. Zudem wurde der schnelle und reibungslose Versand von Informationsmaterialien gelobt.

Beim jährlich stattfindenden Focus-Money Fertighaushersteller-Test wurde Bien-Zenker erneut zum "Fairsten Fertighausanbieter" gekürt. Dabei konnte sich der hessische Anbieter gegenüber dem Vorjahr sogar noch verbessern: in der Kategorie "Faire Kundenkommunikation" beurteilten die befragten Bauherren die Leistung nun mit "sehr gut". Insgesamt vergaben sie an Bien-Zenker 4 x die Note "sehr gut" und 2 x "gut".

Anbieter

Bien Zenker GmbH - Kevin Baur Linsenhof Strasse 22, 72810 Gomaringen

Einzigartige Gelegenheit in Kirchentellingsfurt - Doppelhaus inkl. Grundstück

Vertriebsansprechpartner: Herr Kevin Baur

Weitere Informationen finden Sie unter:
http://www.bien-zenker.de (Website)
Impressum des Anbieters
Widerrufsbelehrung

26860-1797-48-g location icon 72138 Kirchentellinsfurt
Wohnfläche
140 m²
Grundstücksfläche
297 m²
Zimmer
6
Kaufpreis
725.220 €
Finanzierung berechnen Anbieter kontaktieren