Raum für Ihre Wohnträume: Großzügiges Grundstück mit EFH

location icon 76189 Grünwinkel, Karlsruhe
In Zusammenarbeit mit Immoscout Logo

Informationen

Haustyp
Einfamilienhaus (freistehend)
Etagenanzahl
2
Wohnfläche ca.
141,61 m²
Nutzfläche ca.
20 m²
Grundstücksfläche ca.
600 m²
Bezugsfrei ab
nach Absprache
Zimmer
4
Schlafzimmer
3
Badezimmer
1
Anzahl Garage / Stellplatz
2 Garagen

Kosten

Kaufpreis
565.000 €
Provision für Käufer
3,57 %

Bausubstanz & Energieausweis

Baujahr
1943
Objektzustand
Renovierungsbedürftig
Ausstattung
Einfach Qualität
Wesentlicher Energieträger
Strom

Objektbeschreibung

Attraktives Grundstück mit Entwicklungspotenzial in Karlsruhe-Grünwinkel – Heidenstückersiedlung

In gefragter Wohnlage von Grünwinkel, einem beliebten Stadtteil von Karlsruhe, befindet sich dieses ca. 600 m² große Grundstück mit Bestandsimmobilie.

Das Objekt bietet eine interessante Perspektive: Neben der Möglichkeit einer umfassenden Sanierung des bestehenden Wohnhauses eröffnet das Grundstück attraktives Neubaupotenzial im Rahmen der Umgebungsbebauung gemäß § 34 BauGB. Die Bebauung orientiert sich somit an der vorhandenen Nachbarschaftsbebauung und bietet Spielraum für eine zeitgemäße Neuentwicklung.

Die bestehende Bebauung umfasst ein ursprünglich 1943 errichtetes Wohnhaus mit Erweiterung aus dem Jahr 1981 sowie eine 1986 errichtete Doppelgarage. Die aktuelle Wohnfläche beträgt ca. 142 m². Das Gebäude befindet sich in sanierungsbedürftigem Zustand.

Besonders hervorzuheben ist die Grundstücksgröße in Kombination mit der ruhigen, gewachsenen Wohnlage innerhalb der Heidenstückersiedlung – ein Umfeld, das durch Einfamilienhäuser und eine stabile Nachfrage geprägt ist. Die gemeinsame Zufahrt zu weiteren Bungalows und einem Garagenhof ist grundbuchrechtlich geregelt.

Ob Modernisierung mit Wertsteigerung oder attraktive Neubebauung – dieses Grundstück bietet eine solide Grundlage für ein nachhaltiges Investment in gefragter Lage von Karlsruhe.

Gerne stellen wir Ihnen weitere Unterlagen zur Verfügung und freuen uns auf Ihre Kontaktaufnahme.

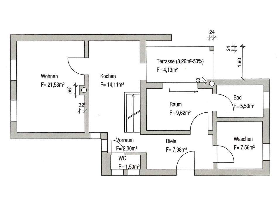
Grundriss

Grundriss EG
Grundriss EG
Grudriss DG
Grudriss DG

Ausstattung

++ 600 m² Grundstück
++ ca. 142 qm Wohnfläche
++ Elektronachspeicheröfen
++ Doppelgarage

Lage

Raum für Ihre Wohnträume: Großzügiges Grundstück mit EFH
76189 Grünwinkel, Karlsruhe

Die genaue Adresse dieses Objekts erhalten Sie vom Anbieter.

Die Immobilie befindet sich in 76189 Karlsruhe, im beliebten Stadtteil Karlsruhe, genauer in der gewachsenen und familienfreundlichen Wohnlage von Grünwinkel (Heidenstückersiedlung).

Das Wohnumfeld ist geprägt von Ein- und Zweifamilienhäusern, wenig Durchgangsverkehr sowie angenehmer Nachbarschaftsbebauung – ideal für Familien mit Kindern. Spielplätze, Kindergärten und Schulen befinden sich in der näheren Umgebung und sind teilweise bequem fußläufig oder mit dem Fahrrad erreichbar.

Einkaufsmöglichkeiten für den täglichen Bedarf, Bäckereien, Ärzte sowie weitere Dienstleister sind ebenfalls schnell erreichbar. Darüber hinaus bietet der Stadtteil eine gute Anbindung an größere Einkaufszentren und Gewerbestandorte im Karlsruher Westen.

Die Verkehrsanbindung ist hervorragend: Über die nahegelegenen Bundesstraßen B10 und B36 sowie die Südtangente gelangen Sie in wenigen Minuten in die Karlsruher Innenstadt sowie zu den Autobahnen A5 und A8. Auch der öffentliche Nahverkehr ist gut ausgebaut und sorgt für eine komfortable Verbindung in die Innenstadt und umliegende Stadtteile.

Zudem bietet die Lage einen hohen Freizeitwert: Grünflächen, Radwege und Naherholungsgebiete in der Umgebung laden zu Spaziergängen, sportlichen Aktivitäten und Erholung im Freien ein.

Insgesamt überzeugt die Lage durch ihre Kombination aus ruhigem, familienfreundlichem Wohnen und sehr guter Infrastruktur – eine gefragte Wohnadresse im Südwesten von Karlsruhe.

Sonstiges

Dieses Exposè ist eine unverbindliche Präsentationsdarstellung und wurde von uns durch Unterlagen und Angaben der Verkäufer zusammengestellt. Für die Richtigkeit der einzelnen Angaben können wir daher keine Haftung übernehmen. Jegliche Änderungen sind vorbehalten. Gültigkeit hat der notarielle Kaufvertrag. 

Mit der Angabe meiner Telefon-Nummer und E-Mail-Adresse stimme ich zu, dass Martin Heck Immobilien GmbH mir Exposés und besondere Angebote auch telefonisch/per E-Mail unterbreitet.

Anbieter

Martin Heck Immobilien GmbH Neckarstr. 62, 76199 Karlsruhe

Raum für Ihre Wohnträume: Großzügiges Grundstück mit EFH

Vertriebsansprechpartner: Frau Natalie Bredhauer

Weitere Informationen finden Sie unter:
http://www.heck-immobilien.de (Website)
Impressum des Anbieters
Widerrufsbelehrung

Hausansicht location icon 76189 Grünwinkel, Karlsruhe
Wohnfläche
141,61 m²
Grundstücksfläche
600 m²
Zimmer
4
Kaufpreis
565.000 €
Finanzierung berechnen Anbieter kontaktieren