Echtes Grundstück mit Ausblick in RT-Altenburg - jetzt schnell sein!

location icon 72768 Altenburg, Reutlingen
In Zusammenarbeit mit Immoscout Logo

Informationen

Wohnfläche ca.
145 m²
Grundstücksfläche ca.
301 m²
Zimmer
5
  • Provisionsfrei

Kosten

Kaufpreis
765.000 €

Bausubstanz & Energieausweis

Baujahr
unbekannt
Bauphase
Haus in Planung (projektiert)

Objektbeschreibung

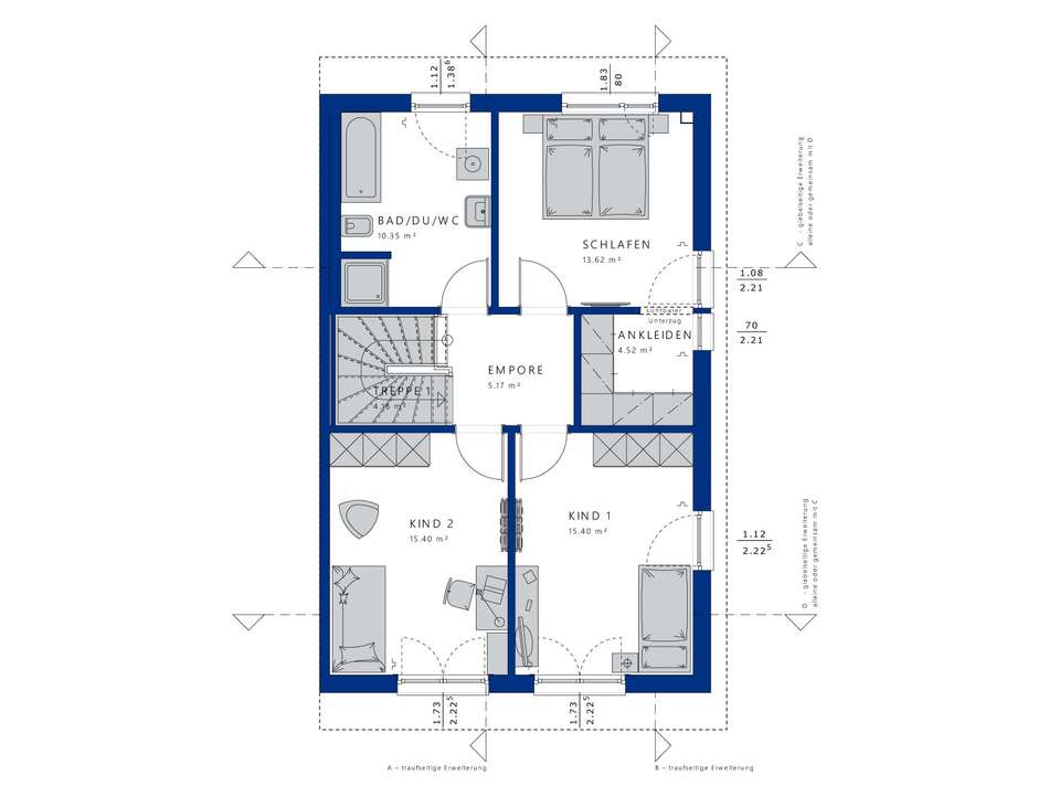
Diese tolle Doppelhaushälfte wird Sie begeistern. Mit einer Breite von knapp 7,4 bietet sie Einfamilienhaus-Feeling zu den Kosten einer Wohnung. Der großzügige Wohn- und Essbereich mit toller offener Wohnküche wird Sie begeistern. Im Obergeschoss finden sich ein geräumiges Bad, das Eltern-Schlafzimmer und zwei große Kinderzimmer mit viel Platz zum Spielen.

Lassen Sie sich von mir beraten, welche Möglichkeiten Sie auf diesem Grundstück haben.

Erfahren Sie jetzt mehr über tolle Förder- und Finanzierungsmöglichkeiten.

Ergänzende Links

Ausstattung

Das Haus wird in bekannter Bien-Zenker Qualität schlüsselfertig angeboten. 

Im Preis enthalten:

* Effizienzhaus 40 plus
* Flachdach 
* Keller
* Fenster mit 3-fach-Isolierverglasung, mit exzellentem Wärme- und Schalldämmschutz
* ökologische und nachhaltige Fertig-Bauweise
* Planungswünsche können noch berücksichtigt werden!
* Wohlfühl-Klima-Heizung
* Sanitär- und Elektroinstallation

Gerne beraten wir Sie mit unserem unabhängigen Finanzierungsspezialisten!

Lage

Echtes Grundstück mit Ausblick in RT-Altenburg - jetzt schnell sein!
72768 Altenburg, Reutlingen

Die genaue Adresse dieses Objekts erhalten Sie vom Anbieter.

Trotz der ruhigen Lage des Grundstücks ist die Anbindung hervorragend - die Innenstadt von Reutlingen mit allen Einkaufsmöglichkeiten als auch Schulen, Kindergärten, Ärzte und Apotheken ist rasch erreichbar. Die Nähe zur B 464 ermöglicht eine schnelle Erreichbarkeit in die gesamte Region und darüber hinaus.

Sonstiges

Wir schätzen Ihr Interesse an unserem Grundstücksangebot und möchten darauf hinweisen, dass wir aus verschiedenen Gründen die genaue Adresse des Grundstücks erst in einem persönlichen Gespräch bekannt geben können. Dies dient sowohl Ihrem als auch unserem Schutz, um sicherzustellen, dass wir Ihre Anfrage bestmöglich bearbeiten können.

Kontaktangaben sind wichtig: Bitte stellen Sie sicher, dass Sie uns Ihre vollständigen Kontaktdaten zur Verfügung stellen. Anfragen ohne vollständige Kontaktdaten können aus organisatorischen Gründen nicht bearbeitet werden.

Kommission oder Direktverkauf: Wir möchten darauf hinweisen, dass das angebotene Grundstück entweder in Kommission angeboten wird oder direkt von Dritten verkauft wird. Dies kann bedeuten, dass der oben genannte Preis aufgrund der aktuellen Marktsituationen variieren kann.

Maklercourtage: Bitte beachten Sie, dass bei diesem Grundstücksangebot gegebenenfalls eine zusätzliche Maklercourtage anfallen kann. Die genauen Bedingungen hierfür werden im persönlich

Anbieter

Bien Zenker GmbH - Freie Handelsvertretung Christina Serli Dietrich-Bonhoeffer-Straße 13, 70794 Filderstadt

Vertriebsansprechpartner: Frau Christina Serli

Weitere Informationen finden Sie unter:
http://www.bien-zenker.de (Website)
Impressum des Anbieters
Widerrufsbelehrung

 BienZenker CEL V DHH FD XL li location icon 72768 Altenburg, Reutlingen
Wohnfläche
145 m²
Grundstücksfläche
301 m²
Zimmer
5
Kaufpreis
765.000 €
Finanzierung berechnen Anbieter kontaktieren