MODERN LIVING AT IT´S BEST – KLARE LINIEN UND NATÜRLICHE MATERIALIEN. INKLUSIVE BAUPLATZ!

location icon 72074 Pfrondorf, Tübingen
In Zusammenarbeit mit Immoscout Logo

Informationen

Etagenanzahl
2
Wohnfläche ca.
186 m²
Grundstücksfläche ca.
752 m²
Bezugsfrei ab
Februar 2027
Zimmer
6
Schlafzimmer
4
Badezimmer
2
  • Barrierefrei
  • Gäste-WC
  • Provisionsfrei

Kosten

Kaufpreis
1.039.000 €
Provision für Käufer
Nein

Bausubstanz & Energieausweis

Baujahr
unbekannt
Bauphase
Haus in Planung (projektiert)
Ausstattung
Gehobene Qualität
Heizungsart
Wärmepumpe

Objektbeschreibung

Entspannen & Genießen
Das Erdgeschoss empfängt Sie mit einer großzügigen Terrasse, ausgestattet für gemütliche Lounge-Momente und gesellige Abende unter freiem Himmel. Der angrenzende Anbau bietet Platz für individuelle Nutzungsideen, während der liebevoll gestaltete Garten dezent beleuchtet zum Verweilen einlädt. 
Clever und komfortabel 
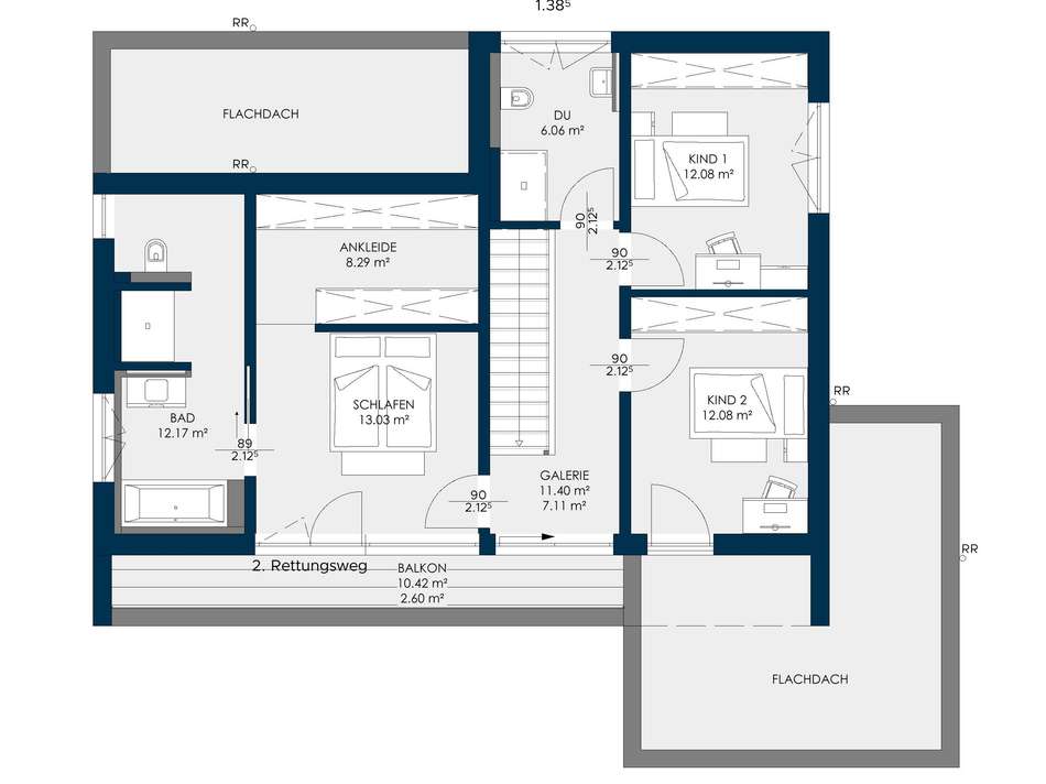
Das Obergeschoss verbindet eine helle Galerie mit großzügigem Schlafzimmer und angrenzendem Ankleidebereich, elegantem Bad, zwei fast gleich großen Kinderzimmern, kleinem Duschbad und einem entspannten Balkon. Im Erdgeschoss empfängt eine großzügige Diele und ein flexibler Raum für Home-Office oder Wellness sowie ein praktisches Duschbad. Zoniert und doch offen bilden Küche, Essplatz und großes Wohnzimmer einen offenen, modernen Lebensraum – perfekt zum Genießen und Entspannen. 
Elevated Comfort
Im Obergeschoss begeistert ein überdachter Balkon mit modernem Glasgeländer, von dem aus Sie den Garten entspannt überblicken können. Komfort, Ästhetik und Funktionalität vereinen sich hier zu einem Zuhause, das jeden Moment besonders macht.

Grundriss

Erdgeschoß
Erdgeschoß
Obergeschoss
Obergeschoss

Weitere Dokumente

Ergänzende Links

Ausstattung

Hausbau beginnt mit Vertrauen.
Wir sind mehr als nur Experten für schlüsselfertigen Holzbau – wir sind Geschichtenerzähler, die mit jedem Haus eine neue, einzigartige Geschichte schreiben. Eine Geschichte von Nachhaltigkeit, Geborgenheit und tiefer Verbundenheit mit der Natur. Bauen mit Holz ist für uns eine Herzensangelegenheit, denn es ist nicht nur energieeffizient und umweltfreundlich, sondern auch Ausdruck unserer Verantwortung gegenüber zukünftigen Generationen. Die positive Ökobilanz eines KAMPA Hauses begleitet Sie ein Leben lang.
Bei KAMPA vereinen wir individuelle Architektur, die Ihre Träume verwirklicht, zukunftsweisende Nachhaltigkeit, die die Umwelt schont und Ressourcen spart, sowie überzeugende Innovation, die höchste Ansprüche an Design und Funktionalität erfüllt. So schaffen wir nicht nur ein wunderschönes Zuhause für Sie, sondern auch einen wertvollen Beitrag für unsere Umwelt. Lassen Sie uns gemeinsam Ihren Wohntraum verwirklichen!
Wir bei KAMPA verstehen, dass ein Haus mehr ist als nur ein Gebäude – es ist ein Spiegelbild Ihrer Persönlichkeit, ein Ort der Geborgenheit und ein Zuhause für unvergessliche Momente. Deshalb ist jedes KAMPA Haus einzigartig, ein wahres Unikat, das Ihre individuellen Wünsche und Träume widerspiegelt.
Mit KAMPA erschaffen Sie nicht nur ein Haus, sondern ein Zuhause, in dem Ihr
Glück das wichtigste Fundament ist.Ein einugsfertiges KAMPA Haus verfügt über folgende Ausstattung:

PERFEKT GEDÄMMTE GEBÄUDEHÜLLE.     
Sie reduziert den Energiebedarf auf ein Minimum und ist Basis für höchste Energieeffizienz: 
- Thermofundamentplatte 
- MultiTec Wand-System 
- Passivhausfenster mit erhöhtem Einbruchschutz 
- Thermodach

SMARTE ENERGIE- & KLIMALÖSUNG inklusive Viessmann Systemzertifikat.                            
Jetzt neu: WELTNEUHEIT INVISIBLE. 
- Luft-Wasser-Wärmepumpe 
- Reversibler Betrieb für eine angenehme Kühlung serienmäßig 
- Fußbodenheizung in jedem Wohnraum 
- Wohnraumlüftung mit Wärmerückgewinnung für ein perfektes Raumklima 
- Photovoltaikanlage plus Stromspeicher

HÖCHSTE STAATLICHE FÖRDERUNG + ATTRAKTIVE FINANZIERUNGSMÖGLICHKEITEN
- Zinsvorteile und Tilgungszuschuss mit dem höchsten staatlichen Förderdarlehen 
- Attraktive Zinsvorteile mit dem KAMPA Nachhaltigkeitsdarlehen
- Unterlagen für Fördermittelbeschaffung inklusive 
- Echtes Plusenergiehaus der Klasse Effizienzhaus 40 NH gemäß den Richtlinien des QNG 
- Minimale Energie-/Heizkosten Monat für Monat

HOCHWERTIGE AUSSTATTUNG 
- Hausbau 360°: alles, was es braucht. 
Live zu erleben in einem der Bauinnovationszentren 
- Hochwertige Standardausstattung von Premium-Markenpartnern inklusive 
- Einbauküche mit Energieeffizienzgeräten in jeweils höchster Energieeffizienzklasse 
- Beratung und Planung im eigenen Küchenstudio mit 3D-Kino 
- Sprechanlage mit Innen- und Außenstation 
- Blitz- und Überspannungsschutz 
- Rinnen und Rohre aus Titanzink statt Kunststoff 
- Wandintegrierte Alu-Rollläden, elektrisch angetrieben mit Smart Home System 
- Blower Door Test inklusive

PLANUNGSLEISTUNGEN
- Planungs- und Baustellengespräch mit dem KAMPA Architekten, Baugesuch inklusive 
- Bauleitung vom ersten Spatenstich bis zur Hausübergabe 
- Baubegleitung durch einen zugelassenen Energieeffizienzexperten 
- EnEV-Berechnung inklusive Energieausweis 
- QNG-Zertifizierung möglich

SICHERHEIT
- Aus einer Hand, von der Bodenplatte bis zur Schlüsselübergabe 
- 12 Monate Festpreisgarantie 
- 5 Jahre Garantie gemäß BGB 
- 30 Jahre Garantie für die tragende Holzkonstruktion 
- Zertifizierter Hausbau gemäß der QDF-Qualitätsrichtlinie
QNG- Zertifiziert

Lage

MODERN LIVING AT IT´S BEST – KLARE LINIEN UND NATÜRLICHE MATERIALIEN. INKLUSIVE BAUPLATZ!
72074 Pfrondorf, Tübingen

Die genaue Adresse dieses Objekts erhalten Sie vom Anbieter.

Informationen über Tübingen finden Sie über den Link im Anhang

Sonstiges

Bitte beachten Sie, daß die Abbildungen und Grundrisse Sonderausstattungen enthalten die zum Mehrpreis zu erhalten sind.

Im Kaufpreis ist das belagsfertige Wohnhaus und der Bauplatz enthalten.

Wir erstellen gerne ein einzugsfertiges Angebot für Sie!

RUFEN SIE MICH AN UND RESERVIEREN IHREN KOSTENLOSEN, UNVERBINDLICHEN BERATUNGSTERMIN! 015754226611

Anbieter

Handelsvertretung für die KAMPA GmbH - Stefan Herrler Kipfenberger Straße 1, 85125 Kinding

MODERN LIVING AT IT´S BEST – KLARE LINIEN UND NATÜRLICHE MATERIALIEN. INKLUSIVE BAUPLATZ!

Vertriebsansprechpartner: Herr Stefan Herrler

Weitere Informationen finden Sie unter:
http://www.hsberatungsbuero.de (Website)
Impressum des Anbieters

Signatur_K186_Homepage - Kopie location icon 72074 Pfrondorf, Tübingen
Wohnfläche
186 m²
Grundstücksfläche
752 m²
Zimmer
6
Kaufpreis
1.039.000 €
Finanzierung berechnen Anbieter kontaktieren