Ihr Traumhaus in Karlsruhe: Doppelhaushälfte nach Ihren Wünschen

location icon 76228 Durlach, Karlsruhe
In Zusammenarbeit mit Immoscout Logo

Informationen

Haustyp
Doppelhaushälfte
Etagenanzahl
2
Wohnfläche ca.
113,64 m²
Grundstücksfläche ca.
349 m²
Zimmer
3
Schlafzimmer
2
Badezimmer
1
  • Barrierefrei
  • Gäste-WC
  • Provisionsfrei

Kosten

Kaufpreis
549.515 €

Bausubstanz & Energieausweis

Baujahr
unbekannt
Bauphase
Haus in Planung (projektiert)

Objektbeschreibung

Entdecken Sie Ihre neue Doppelhaushälfte in einem ruhigen Wohngebiet in Karlsruhe! Diese projektierten Immobilien lassen sich ganz nach Ihren individuellen Wünschen und Vorstellungen gestalten. Auf zwei Etagen bietet dieses Zuhause mit einer Wohnfläche von 113,64 m² und einem großzügigen Grundstück von 349 m² ausreichend Platz für Ihre Familie. Die 3 Zimmer, darunter 2 Schlafzimmer, ein Badezimmer und ein zusätzliches Gäste-WC, bieten Ihnen und Ihren Liebsten den perfekten Rückzugsort. Genießen Sie modernste Bauweise und Energieeffizienz nach KFW55 Standard - für ein behagliches und umweltfreundliches Zuhause!

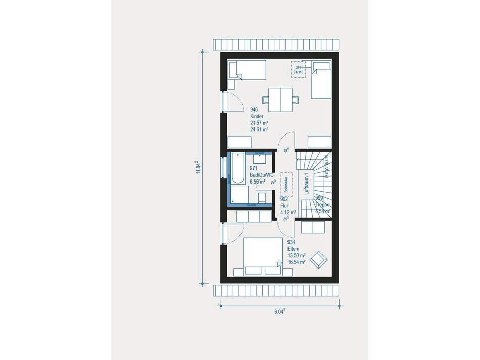
Grundriss

Grundriss
Grundriss
Grundriss
Grundriss
Grundriss
Grundriss

Ausstattung

Die Doppelhaushälfte überzeugt durch ihre hochwertige Ausstattung: 
- Energieeffizienzwand 
- Echtholztreppe 
- Luft-Wasser-Wärmepumpe 
- Fußbodenheizung 
- Be- und Entlüftungsanlage 
- 3-fach verglaste Fenster inklusive Rollläden mit Aluminiumlamellen 
- Lichte Raumhöhe von 2,75 m 
- TOXPROOF Gütesiegel - schadstoffgeprüfte Materialien 
- Just-in-Time-Lieferungen 
- Bemusterung im eigenen Bemusterungszentrum mit Markenprodukten 

Durch die Möglichkeit, Ihr Haus individuell zu gestalten, können Sie Ihrer Kreativität freien Lauf lassen und Ihr Zuhause ganz nach Ihren Vorstellungen kreieren.

Lage

Ihr Traumhaus in Karlsruhe: Doppelhaushälfte nach Ihren Wünschen
76228 Durlach, Karlsruhe

Die genaue Adresse dieses Objekts erhalten Sie vom Anbieter.

Die Doppelhaushälfte befindet sich in einem attraktiven Wohngebiet in Karlsruhe, das sowohl ruhige Wohnqualität als auch eine hervorragende Anbindung an die Infrastruktur bietet. In der näheren Umgebung finden Sie Schulen, Einkaufsmöglichkeiten sowie Freizeitangebote, die das Leben in dieser Region besonders lebenswert machen. Nutzen Sie die zahlreichen Parks und Grünflächen für entspannende Spaziergänge oder sportliche Aktivitäten im Freien.

Sonstiges

allkauf bedeutet für Sie maximale Sicherheit und kurze Lieferzeiten. Wir garantieren die Fertigstellung und unsere Festpreisgarantie schützt Sie vor unerwarteten Kosten. 

Zu allen Häusern gehört: 
- Energieeffizienzwand 
- Echtholztreppe 
- Luft-Wasser-Wärmepumpe 
- Fußbodenheizung 
- Be- und Entlüftungsanlage 
- 3-fach verglaste Fenster inklusive Rollläden mit Aluminiumlamellen 
- Lichte Raumhöhe 2,75 m 
- TOXPROOF Gütesiegel - schadstoffgeprüfte Materialien 
- Just-in-Time-Lieferungen 
- Bemustern im eigenen Bemusterungszentrum mit Markenprodukten 

Erleben Sie die Vorteile unserer Dienstleistungspakete für VIELBESCHÄFTIGTE, AMBITIONIERTE und HEIMWERKER, die Ihnen helfen, Ihr Haus nach Ihren Vorstellungen zu gestalten oder die Profis von allkauf zu beauftragen. Vereinbaren Sie noch heute Ihren Termin zur Planung Ihres allkauf Traumhauses!

Anbieter

allkauf haus - Kristijan Zekan Xaver-Fuhr-Strasse 111, 68163 Mannheim

Vertriebsansprechpartner: Herr Kristijan Zekan

Weitere Informationen finden Sie unter:
https://www.allkauf-ausbauhaus.de/ (Website)
Impressum des Anbieters
Widerrufsbelehrung

730352-57273-1-g location icon 76228 Durlach, Karlsruhe
Wohnfläche
113,64 m²
Grundstücksfläche
349 m²
Zimmer
3
Kaufpreis
549.515 €
Finanzierung berechnen Anbieter kontaktieren