Modernisiertes Gästehaus/Hotel Garni mit 6 Gästezimmern in Dettingen/Erms

location icon 72581 Dettingen an der Erms
In Zusammenarbeit mit Immoscout Logo

Informationen

Haustyp
Mehrfamilienhaus
Etagenanzahl
2
Wohnfläche ca.
155,8 m²
Grundstücksfläche ca.
396 m²
Zimmer
6

Kosten

Kaufpreis
500.000 €
Provision für Käufer
4,76% vom Kaufpreis inkl. 19% MwSt.

Bausubstanz & Energieausweis

Baujahr
unbekannt
Objektzustand
Modernisiert
Ausstattung
Normale Qualität

Objektbeschreibung

In zentraler Lage von Dettingen an der Erms erwartet Sie eine modernisierte Immobilie mit einem charmanten Bistro (mit Halbküche), 6 komfortablen, voll ausgestatteten Gästezimmern und mehreren Nebenräumen. Das Haus eignet sich ideal als Gästehaus, Pension oder Hotel Garni. Von 2024 bis 2025 wurde die Immobilie aufwendig modernisiert und unter anderem mit neuen Fenstern, Fußböden, Bädern sowie einer neuen Heizung ausgestattet. 

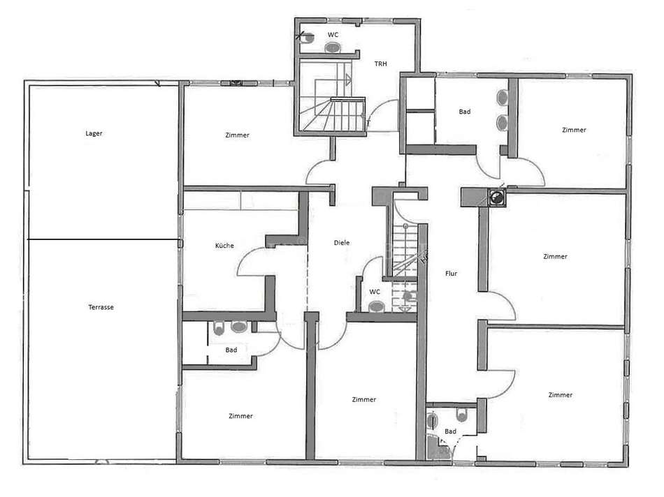
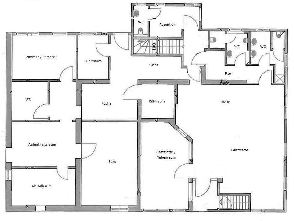
Grundriss

Grundriss EG
Grundriss EG
Grundriss OG
Grundriss OG

Ausstattung

Erdgeschoss:
Der einladende Gastbereich bietet getrennte Zonen für Raucher und Nichtraucher sowie verschiedene Sitzmöglichkeiten. Ein separater Barbereich sorgt für eine angenehme Atmosphäre. Ergänzt wird das Angebot durch getrennte Toilettenanlagen und diverse Nebenräume.

Die Küche ist ausschließlich für die Zubereitung und das Aufwärmen von Speisen ohne Fettverarbeitung ausgelegt. 

Ein separater Eingang führt zum Rezeptionsbereich der Gästezimmer im Obergeschoss.

1. Obergeschoss:
Hier stehen sechs hochwertig möblierte Gästezimmer zur Verfügung. Einige Zimmer verfügen über ein eigenes Bad, während andere auf die modernen Gemeinschaftsduschen und -Toiletten im Flurbereich zugreifen. Die Ausstattung umfasst Einzelbetten, Nachttische, Schränke, Vorhänge, Lampen und weitere Annehmlichkeiten – alles bezugsfertig. 

Zusätzlich bietet das Obergeschoss eine großzügige gemeinschaftliche Küche, einen praktischen Hauswirtschaftsraum und eine große Terrasse.

Lage

Modernisiertes Gästehaus/Hotel Garni mit 6 Gästezimmern in Dettingen/Erms
72581 Dettingen an der Erms

Die genaue Adresse dieses Objekts erhalten Sie vom Anbieter.

Das Wohn- und Geschäftshaus befindet sich in zentraler Lage von Dettingen an der Erms, einer lebendigen Gemeinde im Ermstal zwischen Metzingen und Bad Urach. Einkaufsmöglichkeiten, Restaurants und Dienstleister sind bequem zu Fuß erreichbar. Die Gemeinde bietet eine gute Infrastruktur sowie vielfältige Freizeit- und Naherholungsmöglichkeiten. 

Der öffentliche Nahverkehr ist durch mehrere Buslinien und den nahegelegenen Bahnhof Dettingen-Mitte optimal angebunden, mit direkten Verbindungen nach Metzingen, Reutlingen und Stuttgart.

Sonstiges

3 PKW-Außenstellplätze.
Großer Keller.

Der Energieausweis wurde beantragt. 

Anbieter

Modernisiertes Gästehaus/Hotel Garni mit 6 Gästezimmern in Dettingen/Erms

Vertriebsansprechpartner: expose.salutation.NO_SALUTATION Dennis Gärtner

Weitere Informationen finden Sie unter:
Impressum des Anbieters

Außenansicht location icon 72581 Dettingen an der Erms
Wohnfläche
155,8 m²
Grundstücksfläche
396 m²
Zimmer
6
Kaufpreis
500.000 €
Finanzierung berechnen Anbieter kontaktieren