Top renoviertes Reihenmittelhaus in Orschel-Hagen mit Wintergarten und Garage

location icon 72760 Reutlingen-Mitte, Reutlingen
In Zusammenarbeit mit Immoscout Logo

Informationen

Haustyp
Reihenmittelhaus
Etagenanzahl
2
Wohnfläche ca.
126 m²
Nutzfläche ca.
67 m²
Grundstücksfläche ca.
268 m²
Bezugsfrei ab
Nach Absprache
Zimmer
3,5
Schlafzimmer
2
Badezimmer
1
Anzahl Garage / Stellplatz
1 Garage
  • Gäste-WC
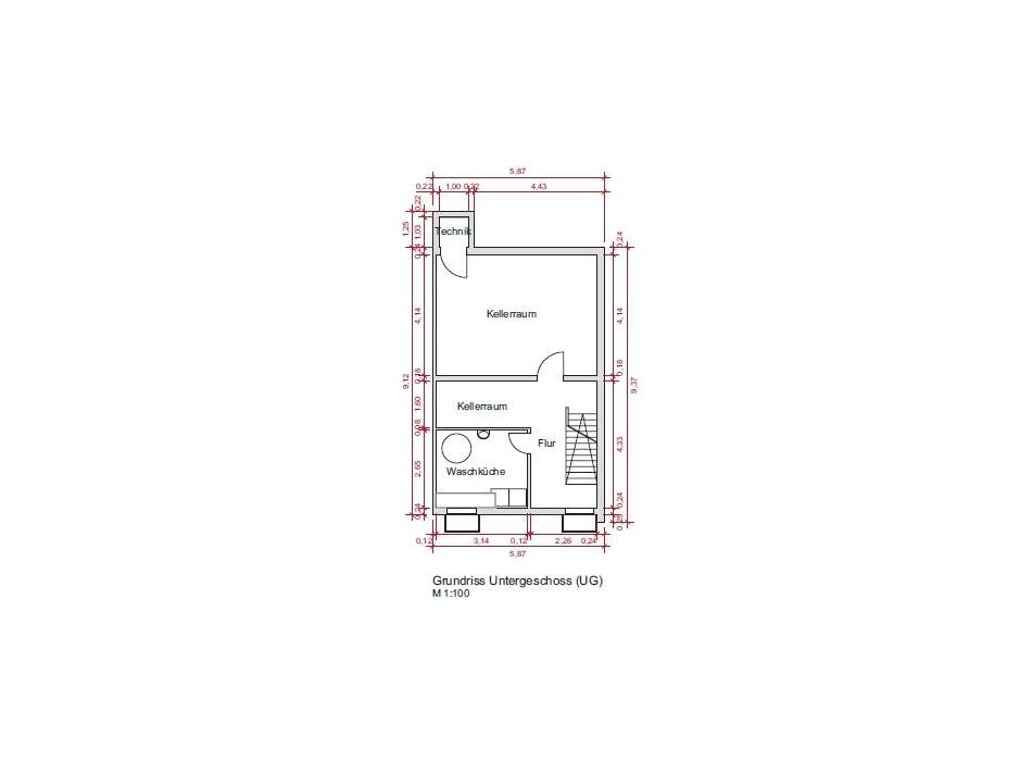
  • Keller

Kosten

Kaufpreis
498.000 €
Provision für Käufer
3,57 % Käuferprovision inkl. MwSt.

Bausubstanz & Energieausweis

Baujahr
1964
Objektzustand
Modernisiert
Ausstattung
Gehobene Qualität
Heizungsart
Fernwärme
Wesentlicher Energieträger
Fernwärme
Energieausweis
liegt vor
Energieausweistyp
Bedarfsausweis
Endenergiebedarf
83,4 kWh/(m²*a)
Energie­effizienz­klasse
C
83,4 kWh/(m²*a)
Energie­effizienz­klasse C
  • A+
  • A
  • B
  • C
  • D
  • E
  • F
  • G
  • H
  • 0
  • 25
  • 50
  • 75
  • 100
  • 125
  • 150
  • 175
  • 200
  • 225
  • >250

Objektbeschreibung

Dieses klassisch errichtete, massiv gebaute Reihenmittelhaus aus dem Baujahr 1964 wurde im Laufe der Jahre liebevoll modernisiert, erweitert und renoviert.
Die neu Gestaltung der Wohn- und Außenbereiche erfolgte konzeptionell und wurde von einer
Landschaftsarchitektin geplant und professionell umgesetzt. 
Es befindet sich in der sogenannten 
familienfreundlichen Gartenstadt Orschel-Hagen.

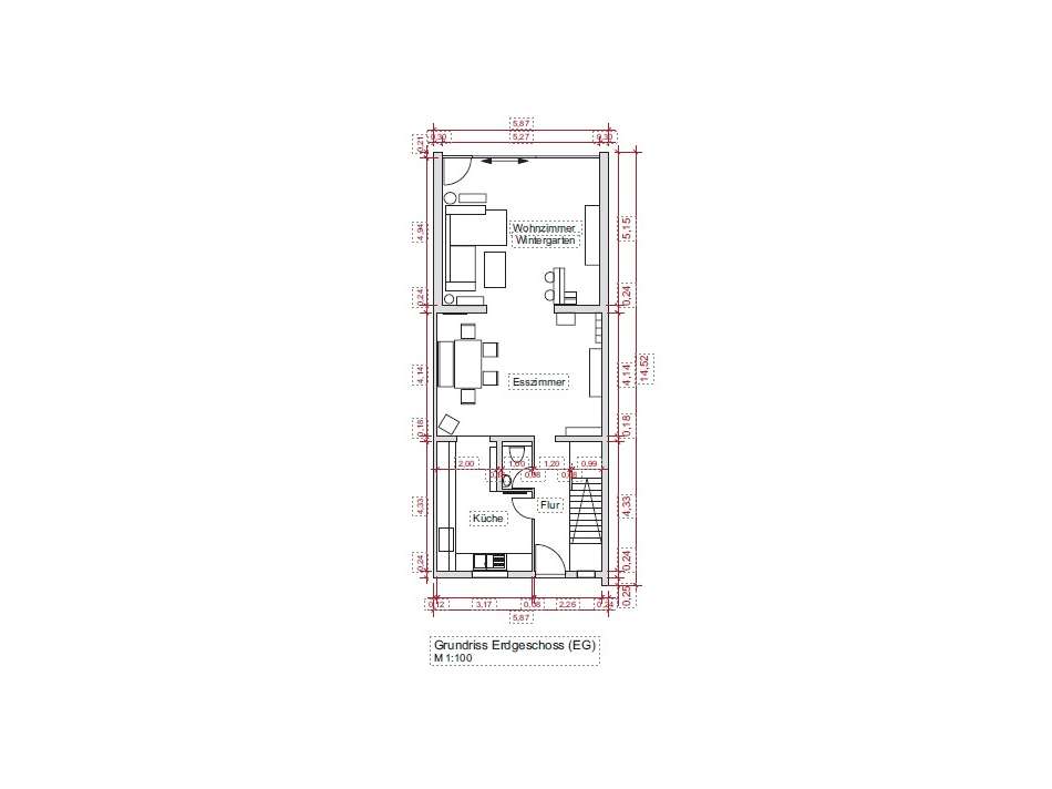
Bereits beim Betreten des Hauses wird deutlich, wie gut die Räume aufeinander abgestimmt sind. Der offen gestaltete Wohn- und Essbereich wirkt durch große, helle Fenster freundlich und einladend. Der angebaute schöne  Wintergarten mit Fußbodenheizung wird schnell zu einem der Lieblingsplätze im Haus. Dadurch ist das Haus lichtdurchflutet, gemütlich und das ganze Jahr über nutzbar, mit direktem Blick in den Garten. 

Im Obergeschoss befinden sich die privaten Rückzugsräume sowie ein luxuriös gestaltetes Badezimmer mit fast bodengleicher Dusche und einer eleganten Eckbadewanne. Vom Badezimmer aus besteht direkter Zugang zu einem überdachten Balkon, der einen geschützten Platz im Freien bietet und den Wohnkomfort dieser Etage zusätzlich erhöht.
Zusätzlich befindet sich im Erdgeschoss ein Gäste WC und im 1OG. ein separates WC.

Auch der Garten folgt einem klaren, durchdachten Konzept. 
Eine Feuerstelle, ein praktischer Schuppen sowie der direkte Zugang vom Grundstück in die Garage machen den Außenbereich nicht nur attraktiv, sondern auch äußerst funktional. 
Der schöne Garten, Terrasse und Wintergarten ergänzen den Wohnraum sinnvoll und schaffen zusätzliche Aufenthaltsqualität im Grünen mit weiteren diversen Extras. Eine zusätzlicher Stellplatz  kann günstig angemietet werden. 

Die durchdachte Planung und die besondere Wohnatmosphäre lassen sich am besten bei einer persönlichen Besichtigung erfassen. Freiwerdend nach Absprache.

Gerne laden wir Sie ein, dieses Haus vor Ort kennenzulernen und sich selbst ein Bild von seinem besonderen Charakter zu machen.

Grundriss

0ed86043-28c4-4d47-99cd-cefa18
0ed86043-28c4-4d47-99cd-cefa18
0fbe1aa6-8a67-476a-a30e-62880e
0fbe1aa6-8a67-476a-a30e-62880e
2a976101-21eb-4a1e-8173-5d3869
2a976101-21eb-4a1e-8173-5d3869

Ausstattung

+++Wintergartenanbau 2016 aus (Holz + Glas) mit Windwächter (automatischer Steuerung der Beschattung, Markise)
+++Fußbodenheizung im Wintergarten
+++Sanierung: 2001 Dach
+++teilweise weiße Holzdecken
+++2007 Fenster 3-Fachverglasung teilweise bodentief mit Schiebetüren 
+++2015 Zentral-Heizung, Sanitär, Elektro
+++2017 Herstellung Gartenanlage inklusive Terrasse 
+++2022 Rollläden
+++Schuppen für Geräte und Aufbewahrung
+++offene Feuerstelle im Garten
+++optional kann der Hot Tub übernommen werden, mit vorhandenem Anschluss
+++Pflanzgefäße aus Cortenstahl können übernommen werden 
+++moderne Küche mit Einbaugeräten
+++Wasserfilter in der Küche 
+++Glastür-Trennwand zum Essbereich 
+++Bodenbeläge: Fliesen, Holzparkett, Linoleum, Laminat
+++Rollläden in allen Zimmern
+++optional kann noch ein zusätzlicher Stellplatz sehr günstig angemietet werden
+++1 Garage mit direktem Zugang vom Garten ist vorhanden
+++WC im Erdgeschoss
+++WC im 1OG.
+++Fantastisch modernes Badezimmer mit Dusche und Badewanne im 1.OG.

Lage

Top renoviertes Reihenmittelhaus in Orschel-Hagen mit Wintergarten und 
Garage
72760 Reutlingen-Mitte, Reutlingen

Die genaue Adresse dieses Objekts erhalten Sie vom Anbieter.

Das Reihenmittelhaus befindet sich in attraktiver ruhiger Wohnlage im Reutlinger Stadtteil Orschel-Hagen, einer der familienfreundlichsten Wohngegenden im Norden der Stadt, der sogenannten Gartenstadt. Diese besticht durch eine ruhige, gewachsene Wohnstruktur mit überwiegend Reihen- und Mehrfamilienhäusern und kann Ihnen ein angenehmes, nachbarschaftliches Umfeld bieten.

Orschel-Hagen verfügt über eine sehr gute Infrastruktur. Einkaufsmöglichkeiten für den täglichen Bedarf, darunter Supermärkte, Bäckereien und Apotheken, sind fußläufig oder in wenigen Minuten erreichbar. Ebenso befinden sich Kindergärten, Schulen, Spielplätze sowie medizinische Versorgung in unmittelbarer Nähe, was die Lage besonders für Familien attraktiv macht.

Die Anbindung an den öffentlichen Nahverkehr ist hervorragend: Mehrere Buslinien verbinden Orschel-Hagen regelmäßig mit der Reutlinger Innenstadt, dem Hauptbahnhof sowie den umliegenden Stadtteilen. Auch die Bundesstraße B28 und die B312 ist schnell erreichbar und ermöglicht eine zügige Verbindung Richtung Tübingen, Stuttgart und die Region Neckar-Alb.

Zahlreiche Freizeit- und Erholungsmöglichkeiten befinden sich in der Umgebung. Grünanlagen, Spazier- und Radwege sowie Sport- und Freizeiteinrichtungen laden zu aktiver Erholung ein. Die Nähe zur Natur der Schwäbischen Alb verbindet Wohnen mit hohem Freizeitwert.

+++++Albert-Einstein-Gymnasium 1,1 Kilometer
+++++Aldi 1,8 Kilometer
+++++Städt. Kindergarten Sondelfingen 2,2 Kilometer 
+++++Mörikeschule Sondelfingen 2,2 Kilometer
+++++LIDL 2,6 Kilometer
+++++REWE 2,7 Kilometer
+++++MC Donald's Restaurant 3,0 Kilometer
+++++Reutlingen Hbf 3,6 Kilometer
+++++Tübingen über B28 in 16,9 Kilometer
+++++Stuttgart über B27 in ca. 38,8 Kilometer

Sonstiges

+++ Eine Einzelgarage  mit direktem Zugang vom Garten ist im Preis inbegriffen

+++optional kann noch ein zusätzlicher Stellplatz sehr günstig angemietet werden

+++Hot Tub mit Anschlüssen kann optional nach Preisabsprache übernommen werden

Anbieter

Landgraf Immobilien GmbH Kaiserpassage 3, 72764 Reutlingen

Top renoviertes Reihenmittelhaus in Orschel-Hagen mit Wintergarten und 
Garage

Vertriebsansprechpartner: Frau Armina Göbel

Weitere Informationen finden Sie unter:
Impressum des Anbieters
Widerrufsbelehrung

1a84b57b-68e6-4bb1-ad35-d6785d location icon 72760 Reutlingen-Mitte, Reutlingen
Wohnfläche
126 m²
Grundstücksfläche
268 m²
Zimmer
3,5
Kaufpreis
498.000 €
Finanzierung berechnen Anbieter kontaktieren