Freistehendes Einfamilienhaus mit großem Potenzial – Sanierungsobjekt & mögliches Baugrundstück

location icon 76149 Neureut, Karlsruhe
In Zusammenarbeit mit Immoscout Logo

Informationen

Haustyp
Einfamilienhaus (freistehend)
Etagenanzahl
1
Wohnfläche ca.
142,03 m²
Grundstücksfläche ca.
395 m²
Bezugsfrei ab
sofort
Zimmer
5
Schlafzimmer
4
Badezimmer
1
Anzahl Garage / Stellplatz
4 Garagen
  • Gäste-WC
  • Keller

Kosten

Kaufpreis
465.000 €
Provision für Käufer
2,95 inkl. MwSt.
Die Maklerprovision ist mit Abschluss des Hauptvertrags (notarieller Kaufvertrag) verdient und nach Rechnungstellung innerhalb von 14 Tagen zu bezahlen.

Bausubstanz & Energieausweis

Baujahr
1920
Objektzustand
Renovierungsbedürftig
Ausstattung
Einfach Qualität
Heizungsart
Öl-Heizung
Wesentlicher Energieträger
Öl
Energieausweis
liegt vor
Energieausweistyp
Bedarfsausweis
Endenergiebedarf
465,8 kWh/(m²*a)
Energie­effizienz­klasse
H
465,8 kWh/(m²*a)
Energie­effizienz­klasse H
  • A+
  • A
  • B
  • C
  • D
  • E
  • F
  • G
  • H
  • 0
  • 25
  • 50
  • 75
  • 100
  • 125
  • 150
  • 175
  • 200
  • 225
  • >250

Objektbeschreibung

Dieses freistehende, sanierungsbedürftige Einfamilienhaus bietet mit ca. 142 m² Wohnfläche eine hervorragende Grundlage für individuelle Wohnkonzepte und kreative Gestaltungsideen. Die Immobilie eignet sich sowohl für Eigennutzer als auch für Investoren und überzeugt durch ihren großzügigen Grundriss sowie vielfältige Entwicklungsoptionen.

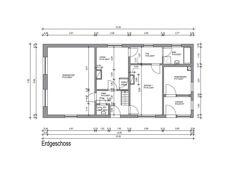
Im Erdgeschoss befinden sich eine großzügige Küche, ein Tageslichtbad, ein separates Gäste-WC sowie zwei geräumige Zimmer, die flexibel als Wohn-, Schlaf- oder Arbeitsbereiche genutzt werden können. Die solide Raumaufteilung ermöglicht eine zeitgemäße Neugestaltung nach eigenen Vorstellungen.

Das ausgebaute Dachgeschoss verfügt über drei weitere Zimmer, die sich ideal als Schlaf-, Kinder- oder Arbeitszimmer eignen. Zusätzlich besteht die Möglichkeit, ein weiteres Zimmer zum Ausbau eines zusätzlichen Badezimmers zu nutzen und so den Wohnkomfort deutlich zu erhöhen.

Ein besonderes Highlight ist der großzügige Außenbereich: Neben einer Doppelgarage, einem Carport und einer geräumigen Scheune bietet das Grundstück bei einem möglichen Abriss der Doppelgarage und der Scheune das Potenzial zur Schaffung eines zusätzlichen Baugrundstücks (vorbehaltlich behördlicher Genehmigungen). Damit eröffnet sich eine attraktive Perspektive für Neubau, Erweiterung oder separate Bebauung.

Der große Hof bietet zudem viel Platz für Fahrzeuge, Freizeitaktivitäten oder individuelle Gartengestaltung. Diese Immobilie ist ideal für Käufer, die ein Einfamilienhaus mit Sanierungspotenzial und zusätzlicher Entwicklungsmöglichkeit suchen und ihre Wohn- oder Investitionsideen langfristig umsetzen möchten.

Sie haben Interesse? Ich freue mich auf Sie!


Bitte beachten Sie, dass diese Daten auf Basis von Informationen Dritter erfolgt, für deren Richtigkeit keine Haftung übernommen wird.

Grundriss

Grundriss EG
Grundriss EG
Grundriss DG
Grundriss DG
Grundriss KG
Grundriss KG

Ausstattung

Wichtige in Kürze;

-Freistehendes Einfamilienhaus in Neureut
-Baujahr 1920
-142 m² Wohnfläche auf 1,5 Geschossen
-5 Zimmer, Tageslichtbad, Gäste-WC, (zusätzliches Bad im DG möglich)
-zusätzlich Waschküche
-teilunterkellert
-Ölheizung
-395 m² Grundstück
-Doppelgarage, Carport, zusätzliche Stellplätze
-Scheune
-potenziellen Baugrundstück auf Scheune und Doppelgarage
-Sanierungsfahrplan für energetische Sanierung vorhanden

Lage

Freistehendes Einfamilienhaus mit großem Potenzial – Sanierungsobjekt & mögliches Baugrundstück
76149 Neureut, Karlsruhe

Die genaue Adresse dieses Objekts erhalten Sie vom Anbieter.

Neureut, ein beliebter Stadtteil im Norden von Karlsruhe, bietet eine ideale Kombination aus städtischem Komfort und naturnaher Ruhe. Die Lage zeichnet sich durch ihre hervorragende Infrastruktur aus: Einkaufsmöglichkeiten, Schulen, Kindergärten und Ärzte sind in unmittelbarer Nähe und sorgen für eine hohe Lebensqualität.

Neureut ist besonders bei Familien beliebt, dank der ruhigen Wohngegend und der guten Anbindung an die Karlsruher Innenstadt. Mit dem öffentlichen Nahverkehr und den nahegelegenen Bundesstraßen ist die Innenstadt in wenigen Minuten erreichbar. Gleichzeitig bieten die umliegenden Grünflächen, Parks und Spazierwege ideale Erholungsmöglichkeiten in der Natur.

Mit seiner familienfreundlichen Atmosphäre, einer breiten Auswahl an Freizeit- und Sportangeboten sowie einer guten Verkehrsanbindung ist Neureut ein idealer Wohnort für alle, die das Leben im Grünen mit den Vorteilen der Stadt verbinden möchten.

Anbieter

Pinar Karasu Immobilienmaklerin IHK und Bankkauffrau Elbinger Str. 16i, 76139 Karlsruhe

Freistehendes Einfamilienhaus mit großem Potenzial – Sanierungsobjekt & mögliches Baugrundstück

Vertriebsansprechpartner: Frau Pinar Karasu

Weitere Informationen finden Sie unter:
http://rundumwohnen.de (Website)
Impressum des Anbieters
Widerrufsbelehrung

Haus Straßenansicht location icon 76149 Neureut, Karlsruhe
Wohnfläche
142,03 m²
Grundstücksfläche
395 m²
Zimmer
5
Kaufpreis
465.000 €
Finanzierung berechnen Anbieter kontaktieren