Ehemaliges Kirchengebäude in Wannweil zu verkaufen

location icon Marienstr. 84, 72827 Wannweil
In Zusammenarbeit mit Immoscout Logo

Informationen

Haustyp
Besondere Immobilie
Wohnfläche ca.
398 m²
Nutzfläche ca.
398 m²
Grundstücksfläche ca.
1.197 m²
Zimmer
5
  • Keller
  • Provisionsfrei

Kosten

Kaufpreis
589.000 €
Provision für Käufer
Nein

Bausubstanz & Energieausweis

Baujahr
unbekannt
Ausstattung
Normale Qualität
Heizungsart
Zentralheizung
Wesentlicher Energieträger
Öl

Objektbeschreibung

Das ehemalige Kirchengebäude ist über den Haupteingang barrierefrei zugänglich. Direkt im Eingangsbereich befindet sich eine behindertengerechte Toilette.

Vom Foyer aus gelangt man in den großzügigen Kirchensaal, der vielfältige Nutzungsmöglichkeiten bietet. Angrenzend befindet sich ein Mutter-Kind-Raum.

Über eine Treppe erreicht man die nächste Ebene mit einem kleinen Saal, einem Kinderraum, der Sakristei sowie Damen- und Herrentoiletten. Diese Ebene verfügt zusätzlich über einen separaten Zugang vom Parkplatz.

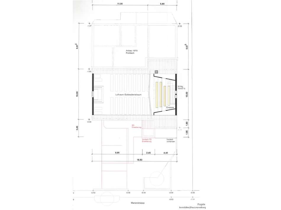
Im Obergeschoss befindet sich die Empore.
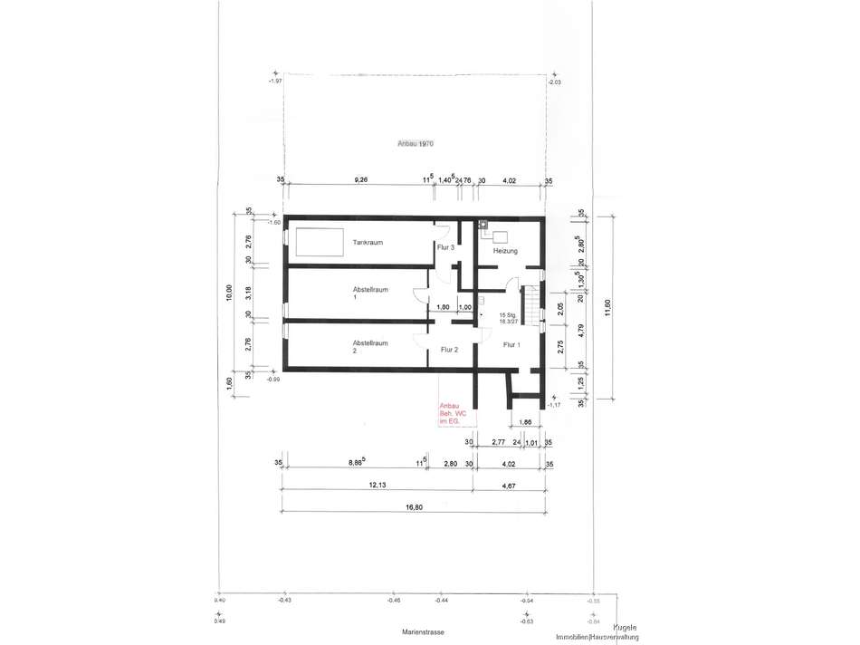
Das Untergeschoss umfasst mehrere Kellerräume, einen Tankraum sowie die Ölzentralheizung.

Grundriss

Grundriss Kirchengeschoss
Grundriss Kirchengeschoss
Grundriss Untergeschoss
Grundriss Untergeschoss
Grundriss Empore
Grundriss Empore
Querschnitt
Querschnitt
Ansicht Nord-West
Ansicht Nord-West
Ansicht Nord-Ost
Ansicht Nord-Ost
Ansicht Süd-Ost
Ansicht Süd-Ost

Lage

Ehemaliges Kirchengebäude in Wannweil zu verkaufen
Marienstr. 84, 72827 Wannweil
Das angebotene besondere Objekt befindet sich in einer charmanten Gegend von Wannweil, einer lebendigen Gemeinde in der malerischen Region Baden-Württemberg. Diese Immobilie genießt eine zentrale Lage, die sowohl Ruhe als auch Anbindung bietet. Die Umgebung ist geprägt von einer harmonischen Mischung aus ländlichem Charme und urbanem Komfort, wodurch Bewohner das Beste beider Welten genießen können.
Wannweil bietet zahlreiche Annehmlichkeiten, die den Alltag bereichern. In unmittelbarer Nähe befinden sich vielfältige Einkaufsmöglichkeiten, gemütliche Cafés und renommierte Restaurants, welche Kulinarik Liebhaber begeistern. Bildungseinrichtungen und Kindergärten sind ebenfalls leicht erreichbar, was die Lage besonders attraktiv für Familien macht.
Für Naturliebhaber und Erholungssuchende sind die zahlreichen Parks und Grünflächen ein echtes Highlight, während kulturelle Angebote und Freizeitmöglichkeiten in der nahen Umgebung umfangreiche Abwechslung bieten. Zudem profitiert der Standort von hervorragenden Verkehrsanbindungen, sodass die umliegenden Städte und Gemeinden bequem zu erreichen sind.
Diese einzigartige Immobilie in Wannweil vereint die Vorzüge einer ruhigen und dennoch verkehrsgünstigen Lage und bietet so eine ideale Lebensumgebung für verschiedenste Lebensstile.

Sonstiges

Durch die besondere Bauweise des Gebäudes ist eine vielfältige Nutzung möglich. Eine Umnutzung als Gewerbe- und Büroflächen oder vielfältige Gestaltungsmöglichkeiten sind denkbar. 

Die letztendliche Nutzungsmöglichkeit ist mit der jeweiligen zuständigen Baurechtsbehörde zu klären. Die Angabe der Wohnfläche entspricht der Angabe der Nutzfläche, da ausschließlich Nutzfläche vorhanden ist.

Alle genannten Angaben zum Objekt beruhen auf den Angaben des Eigentümers. Irrtum vorbehalten.

Bitte füllen Sie bei weiterem Interesse das Kontaktformular aus. Wir werden uns zeitnah mit Ihnen in Verbindung setzen. Vielen Dank.

Anbieter

Kugele Immobilien & Hausverwaltung GmbH Hauptstraße 112, 76327 Pfinztal / Söllingen

Ehemaliges Kirchengebäude in Wannweil zu verkaufen

Vertriebsansprechpartner: Herr Jens Döhring

Weitere Informationen finden Sie unter:
Impressum des Anbieters

Hausansicht location icon Marienstr. 84, 72827 Wannweil
Wohnfläche
398 m²
Grundstücksfläche
1.197 m²
Zimmer
5
Kaufpreis
589.000 €
Finanzierung berechnen Anbieter kontaktieren