Träume werden wahr! Mehr Komfort, mehr Platz, inklusive Grundstück und Förderung

location icon 72805 Lichtenstein
In Zusammenarbeit mit Immoscout Logo

Informationen

Haustyp
Einfamilienhaus (freistehend)
Wohnfläche ca.
134 m²
Nutzfläche ca.
67 m²
Grundstücksfläche ca.
545 m²
Zimmer
4
Schlafzimmer
3
Badezimmer
1
Anzahl Garage / Stellplatz
1 Stellplatz
  • Gäste-WC
  • Keller
  • Provisionsfrei

Kosten

Kaufpreis
573.300 €
Provision für Käufer
Nein

Bausubstanz & Energieausweis

Baujahr
2026
Bauphase
Haus in Planung (projektiert)
Ausstattung
Gehobene Qualität
Heizungsart
Wärmepumpe

Objektbeschreibung

Herzlich willkommen in Ihrem neuen Zuhause, das speziell für familienorientierte Kunden wie Sie gestaltet wurde. Diese Immobilie ist der ideale Ort, um gemeinsame Erinnerungen zu schaffen und ein harmonisches Familienleben zu führen.

Das Haus bietet ausreichend Platz für Ihre Familie, um zu Wachsen und Gedeihen. Mit geräumigen Schlafzimmern, einem lichtdurchfluteten Wohnbereich und einem weitläufigen Garten, ist genügend Raum für jedes Familienmitglied vorhanden

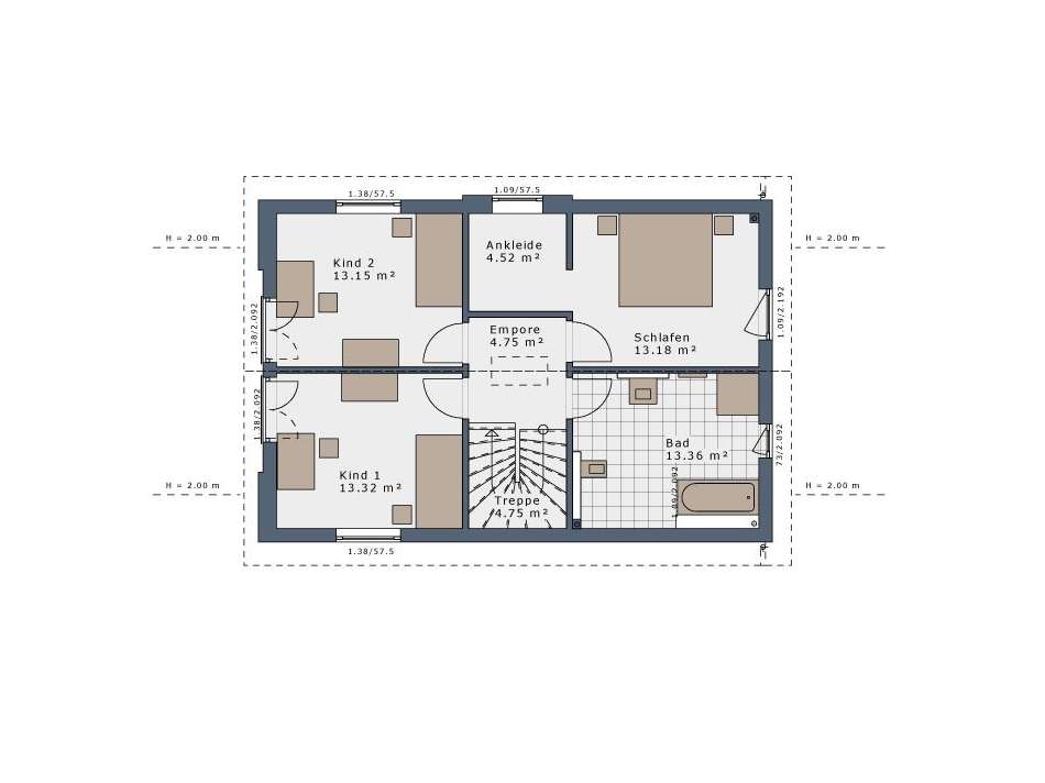
Grundriss

Erdgeschoss
Erdgeschoss
Obergeschoss
Obergeschoss

Ergänzende Links

Ausstattung

Neben kurzen Bauzeiten, innovativer Haustechnik, attraktiver Architektur und hochwertiger Manufaktur-Qualität bietet Ihnen das angebotene Schwabenhaus im “Green-Edition” All-Inclusive-Paket folgende Mehr-Werte: 

- Bodenplatte inkl. Effizienzhaus 55 Perimeter-Dämmung unterhalb der Bodenplatte sowie stirnseitig
- Klima-Komfort-Bauweise für das Effizienzhaus 55
- Zimmermannsmäßiges Pfettendach 
- Photovoltaik-Vorbereitung für die Ausführung eines Photovoltaik-Systems
- Komplette Elektro-, Sanitär- und Heizungs-Installation inkl. Grundinstallation für das Schwabenhaus auf Schwabenhaus-Bodenplatte bzw. -Keller*
- Zukunftsweisende Elektro-Installation* 
- Abgeschirmte Lichtleitungen für moderne, störungsfreie Beleuchtung und Lichtszenarien 
- Rollläden im Erd- und Obergeschoss Ihres Schwabenhauses 
- Doppel-Wärmepumpe Eco* für Heizen, Kühlen, Lüften, Luftreinigung und Warmwasser
- Schwimmender Estrich mit Wärmedämmung*
- Blower-Door Test zur Überprüfung der Luftwechselrate*
- Klima-Komfort-Außenwand mit über 200 Putzfarben zur Auswahl 
- Hochwertige, mehrschichtige Holz-Haustür in vielfältigen  Design-Lösungen, mit Sicherheitsschließzylinder, 5-fach- Sicherheits-Verriegelung und 3-Scheiben-Wärmeschutzverglasung 
- Kunststoff-Fenster mit 3-Scheiben- Wärmeschutzverglasung
- Dachflächenfenster mit Kipp- und Schwingfunktion sowie elektrischen Rollläden*, wenn laut Grundriss enthalten 
- Außenfensterbänke aus Naturstein
- Innenfensterbänke aus Kunst- oder Naturstein*
- Massiv-Vollholz-Treppe 
- Protect Versicherungs-Paket mit Wohngebäude-Versicherung inkl. Elementarschutz, Haus- und  Wohnungs-Schutzbrief, Bauleistungs-Versicherung  und Bauherren-Haftpflichtversicherung sowie Job-Protect Versicherungs-Paket
- 10 sowie 30 Jahre Gewährleistung gemäß Definition in der Schwabenhaus Bau- und Leistungsbeschreibung 

*Ab Ausbaustufe "Fast-Vollendet"
¹Beim Effizienzhaus 40 Kühlung nur in Verbindung mit optionaler PV-Anlage.

Die aufgeführten Mehr-Werte und Leistungsinhalte beziehen sich ausschließlich auf das in der Schwabenhaus Bau- und Leistungsbeschreibung (BLB) beschriebene Technologie + Komfort-Paket "Green -Edition". Die Mehr-Werte und Leistungsinhalte anderer Schwabenhaus Bau- und Leistungsbeschreibungen bzw. Technologie + Komfort-Pakete können hiervon abweichen.

Lage

Träume werden wahr! Mehr Komfort, mehr Platz, inklusive Grundstück und Förderung
72805 Lichtenstein

Die genaue Adresse dieses Objekts erhalten Sie vom Anbieter.

Wohlfühlbauplatz mit sehr guter Verkehrsanbindung

Sonstiges

Vereinbaren Sie einen persönlichen Beratungstermin, um über Ihren Haustraum und das angebotene Objekt zu sprechen. 
Bitte beachten Sie, dass die dargestellten Bilder und Grundrisse nur beispielhaft sind und unter Umständen Sonderbauteile enthalten, die nicht im aufgerufenen Preis inkludiert sind. 

Haben Sie außerdem Verständnis dafür, dass erst nach dem persönlichen Gespräch weitere Details zu dem angebotenen Grundstück bekanntgegeben werden und dass nur vollständige Anfragen bearbeitet werden können.

Anbauteile, Carport, Garage und Keller können Extras sein, die als Sonderausstattung angeboten werden. Abbildungen, Grundrisse und Flächenangaben sind beispielhaft und können Extras zeigen. Flächenangaben nach DIN 277.

Anbauteile, Carport, Garage und Keller können Extras sein, die als Sonderausstattung angeboten werden. Abbildungen, Grundrisse und Flächenangaben sind beispielhaft und können Extras zeigen. Flächenangaben nach DIN 277.

Profitieren Sie jetzt von der Schwabenhaus Online Beratung und verwirklichen Sie Ihr Traumhaus https://www.schwabenhaus.de/anmeldung-hausbau-beratung-online/

Anbieter

Schwabenhaus Reutlingen - Achim Gaus - Handelsvertretung für die Schwabenhaus GmbH Arbachtalstraße 6, 72793 Eningen unter Achalm

Träume werden wahr! Mehr Komfort, mehr Platz, inklusive Grundstück und Förderung

Vertriebsansprechpartner: Herr Achim Gaus

Weitere Informationen finden Sie unter:
Impressum des Anbieters

Außenansicht location icon 72805 Lichtenstein
Wohnfläche
134 m²
Grundstücksfläche
545 m²
Zimmer
4
Kaufpreis
573.300 €
Finanzierung berechnen Anbieter kontaktieren