*** Wintergartenhaus mit klasse Architektur ***

location icon 76857 Silz
In Zusammenarbeit mit Immoscout Logo

Informationen

Haustyp
Einfamilienhaus (freistehend)
Etagenanzahl
2
Wohnfläche ca.
126,73 m²
Nutzfläche ca.
137,9 m²
Grundstücksfläche ca.
422 m²
Zimmer
4
Schlafzimmer
4
Badezimmer
1
  • Gäste-WC

Kosten

Kaufpreis
485.950 €
Provision für Käufer
Die Maklercourtage fürs Grundstück beträgt 4.740 €/brutto.

Bausubstanz & Energieausweis

Baujahr
2026
Bauphase
Haus in Planung (projektiert)
Objektzustand
Erstbezug
Ausstattung
Gehobene Qualität
Heizungsart
Fußbodenheizung

Objektbeschreibung

Unser Haus - ein WINTERGARTENHAUS! 

Klassische Architektur mit dem gewissen Extra: Bodentiefe Fenster rundum für sonnige Räume und beste Aussichten. Ein besonders offener und großzügiger Grundriss im Erdgeschoss bietet auf ca. 44 m² Wohnen und Essen mit offener Küche.

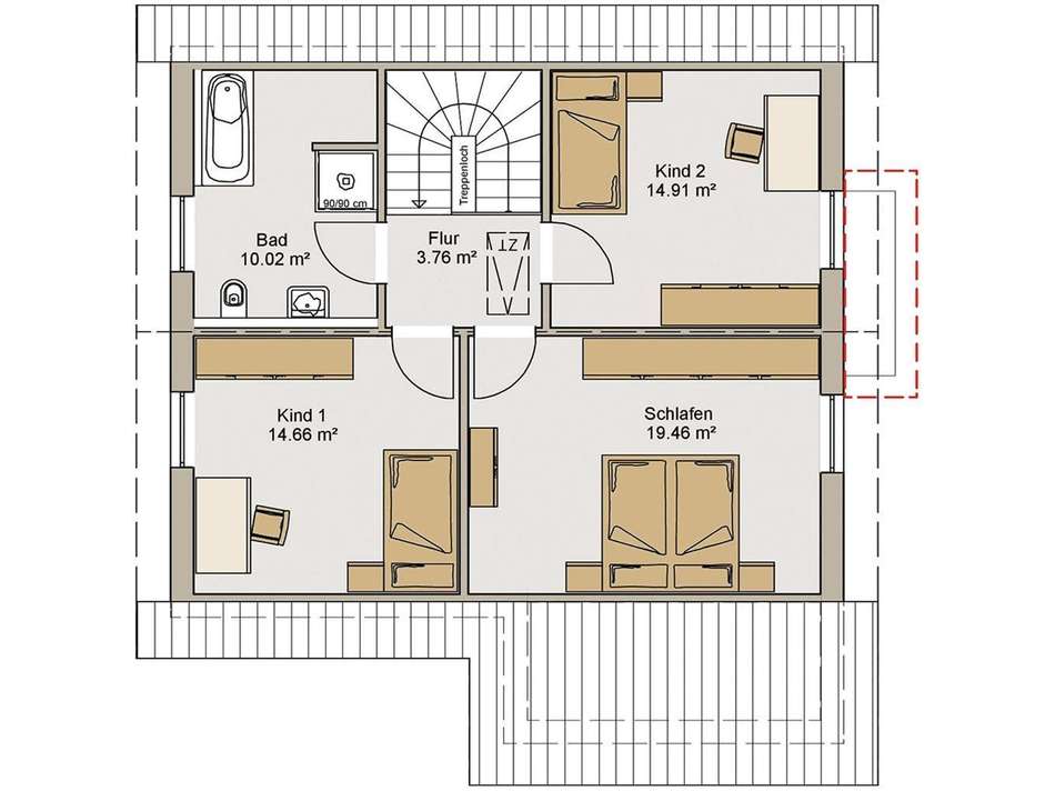
Sinnvoll: Ein zusätzliches Arbeits-/ oder Gästezimmer schafft Planungsfreiheit im Erdgeschoss. Oben gefällt das große Schlafzimmer und zwei mit jeweils ca. 15 m² gleich groß entworfene Kinderzimmer. Da gibt es keinen Streit um das größere Zimmer. Komplettiert wird das Obergeschoss vom richtig dimensionierten Familienbad. Ein Haus für die ganze Familie eben.

Grundriss

EFH-138-38-125-Erdgeschoss
EFH-138-38-125-Erdgeschoss
EFH-138-38-125-Erdgeschoss-alt
EFH-138-38-125-Erdgeschoss-alt
EFH-138-38-125-Obergeschoss
EFH-138-38-125-Obergeschoss

Weitere Dokumente

Ausstattung

Dieses FERTIGHAUS wird "fast fertig" angeboten.
In der Ausstattung „fast fertig“ sind bei uns entscheidende Mehrleistungen wie folgt schon im Standard der Bauleistungsbeschreibung (BLB) enthalten.

* Architektenleistung & Statik
* Bodenplatte 
* Ausstattung: Gehoben
* Heizungsart: Wärmepumpentechnik
* Estrich und Fußbodenheizung
* farbiger Außenputz
* Pfettendach aus KVH (Konstruktions- Vollholz)
* Dachsteine 
* Dachrinnen und Regenfallrohre
* Innen- und Außenfensterbänke aus Marmor
* Aluminium Rollläden
* Treppenanlage aus Vollholz- Buche,
* Bodeneinschubtreppe
* Sicherheits-Thermohaustür 
* Fenster mit Pilzkopfverriegelung, 3-fach-Verglasung (6 Kammer Profile)
* Elektroausstattung (Smarthome auf Anfrage)
* Heizung-Sanitär-Rohmontage + Endmontage
* Sanitärobjekte und Fliesenarbeiten in Gäste-WC und Bad 
* Fliesenarbeiten im Hausanschlussraum
* Bodenbeläge - verschiedene Möglichkeiten - in allen anderen Räumen
* Bodengleiche- geflieste Dusche
* Wärme- und Schalldämmung
* Höchster Individualisierungsgrad
* Blower- Door Test nach DIN 13829 für EnEV - Abnahmemessungen aus DIN V 4108-7 durch.
* Statik
* Bemusterung in eigener Ausstellung
* 360° Betreuung vom Erstkontakt bis zum Einzug.
* In allen unseren Häusern werden nur hochwertige Markenprodukte von namhaften Herstellern verwendet
* Grundrisse können ohne Mehrkosten individuell umgeplant werden insofern die Gesamtwohnfläche gleich bleibt.

Lage

*** Wintergartenhaus mit klasse Architektur ***
76857 Silz

Die genaue Adresse dieses Objekts erhalten Sie vom Anbieter.

Das Grundstück befindet sich in Silz. 

Unser Angebotspreis beinhaltet das Grundstück und das Einfamilienhaus.
Das Grundstück ist über einen externen Partner/Makler/Eigentümer zu erwerben.

Das Grundstück ist teilerschlossen und sofort bebaubar. 

**Bitte haben Sie Verständnis, dass wir ohne ein persönliches Gespräch über das Haus keine Grundstücksdaten weiterleiten.**

Sie haben bereits ein Grundstück? Dann lassen Sie sich beraten, wie wir Ihre Hausbauwünsche erfüllen können.
Sie möchten ein anderes Haus auf diesem Grundstück, oder Sie möchten ein anderes Grundstück zu diesem Haus? Dann rufen Sie uns einfach an - wir beraten Sie sehr gerne.

Sonstiges

Das Haus ist projektiert und der angebotene Preis ist inkl. Grundstück. Das Grundstück wird in Kommission angeboten bzw. direkt von Dritten verkauft.  Die Bauabwicklung kann kurzfristig nach Grundstückserwerb begonnen werden. Bilder und Fotos zeigen möglicherweise Sonderausstattungen, die auf Wunsch gegen Preiskorrektur zusätzlich angeboten werden können.

Das Angebot ist unverbindlich und freibleibend, exklusive Kosten sind die Baunebenkosten, wie z.B. Hausanschlüsse, Außenanlagen, Vermesser, Maklercourtage, Versicherungen, Erdarbeiten, Notar und Gerichtskosten. Abbildungen und Grundrisse zeigen Extras die ggf. nicht im Preis enthalten sind!
Hier können Sie als Bauherr den Fertighaushersteller beauftragen und auf einem Baugrundstück bauen, welches Sie vorher direkt vom Grundstückseigentümer erwerben würden.

Fragen Sie nach unserem kostenlosen Bauherren-Beratungs-Service und erhalten Sie in einem persönlichen Gespräch in unserem BERATUNGSBÜRO in 76751 Jockgrim kostenlos alle wichtigen Informationen zum Bauen: Baukosten-Kalkulation, Finanzierung, Förderung, Grundstücksservice, Architektur- u. Grundrissplanung und vieles mehr. 

Vereinbaren Sie am Besten gleich einen Beratungstermin mit uns.

Anbieter

Atamela GmbH Bahnhofstr. 66, 76751 Jockgrim

*** Wintergartenhaus mit klasse Architektur ***

Vertriebsansprechpartner: expose.salutation.NO_SALUTATION Horst Hellmann

Weitere Informationen finden Sie unter:
http://www.atamela.de (Website)
Impressum des Anbieters
Widerrufsbelehrung

Einfamilienhaus-138-38-125 location icon 76857 Silz
Wohnfläche
126,73 m²
Grundstücksfläche
422 m²
Zimmer
4
Kaufpreis
485.950 €
Finanzierung berechnen Anbieter kontaktieren