HS2
EG
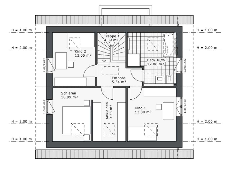
DG
HS1
gs

Familientraum – Glücklich leben im Eigenheim

location icon 59394 Nordkirchen
In Zusammenarbeit mit Immoscout Logo

Informationen

Haustyp
Einfamilienhaus (freistehend)
Wohnfläche ca.
136 m²
Nutzfläche ca.
0 m²
Grundstücksfläche ca.
500 m²
Zimmer
5
Schlafzimmer
4
Badezimmer
1
Anzahl Garage / Stellplatz
-
  • Provisionsfrei

Kosten

Kaufpreis
330.000 €
Provision für Käufer
Nein

Bausubstanz & Energieausweis

Baujahr
unbekannt
Ausstattung
Gehobene Qualität
Heizungsart
Wärmepumpe

Objektbeschreibung

Das großzügige Einfamilienhaus besticht durch die modernen, großflächigen Fenster, die viel Licht ins Innere lassen und zum Verweilen mit Familie und Freunden einladen. Wohnen, Essen und Kochen bilden im Erdgeschoss eine Einheit und bieten über die Terrasse direkten Zugang in den Garten, sodass Sie Ihre Kinder stets im Blick haben. Im Erdgeschoss befinden sich außerdem ein Technikraum sowie ein Gäste-WC. Im Dachgeschoss gibt es keinen Streit um die Auswahl der Zimmer, denn diese sind nahezu gleich groß und im großzügigen Wellness-Bad gibt es am Morgen auch kein Gedränge.

Ergänzende Links

Ausstattung

Jedes unserer Fertighäuser wird speziell für Sie geplant und ist perfekt auf die Anforderungen und Vorgaben Ihres Bauvorhabens angepasst – Bebauungspläne, eine besondere Grundstückslage und die gewünschten Eigenleistungen werden im Detail geprüft und berücksichtigt. 

Jedes Schwabenhaus verfügt standardmäßig über:
- Doppel-Wärmepumpe mit 5 in 1-System: Heizen, Kühlen, Lüften, Luftreinigung und Warmwasser
- Zentrale kontrollierte Wohnraum Be- und Entlüftung mit Wärmerückgewinnung
- 3-Scheiben-Wärmeschutzglas
- elektrische Rollladensteuerung*
- Smart-Home-Technologie: Intelligentes Gebäude-Management für die Licht- und Rollladen-Steuerung*
- Schwimmender Estrich mit Wärmedämmung
- Sanitär-Objekte von Markenherstellern wie z. B. Villeroy & Boch usw. sowie Echtglas-Duschabtrennung
- 10 Jahre Gewährleistung nach BGB (üblich: 5 Jahre) und 30 Jahre Garantie auf die Grundkonstruktion

*In Verbindung mit dem Technologie + Komfort-Paket „Blue-Edition“
Diesem Angebot liegt die beliebte Schwabenhaus-Ausbaustufe "Fast-Vollendet Plus" zugrunde. Diese kann selbstverständlich noch entsprechend Ihrer geplanten Eigenleistungen angepasst werden.

Lage

Familientraum – Glücklich leben im Eigenheim
59394 Nordkirchen

Die genaue Adresse dieses Objekts erhalten Sie vom Anbieter.

Das Einfamilienhaus befindet sich in ruhiger und begehrter Wohnlage von Nordkirchen.
Einkaufsmöglichkeiten, wie Aldi, EdeKa, für den täglichen Bedarf, Ärzte, Kindergärten und Schulen sind nur wenige Minuten entfernt.
Das nahegelegene Schloss Nordkirchen mit seinen vielen Parkflächen lädt zu ausgiebigen Spaziergängen und Radtouren ein.
In ca. 10-15 Minuten erreichen Sie die Autobahnanschlussstellen A1 sowie die B58, B235 und die B236.

Sonstiges

Mit 1.400,- Abtrag / Kaltmiete in die eigenen 4 Wände... ist das möglich?  Ohne Eigenkapital?

Ja, aufgrund von Fördermittel des Bundes und des Landes ermöglichen wir jungen Familie den Traum vom Eigenheim schon zu sehr niedrigen monatlichen Abträgen / Kaltmieten.

Unsere Bankpartner finanzieren Sie auch ohne Eigenkapital. 

Beispiel:

Finanzierungssumme  500.000,- €
Abtrag:   1.490,- €

Nebenkosten unserer Häuser für Strom, Wasser und Abwasser, Müllabfuhr, Grundbesitzabgaben sowie Versicherungen ca. 250,- €. ( Teilweise abhängig von Verbräuchen ) 

Lassen sie uns gemeinsam prüfen, ob wir auch Ihren Traum in die Realität umsetzen können und vereinbaren Sie einen kostenfreien Termin.

Anbauteile, Carport, Garage und Keller können Extras sein, die als Sonderausstattung angeboten werden. Abbildungen, Grundrisse und Flächenangaben sind beispielhaft und können Extras zeigen. Flächenangaben nach DIN 277.

Profitieren Sie jetzt von der Schwabenhaus Online Beratung und verwirklichen Sie Ihr Traumhaus https://www.schwabenhaus.de/anmeldung-hausbau-beratung-online/

Anbieter

Schwabenhaus GmbH - Ralf Schleinecke Schmiedestr. 59, 42279 Wuppertal

Familientraum – Glücklich leben im Eigenheim

Vertriebsansprechpartner: Herr Ralf Schleinecke

Weitere Informationen finden Sie unter:
Impressum des Anbieters

HS2 location icon 59394 Nordkirchen
Wohnfläche
136 m²
Grundstücksfläche
500 m²
Zimmer
5
Kaufpreis
330.000 €
Finanzierung berechnen Anbieter kontaktieren