Viel Platz für die ganze Familie!

location icon 76228 Grünwettersbach, Karlsruhe
In Zusammenarbeit mit Immoscout Logo

Informationen

Haustyp
Reihenmittelhaus
Wohnfläche ca.
170 m²
Grundstücksfläche ca.
313 m²
Bezugsfrei ab
ab sofort
Zimmer
4
Badezimmer
2
Anzahl Garage / Stellplatz
1 Garage
  • Gäste-WC

Kosten

Kaufpreis
529.000 €
Provision für Käufer
Zzgl. 2,38% Käuferprovision inkl. 19% MwSt. aus dem Kaufpreis.
Mit dem Verkäufer wurde eine Provision in gleicher Höhe vereinbart (§ 656 c BGB).

Bausubstanz & Energieausweis

Baujahr
1965
Ausstattung
Normale Qualität
Heizungsart
Zentralheizung
Wesentlicher Energieträger
Öl
Energieausweis
liegt vor
Energieausweistyp
Bedarfsausweis
Endenergiebedarf
266,4 kWh/(m²*a)
Energie­effizienz­klasse
H
266,4 kWh/(m²*a)
Energie­effizienz­klasse H
  • A+
  • A
  • B
  • C
  • D
  • E
  • F
  • G
  • H
  • 0
  • 25
  • 50
  • 75
  • 100
  • 125
  • 150
  • 175
  • 200
  • 225
  • >250

Objektbeschreibung

Dieses gepflegte und großzügige Reihenhaus überzeugt durch eine durchdachte Raumaufteilung, helle Wohnräume und ein attraktives Wohnumfeld. Mit einer Wohnfläche von ca. 170 m² bietet die Immobilie ausreichend Platz für Familien oder Paare mit erhöhtem Raumbedarf.

Bereits beim Betreten des Hauses empfängt Sie ein freundlicher Eingangsbereich mit Garderobe, der einen einladenden ersten Eindruck vermittelt. Ein Gäste-WC befindet sich ebenfalls auf dieser Ebene. Vom Flur aus gelangen Sie in die separate Küche mit angrenzendem Esszimmer, das ausreichend Platz für gemeinsame Mahlzeiten bietet. Daran anschließend öffnet sich das lichtdurchflutete Wohnzimmer mit Parkettboden, welches den zentralen Wohnbereich des Hauses bildet. Vom Balkon aus genießen Sie einen schönen Blick ins Grüne und können entspannte Stunden im Freien verbringen.

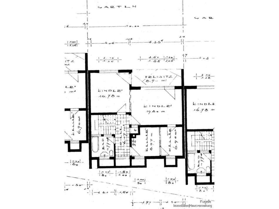
Das Gartengeschoss bietet zwei großzügige, helle Zimmer, die jeweils über einen direkten Zugang zum Garten verfügen und vielseitig als Schlaf-, Kinder- oder Arbeitszimmer genutzt werden können. Auf dieser Ebene befinden sich zudem ein großzügiges Duschbad, ein weiteres Badezimmer mit Badewanne, Waschbecken und WC sowie ein praktischer Abstellraum.

Zum Haus gehört eine Garage in einem nahegelegenen Garagenhof, die komfortabel vom Garten aus erreichbar ist.

Im Untergeschoss stehen ein Kellerraum, der Heizraum mit Öl-Zentralheizung (Baujahr 1996) sowie ein separater Tankraum zur Verfügung.

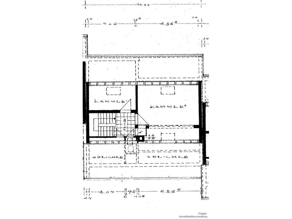
Das Dachgeschoss bietet zusätzliches Ausbaupotenzial: Zwei weitere Räume können mit geringem baulichem Aufwand zu wertvoller Wohn- oder Nutzfläche erweitert werden.

Grundriss

Grundriss Erdgeschoss
Grundriss Erdgeschoss
Grundriss Gartengeschoss
Grundriss Gartengeschoss
Grundriss Dachgeschoss
Grundriss Dachgeschoss
Grundriss Garage
Grundriss Garage
Querschnitt & Ostansicht
Querschnitt & Ostansicht
Querschitt & Westansicht
Querschitt & Westansicht
Schnitt a-a
Schnitt a-a
Schnitt b-b
Schnitt b-b
Ansicht Nord
Ansicht Nord
Südansicht
Südansicht
Ansicht
Ansicht
Ansicht
Ansicht

Ausstattung

Highlights auf einen Blick:

Ca. 170 m² Wohnfläche

Familienfreundliche Raumaufteilung

Helles Wohnzimmer mit Parkettboden

Balkon mit Blick ins Grüne

Garten mit direktem Zugang von zwei Zimmern

Zwei Badezimmer + Gäste-WC

Garage (vom Garten aus zugänglich)

Öl-Zentralheizung (Baujahr 1996)

Ausbaupotenzial im Dachgeschoss

Ruhige und begehrte Wohnlage in Karlsruhe-Grünwettersbach

Lage

Viel Platz für die ganze Familie!
76228 Grünwettersbach, Karlsruhe

Die genaue Adresse dieses Objekts erhalten Sie vom Anbieter.

Die Immobilie befindet sich in attraktiver Wohnlage im Karlsruher Stadtteil Grünwettersbach, einem der gefragten Höhenstadtteile im Osten der Fächerstadt. Die Wildbader Straße ist eine ruhige, überwiegend von Wohnbebauung geprägte Straße mit angenehmem nachbarschaftlichem Umfeld und wenig Durchgangsverkehr.

Grünwettersbach zeichnet sich durch seine naturnahe Lage am Rande des Schwarzwaldes aus und bietet eine hohe Lebensqualität für Familien, Paare und Ruhesuchende. Weitläufige Wälder, Wander- und Radwege befinden sich in unmittelbarer Nähe und laden zu vielfältigen Freizeit- und Erholungsaktivitäten ein.

Trotz der ruhigen, grünen Umgebung ist die Anbindung an die Karlsruher Innenstadt sehr gut. Über die Bundesstraße B10/B3 sowie die nahegelegene Autobahn A8 (Karlsruhe–Stuttgart) sind sowohl das Stadtzentrum als auch die umliegenden Regionen schnell erreichbar. Der öffentliche Nahverkehr ist durch Busverbindungen gut ausgebaut und ermöglicht eine komfortable Anbindung an den Karlsruher Verkehrsverbund (KVV).

Vor Ort stehen Kindergärten, eine Grundschule, Einkaufsmöglichkeiten für den täglichen Bedarf, Ärzte sowie gastronomische Angebote zur Verfügung. Weiterführende Schulen, ein erweitertes Einkaufsangebot und kulturelle Einrichtungen sind in den benachbarten Stadtteilen bzw. in der Innenstadt von Karlsruhe schnell erreichbar.

Insgesamt verbindet die Lage in der Wildbader Straße 7 auf ideale Weise ruhiges, naturnahes Wohnen mit einer guten urbanen Erreichbarkeit und macht die Immobilie zu einem attraktiven Wohnstandort im Karlsruher Osten.

Anbieter

Kugele Immobilien & Hausverwaltung GmbH Hauptstraße 112, 76327 Pfinztal / Söllingen

Viel Platz für die ganze Familie!

Vertriebsansprechpartner: Herr Jens Döhring

Weitere Informationen finden Sie unter:
Impressum des Anbieters

Hausansicht location icon 76228 Grünwettersbach, Karlsruhe
Wohnfläche
170 m²
Grundstücksfläche
313 m²
Zimmer
4
Kaufpreis
529.000 €
Finanzierung berechnen Anbieter kontaktieren