Charmantes Häuschen mit Garten in Essingen

location icon 76879 Essingen
In Zusammenarbeit mit Immoscout Logo

Informationen

Haustyp
Einfamilienhaus (freistehend)
Etagenanzahl
1
Wohnfläche ca.
81 m²
Grundstücksfläche ca.
280 m²
Zimmer
4
Schlafzimmer
2
Badezimmer
1
  • Vermietet

Kosten

Kaufpreis
215.000 €
Provision für Käufer
3,57 % inkl. MwSt.
Mieteinnahmen pro Monat
700 €

Bausubstanz & Energieausweis

Baujahr
1956
Modernisierung/ Sanierung
zuletzt 2020
Heizungsart
Gas-Heizung
Wesentlicher Energieträger
Gas
Energieausweis
liegt vor
Energieausweistyp
Verbrauchsausweis
Endenergiebedarf
152 kWh/(m²*a)
Energie­effizienz­klasse
E
152 kWh/(m²*a)
Energie­effizienz­klasse E
  • A+
  • A
  • B
  • C
  • D
  • E
  • F
  • G
  • H
  • 0
  • 25
  • 50
  • 75
  • 100
  • 125
  • 150
  • 175
  • 200
  • 225
  • >250

Objektbeschreibung

Zum Verkaufe steht dieses gemütliche Häuschen in Essingen und bietet auf einer Wohnfläche von ca. 81 m² ein angenehmes Zuhause mit durchdachter Raumaufteilung. Das Grundstück umfasst insgesamt ca. 280 m² und eignet sich ideal für kleine Familien, Paare oder alle, die ein überschaubares Eigenheim mit Wohlfühlcharakter suchen.

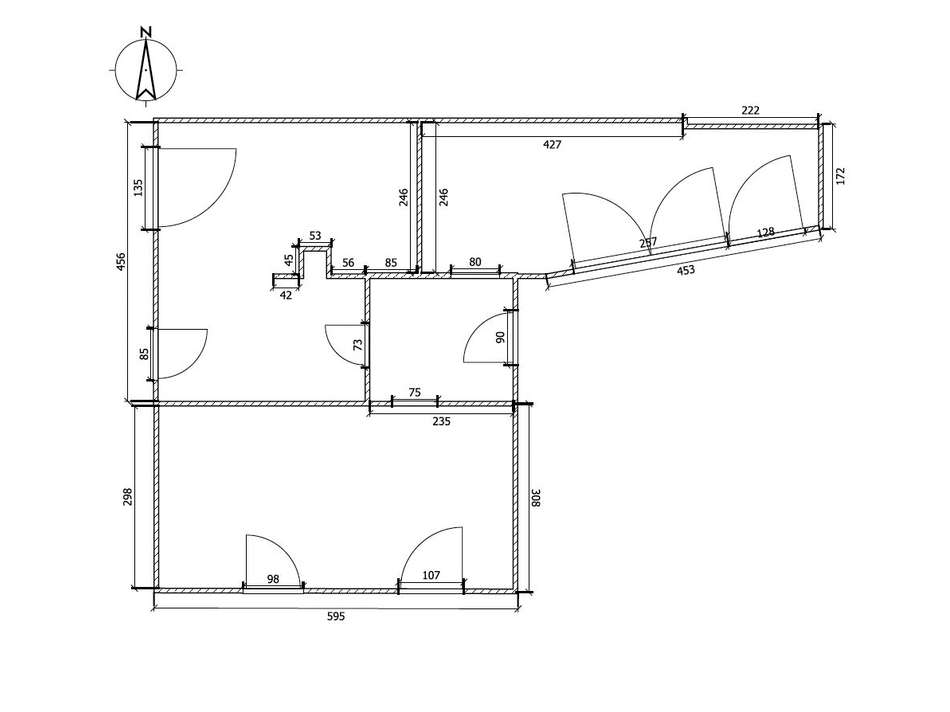
Im Erdgeschoss befinden sich ein Wohnzimmer, eine funktionale Küche sowie ein Büro, das sich perfekt als Arbeits- oder Gästezimmer nutzen lässt.

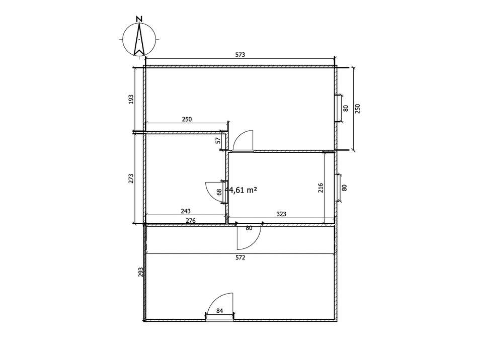
Das Dachgeschoss beherbergt zwei Schlafzimmer sowie ein Badezimmer und bietet damit ausreichend Platz für Rückzug und Erholung.

Der Garten mit Terrasse lädt zum Entspannen, Grillen und Verweilen im Freien ein. Ein charmantes Gesamtpaket für alle, die ein kompaktes und gemütliches Zuhause in ruhiger Lage Essingens suchen.

Hinweis: Die veröffentlichten Fotos stammen nicht von uns. Sie wurden auf Wunsch der Eigentümer und Mieter aus deren eigenem Archiv beziehungsweise aus früheren Zeiten zur Verfügung gestellt. Aus Gründen der Privatsphäre greifen wir ausschließlich auf dieses vorhandene Bildmaterial zurück.

Grundriss

Grundriss_EG
Grundriss_EG
Grundriss_DG
Grundriss_DG

Ausstattung

Ausstattung 
o 4 Zimmer
o Küche
o 1 Badezimmer


Modernisierungen
o 2020 Gasheizung
o 2020 Stromleitungen
o 2000 Fassade
o 1995 Dach gedämmt (Glaswolle)
o 1980 Wasserleitungen

Lage

Charmantes Häuschen mit Garten in Essingen
76879 Essingen

Die genaue Adresse dieses Objekts erhalten Sie vom Anbieter.

Das angebotene Haus befindet sich in ruhiger und dennoch zentraler Lage von Essingen, einer charmanten Weinbaugemeinde in der schönen Südpfalz. Essingen liegt eingebettet in eine malerische Landschaft zwischen Weinbergen und Wiesen und bietet seinen Bewohnern ein hohes Maß an Lebensqualität sowie eine sehr gute Infrastruktur.

Die Gemeinde verfügt über verschiedene Einkaufsmöglichkeiten für den täglichen Bedarf, eine Bäckerei, Restaurants, eine Grundschule sowie Kindergärten. Weiterführende Schulen, Ärzte, Apotheken und weitere Geschäfte finden sich im benachbarten Landau in der Pfalz, das nur ca. 5 Kilometer entfernt liegt und in wenigen Minuten mit dem Auto oder Fahrrad erreichbar ist.

Die Verkehrsanbindung ist hervorragend:

•	Über die nahegelegene Bundesstraße B272 gelangt man schnell in Richtung Landau oder in das Rhein-Neckar-Gebiet.
•	Die Autobahn A65 ist in wenigen Fahrminuten erreichbar und bietet eine optimale Verbindung nach Karlsruhe, Mannheim oder Ludwigshafen.
•	Öffentliche Verkehrsmittel sind ebenfalls gut erreichbar: Essingen ist an den regionalen Busverkehr angeschlossen und bietet direkte Verbindungen nach Landau sowie in die umliegenden Ortschaften.
•	Der Bahnhof Landau (ca. 10 Autominuten entfernt) ermöglicht zudem eine schnelle Anbindung an das überregionale Bahnnetz.

Die Lage zeichnet sich nicht nur durch ihre verkehrsgünstige Anbindung aus, sondern auch durch die Nähe zur Natur: Wander- und Radwege durch die Weinberge, der Pfälzer Wald sowie zahlreiche Ausflugsziele der Region laden zu Freizeitaktivitäten in einer der schönsten Gegenden der Pfalz ein.

Sonstiges

Die Maklerprovision beträgt 3,57% des Kaufpreises inkl. gesetzlicher MwSt. und ist vom Käufer zu zahlen.

Alle Angaben in diesem Exposé wurden nach bestem Wissen und Gewissen zusammengestellt. Eine Gewähr für die Richtigkeit, Vollständigkeit und Aktualität der Angaben wird nicht übernommen. Irrtümer, Änderungen und Zwischenverkauf vorbehalten.

Dieses Exposé stellt kein verbindliches Angebot dar. Änderungen oder der Zwischenverkauf bleiben vorbehalten.

Hinweis zu den gesetzlichen Pflichten für Immobilienmakler gemäß Geldwäschegesetz (§ 2 Abs. 1 Nr. 10 GwG):
Nach den geltenden Vorschriften des Geldwäschegesetzes sind Immobilienmakler in Deutschland verpflichtet, bei der ersten Kontaktaufnahme die Identität ihrer Kunden festzustellen und zu dokumentieren.

Anbieter

Bell Immobilien Adenauerring 13, 76756 Bellheim

Charmantes Häuschen mit Garten in Essingen

Vertriebsansprechpartner: Herr Alexander Bell

Weitere Informationen finden Sie unter:
https://www.bell-immobilien.de (Website)
Impressum des Anbieters
Widerrufsbelehrung

Gartenterrasse location icon 76879 Essingen
Wohnfläche
81 m²
Grundstücksfläche
280 m²
Zimmer
4
Kaufpreis
215.000 €
Finanzierung berechnen Anbieter kontaktieren