Neuer Preis ! Traditionell geplant – Projektierte Doppelhaushälfte in Aichtal

location icon Schönbuchstraße 2, 72631 Aichtal
In Zusammenarbeit mit Immoscout Logo

Informationen

Haustyp
Doppelhaushälfte
Etagenanzahl
2
Wohnfläche ca.
162 m²
Grundstücksfläche ca.
229 m²
Zimmer
5
Schlafzimmer
3
Badezimmer
1
Anzahl Garage / Stellplatz
2 Stellplätze
  • Keller

Kosten

Kaufpreis
599.900 €
Provision für Käufer
2,38% vom Kaufpreis (inkl. MwSt.)

Bausubstanz & Energieausweis

Baujahr
2026
Bauphase
Haus in Planung (projektiert)
Objektzustand
Neuwertig
Ausstattung
Gehobene Qualität
Heizungsart
Zentralheizung

Objektbeschreibung

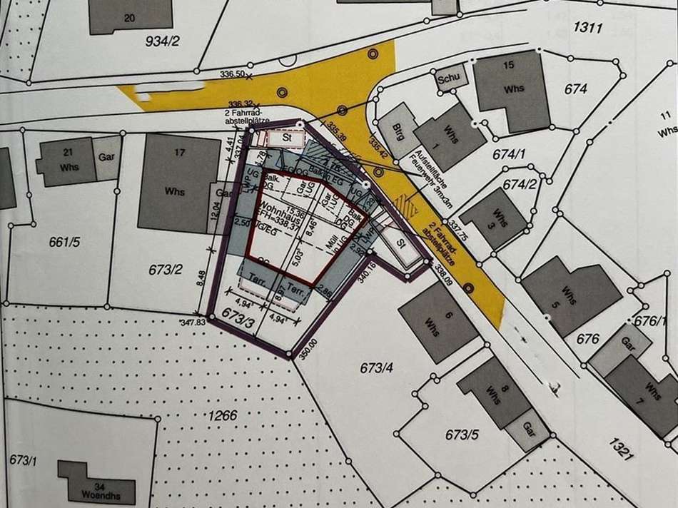
Die zwei projektierten Doppelhaushälften bieten jeweils rund 162 m² Wohnfläche und stehen für modernes, zugleich wertbeständiges Wohnen in einer attraktiven Lage. Jede Einheit verfügt über ein Grundstücksanteil von etwa 229 m², ergänzt durch eine einladende Terrasse und einen eigenen Gartenbereich, die zum Verweilen im Grünen einladen. Die Häuser erstrecken sich über drei Wohngeschosse plus Untergeschoss und präsentieren sich in einer zeitgemäßen Bauweise mit modernem Pultdach.

Die Umsetzung gemäß KfW-55-Standard sorgt für eine energieeffiziente Ausführung und dauerhaft niedrige Nebenkosten. Fußbodenheizung und Wärmepumpe gewährleisten ein angenehmes Wohnklima zu jeder Jahreszeit.KFW 55

Im Erdgeschoss jeder Haushälfte befindet sich ein großzügiger Wohn- und Essbereich mit geplanter offener Küche – ein Ort für gemeinsame Mahlzeiten, Familienzeit und gesellige Abende. Drei helle Schlafzimmer im Obergeschoss bieten ausreichend Platz für unterschiedliche Lebenssituationen. Ergänzt werden die Häuser durch ein weiteres Zimmer, das sich ideal als Büro, Gästezimmer oder Rückzugsraum eignet. Die Tageslichtbäder sind mit Dusche und Badewanne ausgestattet; ein separates Gäste-WC bietet zusätzlichen Komfort.

Im Untergeschoss steht jeweils ein geräumiger Technik- und Abstellraum zur Verfügung, der vielfältige Nutzungsmöglichkeiten und praktischen Stauraum bietet. Hochwertige Materialien und eine moderne, klare Gestaltung prägen den gesamten Baukörper.

Zu jeder Doppelhaushälfte gehören eine Garage sowie ein zusätzlicher Außenstellplatz. Die Lage überzeugt durch kurze Wege zu Einkaufsmöglichkeiten und weiteren Einrichtungen des täglichen Bedarfs, wodurch ein komfortabler Alltag gewährleistet ist.

Grundriss

Grundsriss UG.jpg
Grundsriss UG.jpg
Grundriss EG.jpg
Grundriss EG.jpg
Grundriss OG.png
Grundriss OG.png

Ausstattung


Großzügige Doppelhaushälfte mit einer Wohnfläche von rund 162 m²


Grundstücksanteil von etwa 229 m² mit Terrasse und eigenem Gartenbereich


Moderne Architektur mit Pultdach, ausgeführt im energieeffizienten KfW-55-Standard


Fußbodenheizung und Luft-Wasser-Wärmepumpe für ein gleichmäßiges und sparsames Heizen


Weitläufiger Wohn- und Essbereich mit Möglichkeit für eine offene, zeitgemäße Küche


Drei gut belichtete Schlafzimmer sowie ein zusätzliches Zimmer, nutzbar als Büro oder Gästezimmer


Komfortables Tageslichtbad mit Dusche und Badewanne; separates Gäste-WC


Hochwertige, dreifach verglaste Fenster mit ausgezeichneten Dämmwerten


Geräumiger Technik- und Abstellraum im Untergeschoss mit vielseitigen Nutzungsmöglichkeiten


Qualitative Materialien und eine helle Gestaltung verleihen dem Haus einen freundlichen, einladenden Charakte




Lage

Neuer Preis ! Traditionell geplant – Projektierte Doppelhaushälfte in Aichtal
Schönbuchstraße 2, 72631 Aichtal



Das Grundstück befindet sich in ruhiger und gewachsener Wohnlage von Neuenhaus, einem Ortsteil, der für seine angenehme Nachbarschaft und seine gute Struktur geschätzt wird. Die Schönbuchstraße ist eine gepflegte Wohnstraße ohne Durchgangsverkehr – ideal für Familien und Menschen, die Wert auf Ruhe, Sicherheit und Beständigkeit legen.

Alle Einrichtungen des täglichen Bedarfs sind bequem erreichbar.
Einkaufsmöglichkeiten, Schulen, Kindergärten, Ärzte, öffentlicher Nahverkehr sowie Freizeit- und Naturangebote liegen im nahen Umfeld. Die Umgebung ist geprägt von einer traditionell stabilen Wohnqualität, die seit vielen Jahren Bestand hat.

Die verkehrliche Anbindung ist zuverlässig: Über nahegelegene Hauptstraßen und regionale Verbindungen erreicht man größere Städte und Gewerbestandorte schnell und unkompliziert. Gleichzeitig bietet die direkte Umgebung viel Grün, Spazierwege und Naherholung.

Kurzum: Eine klassische, solide Lage, wie man sie sich für ein langfristiges Bauprojekt wünscht – ruhig, sicher, gut angebunden und mit einer stetig gewachsenen Wohnstruktur.





 

Sonstiges

Ein erschlossenes Baugrundstück mit vollständiger Genehmigung, Gutachten und Planung für zwei Doppelhaushälften – eine Gelegenheit, die heute selten geworden ist.
Für Bauherren, Investoren oder Familienprojekte bietet dieses Grundstück eine sichere Grundlage, um ohne Verzögerung in die Realisierung einzusteigen.

Der Kaufpreis ist zahlbar nach Baufortschritt gemäß Makler- und Bauträgerverordnung (MaBV).

Der Baubeginn erfolgt unmittelbar nach notarieller Beurkundung des Kaufvertrags – Sie können zeitnah mit der Umsetzung Ihres Wohntraums rechnen.

Selbstverständlich begleiten wir Sie von der Besichtigung über den Vertragsabschluss bis hin zur Fertigstellung persönlich und kompetent. Wir vermitteln - mit Sicherheit.

Anbieter

Elfi Singer Immobilien 73230 Kirchheim unter Teck

Neuer Preis ! Traditionell geplant – Projektierte Doppelhaushälfte in Aichtal

Vertriebsansprechpartner: Frau Elfi Singer

Weitere Informationen finden Sie unter:
http://www.elfi-singer.de (Website)
Impressum des Anbieters
Widerrufsbelehrung

Vorderansicht location icon Schönbuchstraße 2, 72631 Aichtal
Wohnfläche
162 m²
Grundstücksfläche
229 m²
Zimmer
5
Kaufpreis
599.900 €
Finanzierung berechnen Anbieter kontaktieren