Hausgefühl zum Wohnungspreis – Charmantes Eckhaus mit Mini-Garten

location icon 72555 Metzingen
In Zusammenarbeit mit Immoscout Logo

Informationen

Haustyp
Doppelhaushälfte
Etagenanzahl
3
Wohnfläche ca.
94 m²
Nutzfläche ca.
34 m²
Grundstücksfläche ca.
148 m²
Bezugsfrei ab
Sofort
Zimmer
5
Badezimmer
1
  • Gäste-WC
  • Keller

Kosten

Kaufpreis
330.000 €
Provision für Käufer
3,00 % (inkl. USt)

Bausubstanz & Energieausweis

Baujahr
1950
Bauphase
Haus fertig gestellt
Modernisierung/ Sanierung
zuletzt 1980
Objektzustand
Gepflegt
Ausstattung
Normale Qualität
Heizungsart
Nachtspeicherofen
Wesentlicher Energieträger
Strom
Energieausweis
liegt vor
Energieausweistyp
Bedarfsausweis
Endenergiebedarf
215,46 kWh/(m²*a)
Energie­effizienz­klasse
G
215,46 kWh/(m²*a)
Energie­effizienz­klasse G
  • A+
  • A
  • B
  • C
  • D
  • E
  • F
  • G
  • H
  • 0
  • 25
  • 50
  • 75
  • 100
  • 125
  • 150
  • 175
  • 200
  • 225
  • >250

Objektbeschreibung

Die angebotene Doppelhaushälfte überrascht trotz ihrer kompakten Maße mit einem durchdachten Grundriss und fünf gut nutzbaren Zimmern auf nahezu 100 m² Wohnfläche. Das Haus wurde ab 1950 errichtet und über die Jahre erweitert und modernisiert. Fassade und Dach sind gedämmt; Fenster, Sanitärbereiche und Leitungen wurden in früheren Jahrzehnten erneuert.

Das Wohnensemble verteilt sich auf drei Ebenen: ein helles Hochparterre mit Küche und Gäste-WC, zwei Schlafräume mit Tageslichtbad im Obergeschoss sowie zwei zusätzliche Zimmer im ausgebauten Dachgeschoss. Der Gewölbekeller bietet praktische Abstell- und Nutzflächen sowie einen direkten Zugang zum kleinen Garten mit Kirschbaum.

Die Doppelhaushälfte befindet sich in einem gepflegten Zustand. Übliche Maler- und Bodenarbeiten sind einzuplanen; auch die vorhandene Elektroheizung eröffnet Raum für eigene Modernisierungsideen.
Für alle Details, weitere Fotos und Grundrisse stellen wir Ihnen gerne das vollständige Exposé zur Verfügung.

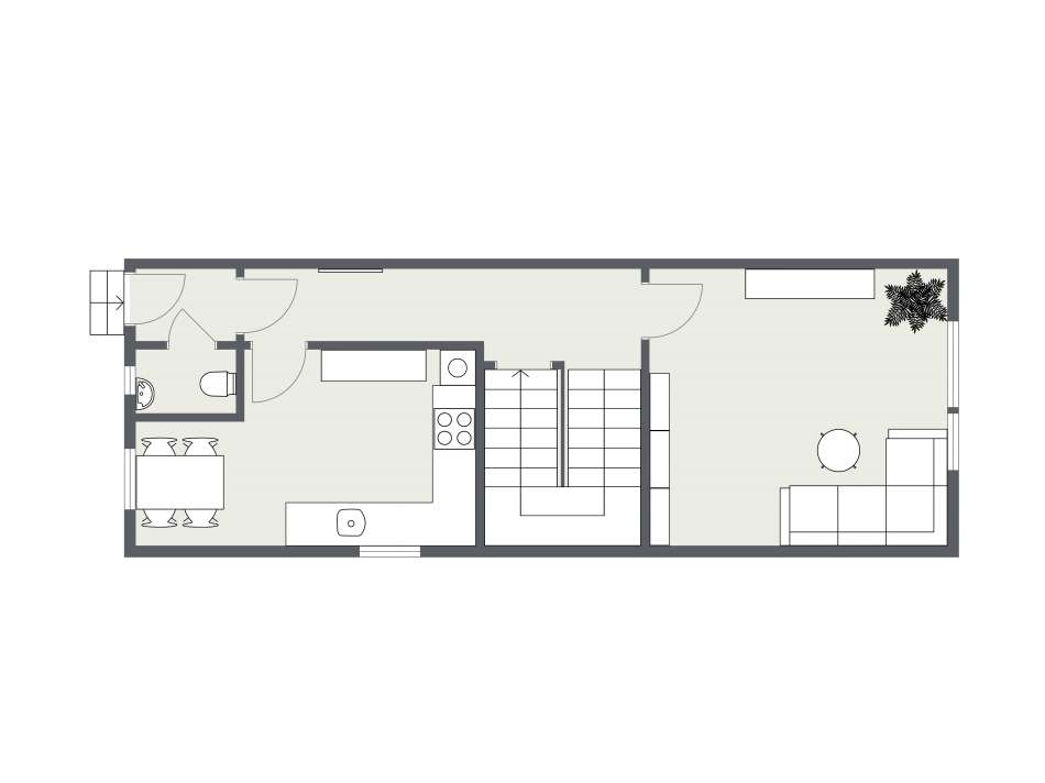
Grundriss

Erdgeschoss
Erdgeschoss
Obergeschoss
Obergeschoss
Dachgeschoss
Dachgeschoss
Untergeschoss
Untergeschoss

Ergänzende Links

Ausstattung

Massivbauweise, voll unterkellert, Kabelanschluss, Kellerraum, Starkstromanschluss, Waschküche, Balkon, Garten, Kunststoffboden/Vinyl, Kunststoff-Isolierglasfenster, Nachtspeicheröfen, Badewanne, Dusche, Gäste-WC, Tageslicht-Bad, Strukturtapete, Zentrumslage, Boiler

Lage

Hausgefühl zum Wohnungspreis – Charmantes Eckhaus mit Mini-Garten
72555 Metzingen

Die genaue Adresse dieses Objekts erhalten Sie vom Anbieter.

Die Doppelhaushälfte liegt in zentraler Lage von Metzingen mit kurzen Wegen zu Einkaufsmöglichkeiten, Bushaltestelle und dem Bahnhof. 

Grundschule, Kita und Kindergarten sind bequem zu Fuß erreichbar; Realschule und Gymnasium liegen nur wenige Fahrradminuten entfernt. Die Anbindung an die B 313 und B 28 ist hervorragend, sodass umliegende Städte und Arbeitsorte schnell erreichbar sind. 

Trotz der Nähe zur Ausfallstraße bietet der Standort kurze Distanzen zu den naturnahen Bereichen rund um Metzingen.

Sonstiges

Die vom Käufer zu zahlende Provision beträgt 3,00 % des Kaufpreises (inkl. gesetzlicher USt) und ist mit notarieller Beurkundung verdient und fällig. Wir sind für beide Parteien des Kaufvertrages tätig und erheben in den Fällen des § 656c BGB vom Käufer und Verkäufer eine Provision in gleicher Höhe.

Alle Angaben stammen vom Eigentümer oder Dritten und wurden nach bestem Wissen zusammengestellt; eine Gewähr für Richtigkeit, Vollständigkeit und Aktualität wird nicht übernommen. Planzeichnungen und Visualisierungen sind unverbindlich und können abweichen. Dieses Exposé stellt kein vertragliches Angebot dar; es ist freibleibend, Irrtum, Änderungen und Zwischenverkauf bleiben vorbehalten. Maßgeblich sind ausschließlich die Vereinbarungen im notariell beurkundeten Kaufvertrag.

Anbieter

Lutz Hotel- Betriebs- und Immobiliengesellschaft mbH Christian-Völter-Straße 30, 72555 Metzingen

Hausgefühl zum Wohnungspreis – Charmantes Eckhaus mit Mini-Garten

Vertriebsansprechpartner: expose.salutation.NO_SALUTATION Jochen Lutz

Weitere Informationen finden Sie unter:
http://www.lutzimmobilien.de (Website)
Impressum des Anbieters

Straßenseite (linker Teil) location icon 72555 Metzingen
Wohnfläche
94 m²
Grundstücksfläche
148 m²
Zimmer
5
Kaufpreis
330.000 €
Finanzierung berechnen Anbieter kontaktieren