Balkon
Balkon
Balkon
Essen
Wohnen Essen
Wohnen
Kind/Gast/Arbeiten
Schlafen
Küche
Küche Essplatz
Bad
Flur
Eingang
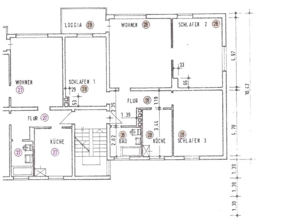
Grundriss_Wohnung_28
Grundriss_Eckbalkon_2025

Helle 4 Zimmer, großer Balkon mit Blick ins Grüne, zentrumsnah

location icon 38118 Westliches Ringgebiet, Braunschweig
In Zusammenarbeit mit Immoscout Logo

Informationen

Typ
Etagenwohnung
Etage
1 von 4
Wohnfläche ca.
96,77 m²
Nutzfläche ca.
4 m²
Bezugsfrei ab
nach Vereinbarung
Zimmer
4
Schlafzimmer
3
Badezimmer
1
Anzahl Garage / Stellplatz
-
  • Keller
  • Einbauküche

Kosten

Kaufpreis
295.000 €
Hausgeld
215,14 €
Garage/ Stellplatz-Kaufpreis
0 €
Provision für Käufer
3,75 % vom Kaufpreis (inkl. MwSt.)
Käufer-Provision inkl. gültiger MwSt., verdient und fällig mit Beurkundung des notariellen Kaufvertrages. Der Immobilienmakler hat einen provisionspflichtigen Maklervertrag mit dem Verkäufer in gleicher Höhe abgeschlossen.

Bausubstanz & Energieausweis

Baujahr
1953
Objektzustand
Gepflegt
Ausstattung
Normale Qualität
Heizungsart
Etagenheizung
Wesentlicher Energieträger
Gas
Energieausweis
liegt vor
Energieausweistyp
Bedarfsausweis
Endenergiebedarf
194,9 kWh/(m²*a)
Energie­effizienz­klasse
F
194,9 kWh/(m²*a)
Energie­effizienz­klasse F
  • A+
  • A
  • B
  • C
  • D
  • E
  • F
  • G
  • H
  • 0
  • 25
  • 50
  • 75
  • 100
  • 125
  • 150
  • 175
  • 200
  • 225
  • >250

Objektbeschreibung

Diese großzügige und lichtdurchflutete Eigentumswohnung befindet sich in einer beliebten und zentralen Lage von Braunschweig. Mit ca. 97 m² Wohnfläche und insgesamt 4 Zimmern bietet sie viel Platz für Familien und Paare, die zentrales Wohnen in Braunschweig schätzen.

Ein besonderes Highlight ist die 2025 neu errichtete Terrasse: Hier finden Sie Entspannung und Ruhe vom Alltag – ob beim Frühstück im Freien oder beim Genießen des Sonnenuntergangs am Abend.

Die Küche ist hell mit gemütlichem Essbereich. Hinweis: Verkauf erfolgt ohne elektr. Geräte. 

Zudem gibt es ein Tageslichtbad mit Wanne. 

Energetische Sanierung von West- und Nord-Fassade 2024: Neues Wärmedämmverbundsystem und energetische Maßnahmen im Dachbereich. 

Stauraum gibt es im Dachgeschoss und im Keller. 

Das Wohnumfeld besticht durch seine zentrale Lage mit hervorragender Infrastruktur: Einkaufsmöglichkeiten, Schulen, Kitas und öffentliche Verkehrsmittel befinden sich in unmittelbarer Nähe. Parkmöglichkeiten stehen bequem direkt vor dem Haus auf der Straße zur Verfügung.

Ausstattung

- Großer Keller 
- 3 Schlafzimmer 
- Wannen-Bad mit Fenster
- 1 Großes Wohn-Ess-Zimmer
- Abstellraum im Dachgeschoss
- Neue West- und Nord-Fassade 2024
- Neuer großer Süd-West-Balkon 2025
- Energetische Maßnahmen im Dachbereich 2024
- ca. 100 m² Wohnfläche mit durchdachtem Grundriss
- Helle Küche mit Essbereich (Küchengeräte werden nicht mit verkauft)

Lage

Helle 4 Zimmer, großer Balkon mit Blick ins Grüne, zentrumsnah
38118 Westliches Ringgebiet, Braunschweig

Die genaue Adresse dieses Objekts erhalten Sie vom Anbieter.

Braunschweig zentrumsnah: ca. 5 Gehminuten

Supermärkte: ca. 5 Gehminuten
Apotheke: ca. 5 Gehminuten
Arzt: ca. 5 Gehminuten

Sonstiges

Modernisierungen: 
2024/25: 
- Dachbereiche energetisch saniert
- West- und Nord-Fassade neue WDVS
- Neuer Balkon
- Neue Balkontür

2006/07: 
- Neue Fenster (außer im DG)

2004: 
- Heizung (lt. Energieausweis)

Anbieter

Helle 4 Zimmer, großer Balkon mit Blick ins Grüne, zentrumsnah

Vertriebsansprechpartner: expose.salutation.NO_SALUTATION MAKLERMAUS

Weitere Informationen finden Sie unter:
Impressum des Anbieters
Widerrufsbelehrung

Balkon location icon 38118 Westliches Ringgebiet, Braunschweig
Wohnfläche
96,77 m²
Zimmer
4
Kaufpreis
295.000 €
Finanzierung berechnen Anbieter kontaktieren