Mußbach, Doppelhaushälfte Neubau und Einzug 2026

location icon 67435 Mußbach, Neustadt an der Weinstraße
In Zusammenarbeit mit Immoscout Logo

Informationen

Haustyp
Einfamilienhaus (freistehend)
Etagenanzahl
3
Wohnfläche ca.
114 m²
Nutzfläche ca.
175 m²
Grundstücksfläche ca.
196 m²
Zimmer
4
Schlafzimmer
3
Badezimmer
2
Anzahl Garage / Stellplatz
1 Außenstellplatz
  • Gäste-WC
  • Provisionsfrei

Kosten

Kaufpreis
481.000 €
Provision für Käufer
Nein

Bausubstanz & Energieausweis

Baujahr
unbekannt
Bauphase
Haus in Planung (projektiert)
Ausstattung
Gehobene Qualität

Objektbeschreibung

Unsere individuell planbare Doppelhaushälfte (auch mit Keller möglich) ist ein Platzwunder mit hellen Räumen und einer flexibel nutzbarem Obergeschoss. Das Dachgeschoss ist mit der vollwertigen Treppe bereits zum Ausbau vorbereitet. Neben der Küche mit Speisekammer, öffnet sich der großzügig bemessene Wohn/Essbereich mit großen Fenstern. Im Erdgeschoss entsteht so ein größtenteils offenes, aber klar strukturiertes Raumgefüge, welches aber natürlich noch individuell nach Ihren Wünschen frei geplant werden kann. Die KFN-QNG Förderung kann auf Wunsch (gegen Mehrpreis) natürlich auch mit hinzugenommen werden! Hier ist aktuell das KFW Programm 300 für Familien sehr interessant.

Grundriss

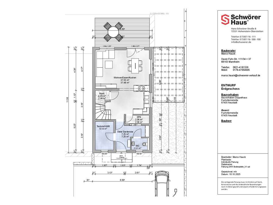
Grundriss DHH Bodenplatte EG_V
Grundriss DHH Bodenplatte EG_V
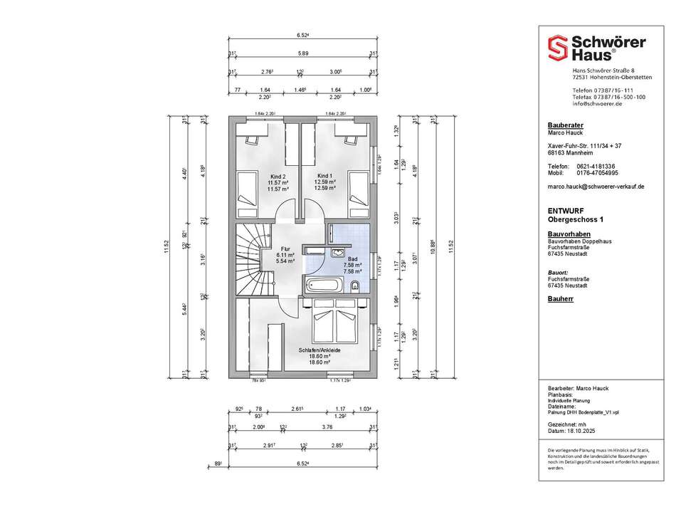
Grundriss DHH Bodenplatte OG_V
Grundriss DHH Bodenplatte OG_V
Grundriss DHH Bodenplatte DG_V
Grundriss DHH Bodenplatte DG_V

Ergänzende Links

Ausstattung

Die Ausstattung oder wie weit der Innenausbau durch die Firma SchwörerHaus gehen soll, bestimmen Sie selbst. Der angebotene Hauspreis ist malerfertig mit Fliesenarbeiten und Sanitärobjekten. Das heißt Malerarbeiten, Innentüren und alle im Plan nicht mit Fliesen dargestellten Räume müssten in Eigenleistung gemacht werden oder können natürlich gerne auch bei uns mit beauftragt werden. 
Warum SchwörerHaus?
• Energieeffiziente, nachhaltige  Bauweise „Made in Germany“
• Präzise Vorfertigung und hohe Ausführungsqualität → kurze Bauzeit ab Baugenehmigung 6 Monate zzgl. Innenausbau
• Individuelle Planung & schlüsselfertige Umsetzung aus einer Hand
• Gesundes Wohnklima, transparente Abläufe, fester Ansprechpartner
Highlights Ihres Projekts
• Innen aufgestellte Luft/Luft-Wärmepumpe
• 3-fach verglaste Fenster mit Sicherheitsverriegelung
• Elektrische Rollläden
• Smart-Home inklusive
• PV-Vorbereitung
• Bodengleiche Dusche
• Alle im Plan dargestellten Fliesenarbeiten & Bäder komplett bezugsfertig inkl. Innentüren
• Tondachziegel
• Leimbinderdachstuhl gedämmt bis zum First
• Zahlung ab Oberkante Bodenplatte/Keller; 90 % nach Hausübergabe
• Carport oder Garage optional möglich
• Dachgeschoss zum späteren Ausbau vorbereitet, vollwertige Treppe, Anschlüsse im Dachgeschoss und Fenster bereits mit enthalten.

Unsere Ausstattungsberater beraten und begleiten Sie bei der Innengestaltung. Hochwertige Materialien finden Sie in unseren drei Bemusterungsstandorten in Deutschland, angefangen von den Bädern, den Wand- und Bodenbelägen bis hin zu Einbauküchen und Einbaumöbeln aus der Schwörer-Design-Schreinerei. Besonders wichtig sind uns neben der geschmackvollen Gestaltung Ihrer Räume, die Verwendung von ausschließlich wohngesunden und geprüften Materialien.

Lage

Mußbach, Doppelhaushälfte Neubau und Einzug 2026
67435 Mußbach, Neustadt an der Weinstraße

Die genaue Adresse dieses Objekts erhalten Sie vom Anbieter.

Das Grundstück befindet sich einer sehr ruhigen aber zentralen Lage und ist eines von vier Grundstücken, die zum Verkauf stehen. Diese sind jeweils für eine Bebauung mit einer Doppelhaushälfte vorgesehen. Das Grundstück ist über eine gemeinsame Zufahrt im vorderen Bereich erreichbar.
Im Ort finden Sie eine perfekte Infrastruktur mit allen Einkaufsmöglichkeiten, Ärzten, guter Gastronomie und auch Kindergärten und Grundschule sind vorhanden. Die guten Busverbindungen sind ein weiterer Pluspunkt, außerdem der im Ort vorhandene Bahnhof und die kurzen Wege zur Autobahn.

Sonstiges

Jedes SchwörerHaus wird individuell nach Ihren Wünschen vom Architekten geplant und zum Festpreis einschließlich Keller angeboten.  Abbildungen können Sonderausstattungen enthalten.

Zu berücksichtigen sind z.B. noch folgende weitere Kosten:
- Hausanschlüsse
- Erdarbeiten
- Vermessung
- Notar/Grunderwerbsteuer beim    Grundstückskauf
- Gartengestaltung/Pflasterarbeiten
- Maklercourtage in Höhe von 4,76% auf den jeweiligen Grundstückspreis

Für alle Fragen rund ums Bauen, Grundstück, Planung, Kosten oder auch Finanzierung stehe ich jederzeit zur Verfügung! Vereinbaren Sie per E-Mail oder telefonisch gerne Ihren persönlichen  Beratungstermin mit mir.

Anbieter

SchwörerHaus Nord Xaver-Fuhr-Str. 34+35, 68163 Mannheim

Mußbach, Doppelhaushälfte Neubau und Einzug 2026

Vertriebsansprechpartner: Herr Marco Hauck

Weitere Informationen finden Sie unter:
http://www.schwoererhaus.de (Website)
Impressum des Anbieters

Gartenansicht_V1-neu location icon 67435 Mußbach, Neustadt an der Weinstraße
Wohnfläche
114 m²
Grundstücksfläche
196 m²
Zimmer
4
Kaufpreis
481.000 €
Finanzierung berechnen Anbieter kontaktieren