Charmantes Einfamilienhaus mit Einliegerwohnung und großem Grundstück in Rülzheim

location icon 76761 Rülzheim
In Zusammenarbeit mit Immoscout Logo

Informationen

Haustyp
Einfamilienhaus (freistehend)
Etagenanzahl
2
Wohnfläche ca.
128 m²
Nutzfläche ca.
70 m²
Grundstücksfläche ca.
708 m²
Zimmer
4
Schlafzimmer
3
Badezimmer
2
  • Gäste-WC

Kosten

Kaufpreis
379.000 €
Provision für Käufer
3,57 % inkl. MwSt.

Bausubstanz & Energieausweis

Baujahr
1954
Objektzustand
Gepflegt
Ausstattung
Normale Qualität
Heizungsart
Zentralheizung
Wesentlicher Energieträger
Gas
Energieausweis
liegt vor
Energieausweistyp
Bedarfsausweis
Endenergiebedarf
166,5 kWh/(m²*a)
Energie­effizienz­klasse
F
166,5 kWh/(m²*a)
Energie­effizienz­klasse F
  • A+
  • A
  • B
  • C
  • D
  • E
  • F
  • G
  • H
  • 0
  • 25
  • 50
  • 75
  • 100
  • 125
  • 150
  • 175
  • 200
  • 225
  • >250

Objektbeschreibung

Dieses ansprechende Einfamilienhaus wurde im Jahr 1954 in solider, eineinhalbgeschossiger Massivbauweise errichtet und befindet sich auf einem großzügigen Grundstück von ca. 708 m² in ruhiger Wohnlage von Rülzheim. Das Haus ist vollständig unterkellert und bietet eine Wohnfläche von insgesamt ca. 128 m² sowie rund 70 m² Nutzfläche.

Das Haupthaus umfasst ca. 83 m² Wohnfläche - das Dach wurde 2015 neu eingedeckt und isoliert, das Dachgeschoss ist zu Wohnzwecken ausgebaut. Im Jahr 2015 erfolgte zudem der Anbau einer zweigeschossigen Einliegerwohnung in Holzständerbauweise mit ca. 45 m² Wohnfläche und eigenem Eingang. Der Anbau ist nicht unterkellert und verfügt über ein Flachdach.

Die Immobilie bietet insgesamt vier Zimmer, davon drei Schlafzimmer, zwei Badezimmer sowie ein Gäste-WC mit Tageslicht (Restarbeiten erforderlich). Das Badezimmer im Haupthaus ist mit Badewanne und Dusche ausgestattet, im Anbau befindet sich ein weiteres Tageslicht-Duschbad. Beide Wohneinheiten verfügen über Einbauküchen. Der ehemalige Balkon wurde zu einem Wintergarten umgebaut – auch hier sind kleinere Fertigstellungsarbeiten notwendig.

Die Beheizung erfolgt über eine Gas-Zentralheizung aus dem Jahr 2012, die auch die Warmwasseraufbereitung übernimmt. Die Fenster wurden 1987, 1996 sowie im Anbau 2015 erneuert und sind jeweils aus Kunststoff mit zweifacher Verglasung. Bodenbeläge aus Holzdielen, Parkett und Fliesen verleihen den Räumen eine wohnliche Atmosphäre.

Im Außenbereich stehen eine Terrasse, ein gepflegter Garten sowie eine 2015 errichtete Garage mit elektrischem Sektionaltor und vorbereiteten Sanitäranschlüssen zur Verfügung. Zusätzlich gibt es einen Stellplatz im Freien.

Der Anbau ist seit 2021 vermietet und erzielt eine monatliche Kaltmiete von 330 €. Das Haupthaus ist kurzfristig bezugsfrei. Ohne größere bauliche Maßnahmen ist es möglich, beide Einheiten miteinander zu verbinden und das Gebäude als ein großzügiges Einfamilienhaus zu nutzen.

Dieses Objekt bietet flexible Nutzungsmöglichkeiten – ob als Mehrgenerationenhaus, zur teilweisen Vermietung oder als großzügiges Eigenheim – und überzeugt durch seinen soliden Zustand, den durchdachten Grundriss und das weitläufige Grundstück in beliebter Wohnlage von Rülzheim: https://immotas.de/de/immobilie/charmantes-einfamilienhaus-mit-einliegerwohnung-und-grossem-grundstueck-in-ruelzheim-f1e1d87d

Grundriss

Grundriss Erdgeschoss
Grundriss Erdgeschoss
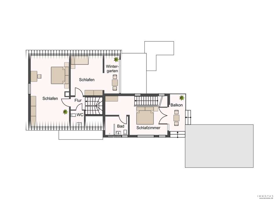
Grundriss Obergeschoss
Grundriss Obergeschoss

Ergänzende Links

Ausstattung

1954 Baujahr Einfamilienhaus (ca. 83 m²)
eineinhalbgeschossige Massivbauweise
komplett unterkellert
Dachgeschoss zu Wohnzwecken ausgebaut 
2015 Dach neu eingedeckt und isoliert

2015 Anbau mit Einliegerwohnung (ca. 45 m²)
zweigeschossige Holzständerbauweise
nicht unterkellert
Flachdach

2012 Gas-Zentralheizung inklusive Warmwasseraufbereitung
1987 + 1996 Fenster Kunststoff 2fach verglast
2015 Fenster Kunststoff 2fach verglast (Anbau)
Bodenbelag Holzdielen, Parkett und Fliesen
Tageslicht-Badezimmer mit Badewanne und Dusche
Tageslicht-Gäste-WC - Restarbeiten nötig
Tageslicht-Duschbad (Anbau)
Einbauküchen 
ehemaliger Balkon als Wintergarten geschlossen  - Restarbeiten nötig
Terrasse
Garten
2015 Baujahr Garage mit elektrischem Sektionaltor und Vorbereitung für Sanitärbereich
Stellplatz im Freien

Der Anbau ist seit 2021 vermietet (Kaltmiete 330 €/Monat).
Das Haupthaus ist kurzfristig bezugsfrei.
_______________________

Bei der Wohn- und Nutzfläche handelt es sich um ca. Angaben!

Lage

Charmantes Einfamilienhaus mit Einliegerwohnung und großem Grundstück in Rülzheim
76761 Rülzheim

Die genaue Adresse dieses Objekts erhalten Sie vom Anbieter.

Das Einfamilienhaus befindet sich in der Westendstraße in Rülzheim, einer beliebten Gemeinde im Landkreis Germersheim in Rheinland-Pfalz. Die Lage zeichnet sich durch ihre ruhige und familienfreundliche Wohnumgebung aus, die dennoch eine hervorragende Anbindung an das regionale Verkehrsnetz bietet.

Rülzheim verfügt über eine sehr gute Infrastruktur: Einkaufsmöglichkeiten für den täglichen Bedarf, Bäckereien, Ärzte, Apotheken sowie Kindergärten und Schulen sind in wenigen Minuten erreichbar. Das nahegelegene Ortszentrum bietet zudem verschiedene Restaurants, Cafés und kleinere Geschäfte, die zum Verweilen einladen.

Die Gemeinde ist über die Bundesstraße B9 und den Bahnhof Rülzheim optimal angebunden. Städte wie Germersheim, Landau, Speyer oder Karlsruhe sind schnell erreichbar, was den Standort auch für Pendler attraktiv macht.

Für Erholung und Freizeit sorgen zahlreiche Grünflächen, Spazier- und Radwege in der Umgebung. Besonders beliebt ist das Freizeitbad Rülzheim sowie der Naherholungspark Bellheim-Rülzheim, die vielfältige Freizeitmöglichkeiten für Jung und Alt bieten.

Insgesamt bietet die Lage eine harmonische Kombination aus naturnahem Wohnen und urbaner Erreichbarkeit, ideal für Familien, Paare oder Berufspendler, die ein ruhiges Zuhause mit guter Anbindung suchen.

Sonstiges

Wenn Sie Interesse an diesem Objekt haben, sprechen Sie uns an. Auch in Finanzierungsfragen helfen wir Ihnen gerne weiter. Sollten Sie eine Immobilie zu verkaufen haben oder suchen Sie einen Nachmieter für Ihre Wohnung/Ihr Haus, informieren wir Sie gerne unverbindlich über unseren Service, der professionellen Immobilienvermarktung. Wir freuen uns auf Ihre Anfrage!

Die Erstellung des Exposés wurde teilweise mit Anwendung von KI (künstlicher Intelligenz) erstellt.

Anbieter

Immotas GmbH & Co. KG Bahnhofstraße 16, 67269 Grünstadt

Charmantes Einfamilienhaus mit Einliegerwohnung und großem Grundstück in Rülzheim

Vertriebsansprechpartner: Herr Brandon Dominguez

Weitere Informationen finden Sie unter:
http://www.immotas.de (Website)
Impressum des Anbieters
Widerrufsbelehrung

SP-25-MRBD-392 location icon 76761 Rülzheim
Wohnfläche
128 m²
Grundstücksfläche
708 m²
Zimmer
4
Kaufpreis
379.000 €
Finanzierung berechnen Anbieter kontaktieren