Kapitalanlage - 3-ZKB Altbauwohnung in Mannheim Neuostheim

location icon 68163 Neuostheim/Neuhermsheim, Mannheim
In Zusammenarbeit mit Immoscout Logo

Informationen

Typ
Etagenwohnung
Etage
3 von 5
Wohnfläche ca.
105,16 m²
Nutzfläche ca.
10 m²
Zimmer
3
Schlafzimmer
2
Badezimmer
1
  • Gäste-WC
  • Keller
  • Provisionsfrei
  • Vermietet

Kosten

Kaufpreis
369.000 €
Hausgeld
420,00 €
Provision für Käufer
Nein
Mieteinnahmen pro Monat
884 €

Bausubstanz & Energieausweis

Baujahr
1926
Ausstattung
Gehobene Qualität
Heizungsart
Fernwärme
Wesentlicher Energieträger
Fernwärme
Energieausweis
liegt vor
Energieausweistyp
Bedarfsausweis
Endenergiebedarf
202 kWh/(m²*a)
Energie­effizienz­klasse
G
202 kWh/(m²*a)
Energie­effizienz­klasse G
  • A+
  • A
  • B
  • C
  • D
  • E
  • F
  • G
  • H
  • 0
  • 25
  • 50
  • 75
  • 100
  • 125
  • 150
  • 175
  • 200
  • 225
  • >250

Objektbeschreibung

ALLE BILDER DER WOHNUNG WURDEN PER KÜNSTLICHE INTELIGENZ BEARBEITET UND OHNE MÖBEL ANGEZEIGT. 

Diese charmante Altbauwohnung aus dem Jahr 1926 vereint den besonderen Charakter vergangener Zeiten mit modernem Wohnkomfort. Mit einer großzügigen Wohnfläche von rund 105 m² verteilt auf drei helle Zimmer, eine Küche sowie ein Badezimmer, bietet sie viel Platz für individuelles Wohnen.

Die Wohnung besticht durch ihre lichtdurchfluteten Räume und die hohen Decken, die ein besonderes Wohngefühl schaffen. Der geräumige Wohn- und Essbereich lädt zum Verweilen ein, während die beiden großen Schlafzimmer ideale Rückzugsorte bieten. Die Küche ist funktional geschnitten und verfügt über ein Fenster, das für viel Tageslicht sorgt. Das Badezimmer ist klassisch ausgestattet und bietet alles, was man zum Wohlfühlen braucht.

Ein weiterer Pluspunkt: Die zentrale Wärmeversorgung wurde 2023 modernisiert und läuft über eine effiziente Fernwärmeanlage.

Das Objekt ist derzeit solide vermietet und eignet sich daher gut für Kapitalanleger, die auf der Suche nach einer schönen, hellen Wohnung in guter Lage von Mannheim-Neuostheim sind.

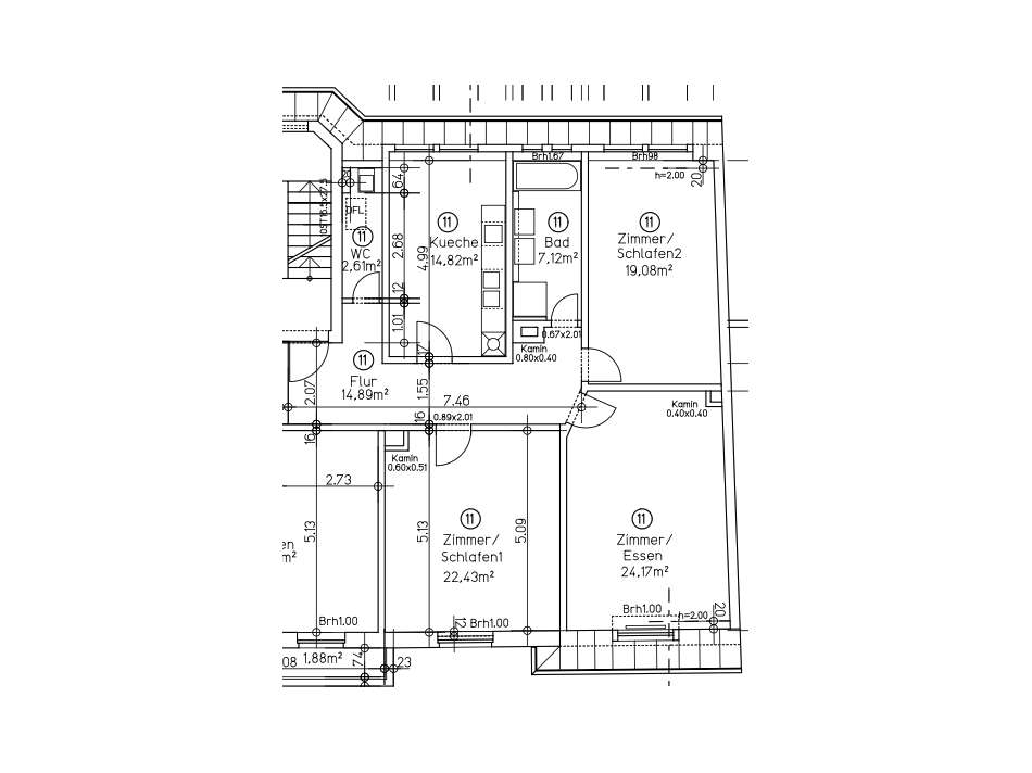
Grundriss

Ki_Schlafzimmer

Ausstattung

3 Zimmer, Küche, Bad (3 ZKB)

Küche mit Fenster und Einbauküche

Badezimmer mit Badewanne

Zwei große, helle Schlafzimmer (22,43 m² und 19,08 m²)

Wohnzimmer/Essbereich mit 24,17 m²

Flur mit 14,89 m² bietet großzügigen Eingangsbereich

Balkon vorhanden

Fernwärme-Heizung (2023 erneuert)

Hausgeld: 420 €

Vermietet seit 2011 (Kaltmiete: 884,06 € zzgl. Nebenkosten 355 €)

Lage

Kapitalanlage - 3-ZKB Altbauwohnung in Mannheim Neuostheim
68163 Neuostheim/Neuhermsheim, Mannheim

Die genaue Adresse dieses Objekts erhalten Sie vom Anbieter.

Die Wohnung befindet sich in der beliebten Dürerstraße in Mannheim-Neckarau. Die Lage überzeugt durch eine gute Infrastruktur mit Einkaufsmöglichkeiten, Restaurants, Cafés sowie Schulen und Kitas in unmittelbarer Nähe. Die Anbindung an den öffentlichen Nahverkehr ist ausgezeichnet – Straßenbahn- und Bushaltestellen sind fußläufig erreichbar. Auch die Nähe zum Neckar und verschiedene Grünanlagen bieten attraktive Freizeitmöglichkeiten.

Anbieter

Kapitalanlage - 3-ZKB Altbauwohnung in Mannheim Neuostheim

Vertriebsansprechpartner: Herr Nikos Müller

Weitere Informationen finden Sie unter:
Impressum des Anbieters

Ki_Schlafzimmer location icon 68163 Neuostheim/Neuhermsheim, Mannheim
Wohnfläche
105,16 m²
Zimmer
3
Kaufpreis
369.000 €
Finanzierung berechnen Anbieter kontaktieren