Mehrgenerationen-/Zweifamilienhaus in ruhiger Lage direkt am Bach

location icon 76761 Rülzheim
In Zusammenarbeit mit Immoscout Logo

Informationen

Haustyp
Mehrfamilienhaus
Wohnfläche ca.
270 m²
Grundstücksfläche ca.
826 m²
Bezugsfrei ab
sofort
Zimmer
8
Schlafzimmer
6
Badezimmer
2
  • Gäste-WC
  • Keller

Kosten

Kaufpreis
387.000 €
Provision für Käufer
3,57 % inkl. MwSt.

Bausubstanz & Energieausweis

Baujahr
1967
Objektzustand
Renovierungsbedürftig
Ausstattung
Einfach Qualität
Heizungsart
Gas-Heizung

Objektbeschreibung

Das angebotene Zweifamilienhaus befindet sich in sehr ruhiger Lage direkt am Bach in Rülzheim.

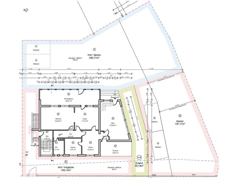
Im Erdgeschoss befindet sich die erste und mit ca. 140 m² größte Wohnung. Hier befindet sich neben den üblichen Wohnräumen noch eine großzügige Terrasse sowie ein Wintergarten.

Eine weitere Wohnung befindet sich im Obergeschoss und Dachgeschoss. Es wäre denkbar, diese beiden Einheiten zu unterteilen und in Summe drei Wohnungen zu schaffen.

Derzeit handelt es sich offiziell um ein Einfamilienhaus, jedoch liegen bereits projektierte Pläne zur Trennung in zwei Wohneinheiten vor.

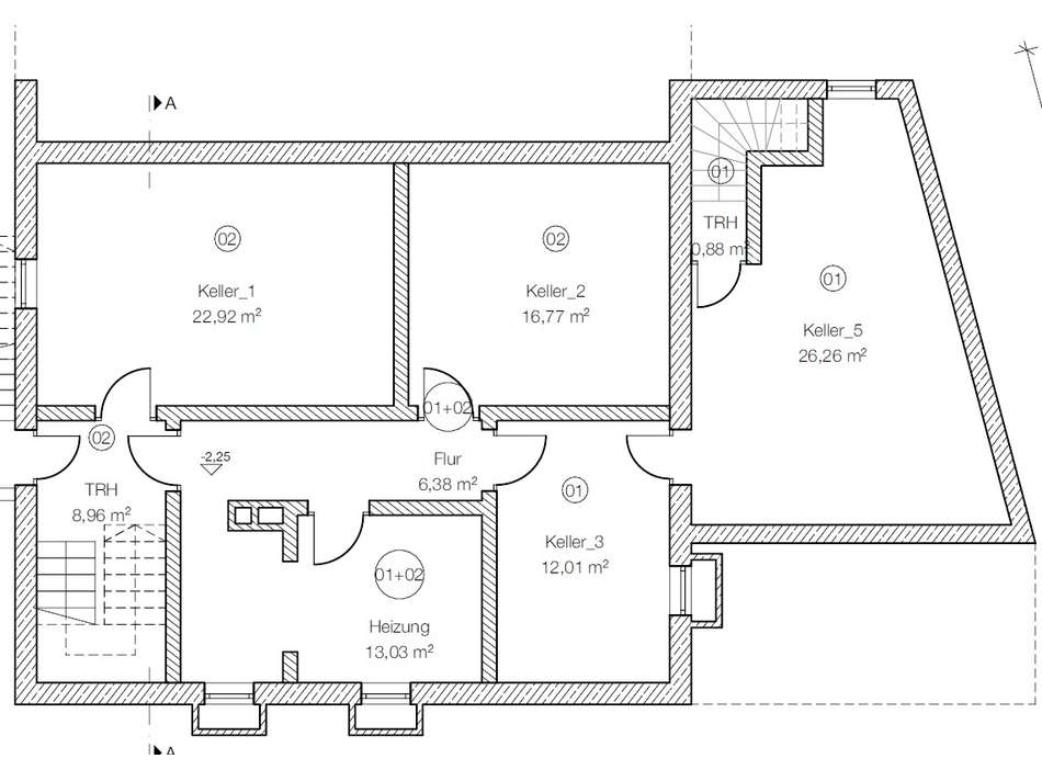
Das Objekt ist voll unterkellert und bietet genügend Stauraum für mehrere Parteien. Stellplätze sind ebenfalls genügend vorhanden.

Unser Exposé beruht auf den Angaben der Eigentümer. Haftung wird hierfür nicht übernommen.

Grundriss

Grundriss EG
Grundriss EG
Grundriss OG
Grundriss OG
Grundriss DG
Grundriss DG
Grundriss KG
Grundriss KG

Ausstattung

- Tageslicht Badezimmer mit Wanne, Dusche 
- Gästetoilette
- Wintergarten
- überdachte Terrasse und Balkon 
- Stellplätze
- Garten mit angrenzenden Bachlauf

Lage

Mehrgenerationen-/Zweifamilienhaus in ruhiger Lage direkt am Bach
76761 Rülzheim

Die genaue Adresse dieses Objekts erhalten Sie vom Anbieter.

Die Verbandsgemeinde Rülzheim mit den Orten Rülzheim, Leimersheim, Hördt und Kuhardt hat zur Zeit rund 15.000 Einwohner. Davon hat die Ortsgemeinde Rülzheim ca. 8.000.

Der Ort Rülzheim selbst übt aufgrund seiner in jeder Beziehung günstigen Lage eine Anziehungskraft auf die Bevölkerung der Umgebung und die Beschäftigten der nahegelegenen Ballungszentren Ludwigshafen/Mannheim und Karlsruhe aus. Außerdem befinden wir uns in unmittelbarer Nachbarschaft von Frankreich.

Rülzheim liegt verkehrsgünstig an der vierspurig ausgebauten B 9. Das Gewerbegebiet kann über die Abfahrt Rülzheim-Nord direkt angefahren werden. Über die B 9 sind alle nahegelegenen Ballungszentren auf kurzem Wege sowie verschiedene Autobahnen direkt zu erreichen. 

Herzlich Willkommen in Rülzheim.

Sonstiges

WICHTIGE VORGEHENSWEISE:

Für die Zusendung des Exposés und zur Vereinbarung eines Besichtigungstermines, benötigen wir Ihre vollständige Anschrift mit Telefon-Nr. Bitte füllen Sie freundlicherweise das Kontaktformular aus, wir melden uns daraufhin bei Ihnen.

Die angegebene Courtage ist vom Käufer zu zahlen. Sie berechnet sich aus dem beurkundeten Kaufpreis (inkl. Nebenabreden). Es besteht ein Maklervertrag mit dem Verkäufer, der in gleicher Höhe provisionspflichtig ist. Die Courtage ist verdient mit Abschluss des notariellen Kaufvertrages und fällig mit Erhalt unserer Rechnung.

Anbieter

Immo Partner Immobilien GmbH Hauptstr. 267a, 76756 Bellheim

Mehrgenerationen-/Zweifamilienhaus in ruhiger Lage direkt am Bach

Vertriebsansprechpartner: Herr Rico Diehl

Weitere Informationen finden Sie unter:
Impressum des Anbieters
Widerrufsbelehrung

Hausansicht location icon 76761 Rülzheim
Wohnfläche
270 m²
Grundstücksfläche
826 m²
Zimmer
8
Kaufpreis
387.000 €
Finanzierung berechnen Anbieter kontaktieren