Alle guten Dinge sind Drei - Drei Giebel Projektpreis!

location icon 76863 Herxheimweyher
In Zusammenarbeit mit Immoscout Logo

Informationen

Haustyp
Einfamilienhaus (freistehend)
Etagenanzahl
2
Wohnfläche ca.
126,01 m²
Nutzfläche ca.
138,57 m²
Grundstücksfläche ca.
490 m²
Zimmer
4
Schlafzimmer
4
Badezimmer
1
  • Gäste-WC

Kosten

Kaufpreis
456.400 €
Provision für Käufer
Die Maklercourtage für das Grundstück beträgt 4.090 €/brutto.

Bausubstanz & Energieausweis

Baujahr
2025
Bauphase
Haus in Planung (projektiert)
Objektzustand
Erstbezug
Ausstattung
Gehobene Qualität
Heizungsart
Fußbodenheizung

Objektbeschreibung

Das helle Dreigiebelhaus für die Familie 

Das Dreigiebelhaus für die junge Familie. Mit raffinierten Grundrissen für das neue Familienleben. Im Erdgeschoss Essen und Wohnen auf rund 41 m² und eine leicht abgesetzte Küche mit Abstellraum. Dazu ein ruhiges Arbeits- oder Gästezimmer.

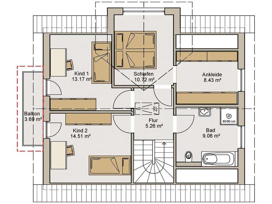
Im Dachgeschoss haben wir den Flur bewusst kleiner geplant und so mehr Platz für das Schlafzimmer mit eigenem Ankleideraum und die 2 großzügigen Kinderzimmer mit Balkon geschaffen.

Auch optisch wirkt das Haus: Durch das farblich abgesetzte Zwerchhaus mit dem dritten Giebel erhält dieses Haus seine unverwechselbare Note.

Grundriss

EFH-139-45-75 - Obergeschoss
EFH-139-45-75 - Obergeschoss
EFH-139-45-75-Erdgeschoss
EFH-139-45-75-Erdgeschoss

Weitere Dokumente

Ausstattung

Unser Angebot beinhaltet das angebotene Einfamilienhaus inklusive dem Grundstück gemäß Bau-und Leistungsbeschreibung in folgender Variante (=Fast Fertig):

Die Highlights Ihres Hauses:
- ENEV: KfW-EH-40-Standard
- Architektenleistung inklusive
- Fußbodenheizung im Erdgeschoss & Dachgeschoss
- WÄRMEPUMPE
- Bodenplatte inklusive
- Wärmedämmende   wohngesunde Außenfertigteilwände
- Großzügige Dachüberstände
- hochwertige Thermofenster mit 3-fach-Verglasung
- Aluminium Rollläden in Erdgeschoss & Dachgeschoss
-  Außenfensterbänke aus Alu oder Marmor
- Innenfensterbänke aus Marmor
- hochwertige, repräsentative Hauseingangstüre 
- Außenputz in verschiedenen Farben
- exklusive Badkeramik und Armaturen
- Badewanne inklusive Armaturen
- Bad und Gäste-WC inkl. Boden- u. Wandfliesen
- Haustechnikraum gefliest
- bodenebene, geflieste Dusche inkl. Armaturen

Wir garantieren Ihnen jederzeit klare Abläufe, eine sichere Preiskalkulation und eine termingerechte Bauübergabe. 

Lage

Alle guten Dinge sind Drei - Drei Giebel Projektpreis!
76863 Herxheimweyher

Die genaue Adresse dieses Objekts erhalten Sie vom Anbieter.

Das Grundstück befindet sich in Herxheimweyher.

Das Grundstück ist über einen externen Partner/Makler/Eigentümer zu erwerben.
Die Maklercourtage wird NUR für das Grundstück berechnet und fällig. 

Das Grundstück ist, nach Auskunft des Verkäufers teilerschlossen. Das Grundstück ist sofort bebaubar. 

** Bitte haben Sie Verständnis, dass wir ohne ein persönliches Gespräch über das Haus keine Grundstücksdaten weiterleiten.**

Sie haben bereits ein Grundstück? Dann lassen Sie sich beraten, wie wir Ihre Hausbauwünsche erfüllen können.
Sie möchten ein anderes Haus auf diesem Grundstück, oder Sie möchten ein anderes Grundstück zu diesem Haus? Dann rufen Sie uns einfach an - wir beraten Sie sehr gerne.

Sonstiges

INDIVIDUELLE TRAUMHÄUSER

Ihre Vorteile:
* Festpreisgarantie 18 Monate
* Alle Häuser sind bereits im Standard mehr als 50 % besser als es die ENEV-Anforderungen
* Ausstattung mit deutschen Markenprodukten
* Individuelles Bauen nach Ihren Wünschen
* mehr als 1.000 Haustypen: schlüsselfertig, energieeffizient - in zertifizierter Qualität.
* wirtschaftliche Planungssicherheit für Sie
 * Alles aus einer Hand

Anbieter

Atamela GmbH 76751 Jockgrim

Alle guten Dinge sind Drei - Drei Giebel Projektpreis!

Vertriebsansprechpartner: expose.salutation.NO_SALUTATION Horst Hellmann

Weitere Informationen finden Sie unter:
http://www.atamela.de (Website)
Impressum des Anbieters
Widerrufsbelehrung

EFH-139-45-75-Hausbild location icon 76863 Herxheimweyher
Wohnfläche
126,01 m²
Grundstücksfläche
490 m²
Zimmer
4
Kaufpreis
456.400 €
Finanzierung berechnen Anbieter kontaktieren