RESERVIERT - Haus 4 | Wohnung 3 | Obergeschoss

location icon Bromberger Straße 5, 38126 Viewegsgarten-Bebelhof, Braunschweig
In Zusammenarbeit mit Immoscout Logo

Informationen

Typ
Etagenwohnung
Etage
1 von 2
Wohnfläche ca.
98 m²
Nutzfläche ca.
9 m²
Zimmer
3
Schlafzimmer
3
Badezimmer
1
Anzahl Garage / Stellplatz
1 Außenstellplatz
  • Barrierefrei
  • Gäste-WC
  • Garten
  • Aufzug
  • Keller
  • Balkon

Kosten

Kaufpreis
430.000 €
Garage/ Stellplatz-Kaufpreis
7.500 €
Provision für Käufer
2,38% inkl. MwSt.
2,38 % Käuferprovision inkl. MwSt., verdient und fällig mit Beurkundung des notariellen Kaufvertrages. Der Immobilienmakler hat einen provisionspflichtigen Maklervertrag mit dem Eigentümer in gleicher Höhe abgeschlossen.

Bausubstanz & Energieausweis

Baujahr
2026
Objektzustand
Erstbezug
Ausstattung
Gehobene Qualität
Heizungsart
Fußbodenheizung
Wesentlicher Energieträger
Umweltwärme

Objektbeschreibung

Baubeginn Frühjahr 2026
10 exklusive Eigentumswohnungen


In der Bromberger Straße im Bezirk Viewegs Garten-Bebelhof entstehen für Ihre gehobenen Ansprüche bemerkenswerte Mehrfamilienhäuser. Zum Verkauf stehen je Mehrfamilienhaus 5 attraktive Wohnungen. 

Die Eigentumsgrundstücke der beiden Mehrfamilienhäuser sind 893,00 m² und 856,00 m² groß und bieten neben den Wohnungen genügend Freiraum und Aufenthaltsqualität sowie einen Teilkeller. Zu jeder Wohnung gehört ein großzügiger Kellerraum sowie ein Fahrradabstellplatz. Zudem kann zu jeder Wohnung ein separater PKW-Außenstellplatz (7.500,00 €) erworben werden; genügend Fahrrad-Abstellplätze sind selbstverständlich vorhanden. 

Die Mehrfamilienhäuser werden Stein auf Stein gebaut garantieren Ihnen einen modernen, zeitgemäßen sowie hochwertigen Standard. Die moderne Fassade fügt sich harmonisch in die Umgebung ein und ist als Dämmfassade mit Teilbereichen aus Klinkermauerwerk geplant. 

Die Mehrfamilienhäuser sind wie folgt aufgeteilt:

2 Wohnungen im Erdgeschoss mit Terrasse und kleinem Gartenanteil

2 Wohnungen im Obergeschoss mit Balkon
 
1 großes Penthouse mit großzügiger Dachterrasse

Alle Etagen sind über einen Personenaufzug zu erreichen.

Die Grundrisse sind je Etage wurden so konzipiert, um Ihnen den nötigen und individuellen Frei- sowie Gestaltungsraum zu ermöglichen. Eine hochwertige Ausstattung wie Fußbodenheizung, elektrische Rollläden, moderne Sanitärausstattung und umfangreiche Elektroinstallation gehören ebenso dazu. Beheizt wird jedes Haus mit einer Wärmepumpe mit integrierter Lüftungsanlage und Wärmerückgewinnungssystem. Die Mehrfamilienhäuser erfüllen die gesetzlichen Anforderungen des Effizienzhaus-Standards für Neubauten. 

Die Wohnungen in den beiden Mehrfamilienhäuser sind sowohl zur Eigennutzung als auch als Investitionsobjekt attraktiv, was durch die sehr gute, rückwärtige Verkehrslage besonders hervorzuheben ist!

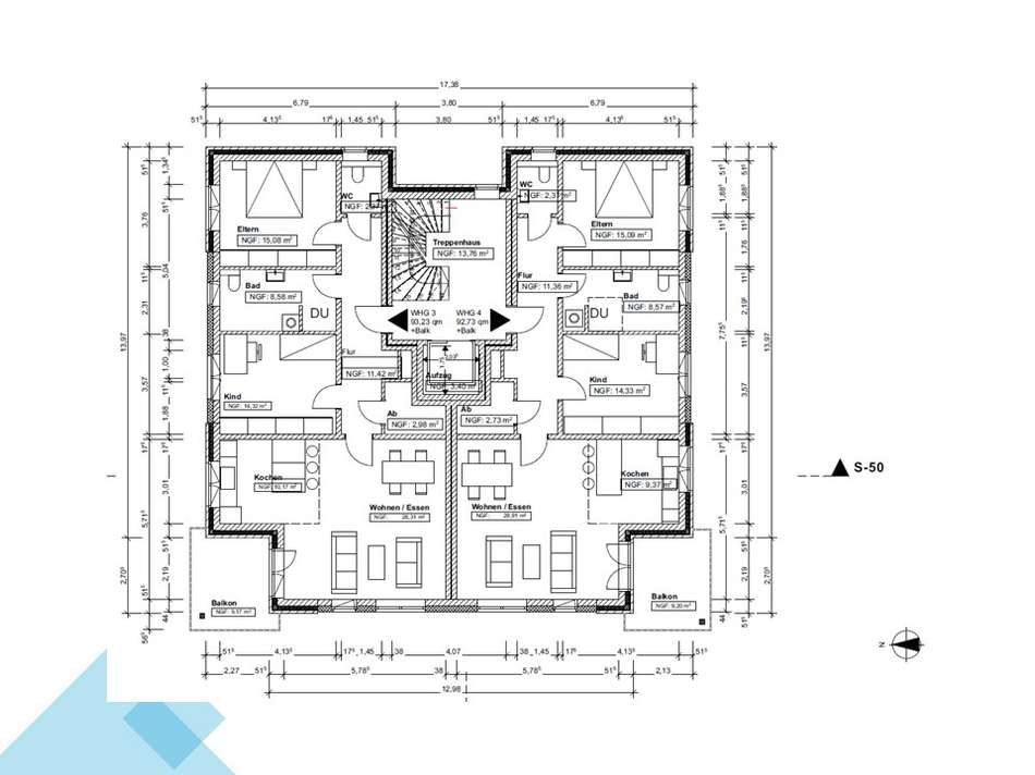
Grundriss

Haus 4 | OG gesamt
Haus 4 | OG gesamt
Haus 4 | Teilkeller
Haus 4 | Teilkeller

Ergänzende Links

Ausstattung

- Stein auf Stein 
  (auch die nicht tragenden Wände)
- Terrasse, Balkon oder Dachterrasse 
- 3 & 4 Zimmer  Wohnungen
- Offener und geräumiger 
  Wohn-/Küchenbereich
- Energiesparende Fußbodenheizung 
- Moderne Luft-Wärmepumpe
- Hochdämmende WDVS-Fassade
- Bodentiefe Fenster mit elektrischen 
  Außenrollläden  
- 3-Scheibenwärmeschutzverglasung
- Hochwertige Sanitärausstattung
- PKW-Einstellplatz ggf. Aufpreis
- uvm.

Lage

RESERVIERT - Haus 4  |  Wohnung 3  |  Obergeschoss
Bromberger Straße 5, 38126 Viewegsgarten-Bebelhof, Braunschweig
Der Bezirk Viewegs Garten-Bebelhof in Braunschweig ist ein vielfältiger Stadtteil mit einer Mischung aus Wohn-, Gewerbe- und Grünflächen. Er liegt südlich des Braunschweiger Hauptbahnhofs. 

Eine gute Verkehrsanbindung, egal ob mit Straßenbahn, Bus oder zur Autobahn, ist in direkter, fußläufiger Nähe oder in wenigen Autominuten gegeben. Mit dem BraWoPark Shopping-Center oder dem EDEKA Center Görke finden Sie zwei TOP-Nahversorger vor Ihrer Haustür. Schulen und Kindergärten wie die Grundschule Edith Stein oder der Kindergarten Rumpelstilzchen e.V. sind ebenfalls in der näheren Umgebung vorhanden. 

Auch beim Thema Naherholung kann die Lage punkten! Der Bürgerpark oder Viewegs Garten sind große, zum Teil historische Parkanlagen, die Grünflächen und Freizeitmöglichkeiten bieten. Die Bromberger Straße ist eine Wohnstraße, die sich durch Ihre ruhige, rückwärtige Lage und gute Infrastruktur auszeichnet.

Sonstiges

Haus 3

Wohnung 1 - EG links | Terrasse
Gartenanteil: ca. 93 m²
Wohnfläche: ca. 98 m²
Nutzfläche: ca. 10 m² (Keller)
Kaufpreis 450.500,00 € (Basis)


Wohnung 2 - EG rechts | Terrasse
Gartenanteil: ca. 120 m²
Wohnfläche: ca. 128 m²
Nutzfläche: ca. 9 m² (Keller)
Kaufpreis 582.000,00 € (Basis)


Wohnung 3 - OG links | Balkon 
Wohnfläche: ca. 98 m²
Nutzfläche: ca. 9 m² (Keller)
Kaufpreis 430.000,00 € (Basis)


Wohnung 4 - OG rechts | Balkon 
Wohnfläche: ca. 128 m²
Nutzfläche: ca. 9 m² (Keller)
Kaufpreis 556.000,00 € (Basis)


Wohnung 5 - Penthouse
Dachterrasse: ca. 70 m² 
Wohnfläche: ca. 184 m²
inkl. 50% (35 m²) Dachterrasse
Nutzfläche: ca. 15 m² (Keller)
Kaufpreis 893.000,00 € (Basis)

++++

Haus 4

Wohnung 1 - EG links | Terrasse
Gartenanteil: ca. 93 m²
Wohnfläche: ca. 98 m²
Nutzfläche: ca. 11 m² (Keller)
Kaufpreis 450.500,00 € (Basis)


Wohnung 2 - EG rechts | Terrasse
Gartenanteil: ca. 93 m²
Wohnfläche: ca. 97 m²
Nutzfläche: ca. 9 m² (Keller)
Kaufpreis 450.500,00 € (Basis)


Wohnung 3 - OG links | Balkon 
Wohnfläche: ca. 98 m²
Nutzfläche: ca. 9 m² (Keller)
Kaufpreis 430.000,00 € (Basis)


Wohnung 4 - OG rechts | Balkon 
Wohnfläche: ca. 97 m²
Nutzfläche: ca. 9 m² (Keller)
Kaufpreis 426.000,00 € (Basis)


Wohnung 5 - Penthouse
Dachterrasse: ca. 46 m² 
Wohnfläche: ca. 162 m²
inkl. 50% (23 m² Dachterrasse)
Nutzfläche: ca. 15 m² (Keller)
Kaufpreis 791.000,00 € (Basis)

Kaufpreisbasis enthält keine Bodenbeläge (Wohnung, Balkon) und Malerarbeiten.

Ausbaupaket inkl. Bodenbeläge und Malerarbeiten

Haus 3
- Wohnung 1 zzgl. 45.000,00 €
- Wohnung 2 zzgl. 52.000,00 €
- Wohnung 3 zzgl. 45.000,00 €
- Wohnung 4 zzgl. 52.000,00 €
- Wohnung 5 zzgl. 70.000,00 €

Haus 4
- Wohnung 1 zzgl. 45.000,00 €
- Wohnung 2 zzgl. 45.000,00 €
- Wohnung 3 zzgl. 45.000,00 €
- Wohnung 4 zzgl. 45.000,00 €
- Wohnung 5 zzgl. 65.000,00 €

++++

Alle Angaben sind ohne Gewähr und basieren ausschließlich auf Informationen, die uns vom Auftraggeber zur Verfügung gestellt wurden. Wir übernehmen keine Gewähr für die Vollständigkeit, Richtigkeit und Aktualität der Angaben.

Die Flächenangaben auf den Zeichnungen können von den Raumflächen der Wohnflächenberechnung nach WoFIV abweichen. Die dargestellte Außenvisualisierung dient ausschließlich illustrativen Zwecken und stellt keinen verbindlichen Ausbaustandard dar. Änderungen im Rahmen der weiteren Planung und Ausführung bleiben ausdrücklich vorbehalten.

Das Immobilienangebot ist unverbindlich. Irrtum sowie Zwischenverkauf bleiben ausdrücklich vorbehalten. Diese Information ist für Sie selbstverständlich kostenlos.

Erst bei Abschluss des Kaufvertrages fällt die oben genannte Maklercourtage an. Mit dem Zugang dieses Angebotes kommt ein Maklervertrag zustande. Bei Kauf verpflichtet sich der/die Käufer an Dirk Günsche Immobilien eine Maklerprovision - in der angegebenen Höhe - nach notariellem Kaufvertrag zu leisten. Durch Ihre Objektanfrage bestätigen Sie die Vereinbarung und Anerkennung dieser Maklercourtage. Die im Exposé ausgewiesene Provision zahlt auch der Auftraggeber bei Abschluss des notariellen Kaufvertrags.

Anbieter

Leila Bente Im Maschhoop 13, 38442 Wolfsburg

RESERVIERT - Haus 4  |  Wohnung 3  |  Obergeschoss

Vertriebsansprechpartner: Herr Dirk Günsche

Weitere Informationen finden Sie unter:
http://www.immo-guensche.de (Website)
Impressum des Anbieters
Widerrufsbelehrung

Haus 4 - Wohnung 3 location icon Bromberger Straße 5, 38126 Viewegsgarten-Bebelhof, Braunschweig
Wohnfläche
98 m²
Zimmer
3
Kaufpreis
430.000 €
Finanzierung berechnen Anbieter kontaktieren