Wohnen mit Charakter: Einfamilienhaus mit Blick, Ruhe und viel Raum

location icon 76889 Gleiszellen-Gleishorbach
In Zusammenarbeit mit Immoscout Logo

Informationen

Haustyp
Einfamilienhaus (freistehend)
Etagenanzahl
2
Wohnfläche ca.
201 m²
Nutzfläche ca.
42 m²
Grundstücksfläche ca.
933 m²
Bezugsfrei ab
sofort verfügbar
Zimmer
7
Schlafzimmer
4
Badezimmer
3
Anzahl Garage / Stellplatz
1 Garage
  • Gäste-WC

Kosten

Kaufpreis
470.000 €
Provision für Käufer
3,57 % inkl. 19 % MwSt.

Bausubstanz & Energieausweis

Baujahr
1970
Objektzustand
Gepflegt
Ausstattung
Normale Qualität
Heizungsart
Zentralheizung
Wesentlicher Energieträger
Öl
Energieausweis
liegt vor
Energieausweistyp
Bedarfsausweis
Endenergiebedarf
211,3 kWh/(m²*a)
Energie­effizienz­klasse
G
211,3 kWh/(m²*a)
Energie­effizienz­klasse G
  • A+
  • A
  • B
  • C
  • D
  • E
  • F
  • G
  • H
  • 0
  • 25
  • 50
  • 75
  • 100
  • 125
  • 150
  • 175
  • 200
  • 225
  • >250

Objektbeschreibung

Herzlich Willkommen in Ihrem neuen Zuhause!

Entdecken Sie dieses elegante, freistehende Einfamilienhaus in der bezaubernden Kulisse von Gleiszellen-Gleishorbach, erbaut 1970, erweitert im Jahr 1982 und wunderbar erhalten. Mit einer Wohnfläche von ca. 201 m², verteilt auf einem großzügigen Grundstück von ca. 933 m², bietet diese Immobilie ein außergewöhnliches Wohnerlebnis in einer gefragten Lage.

Beim Betreten des Hauses empfängt Sie ein weitläufiger Eingangsbereich, der Sie direkt ins Herz des Hauses führt: Ein stilvolles Wohnzimmer, erweitert durch eine überdachte Terrasse, die nahtlos in den sorgfältig angelegten Garten übergeht. Das angrenzende Esszimmer, direkt neben der funktional ausgestatteten Küche, verspricht gemütliche Abendessen und Zusammenkünfte in heimischer Atmosphäre. Zusätzlich gibt es auf dieser Ebene ein Gäste-WC, ein Badezimmer sowie eine Sommerküche, einen Wäscheraum und zwei praktische Abstellräume. Die Doppelgarage mit einem weiteren Abstellraum ist ebenfalls von hier zugänglich und bietet seit dem Anbau zusätzlichen Stauraum.

Ein weiteres Highlight ist das im Anbau von 1982 entstandene große Kaminzimmer im Zwischengeschoss, das in einen gemütlichen Wintergarten übergeht und Zugang zu einem einladenden Balkon bietet. Dieser Bereich ist ideal für entspannte Abende oder um Gäste in einem außergewöhnlichen Ambiente zu empfangen.

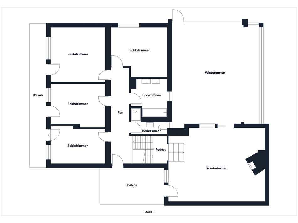
Im Obergeschoss finden sich ein weiteres Badezimmer mit Dusche, ein Badezimmer mit Badewanne sowie ein Schlafzimmer und drei weitere Zimmer, die alle auf einen zweiten Balkon führen und einen herrlichen Blick bieten.

Zusätzlich zur Doppelgarage bietet das Anwesen einen Stellplatz im Hof. Der weitläufige Garten auf einer höheren Ebene verzaubert mit seinem Panoramablick und lädt ein, die Natur in vollen Zügen zu genießen.

Dieses sofort verfügbare Zuhause ist ideal für diejenigen, die nach einem Ort suchen, der traditionellen Charme mit modernem Komfort verbindet und dabei keine Kompromisse in Punkto Stil und Lebensqualität macht.

Grundriss

Erdgeschoss
Erdgeschoss
Obergeschoss
Obergeschoss

Ausstattung

- Holz-Isofenster
- Gäste-WC
- 3 Badezimmer
- Kamin
- Wintergarten
- Doppelgarage
- Panoramaaussicht 

und vielem mehr...

Lage

Wohnen mit Charakter: 
Einfamilienhaus mit Blick, Ruhe und viel Raum
76889 Gleiszellen-Gleishorbach

Die genaue Adresse dieses Objekts erhalten Sie vom Anbieter.

Gleiszellen-Gleishorbach ist eine idyllische Weinbaugemeinde im Herzen der Südpfalz, umgeben von der malerischen Kulisse aus sanften Weinbergen und natürlicher Schönheit. Die Gemeinde verströmt eine ruhige und friedliche Atmosphäre, was sie zu einem idealen Wohnort für Natur- und Weinliebhaber macht.

Die Infrastruktur von Gleiszellen-Gleishorbach ist auf das ländliche Leben abgestimmt, wobei alltägliche Annehmlichkeiten und Dienstleistungen zur Verfügung stehen. Für die Bildung der jüngsten Einwohner gibt es im Ort eine Grundschule, während weiterführende Schulen und spezialisierte Bildungseinrichtungen in den umliegenden größeren Städten zugänglich sind, zu denen regelmäßige Busverbindungen bestehen.

Bewohner schätzen die kurzen Wege zu den umliegenden Ortschaften, wo sie alles für den täglichen Bedarf finden können. Die lokale Gastronomie zeichnet sich durch gemütliche Weinstuben und Restaurants aus, die neben guten Weinen auch pfälzische Spezialitäten anbieten und so die kulturelle Identität der Region widerspiegeln.

Darüber hinaus ist die Gemeinde ein attraktiver Ausgangspunkt für Ausflüge in den Naturpark Pfälzerwald oder zu den historischen Sehenswürdigkeiten der Region, was Gleiszellen-Gleishorbach auch für Touristen interessant macht. Die Verbindung aus ländlichem Charme und guter Erreichbarkeit von städtischer Infrastruktur macht dieses Dorf zu einem begehrten Wohnort, der sowohl Ruhe als auch Zugänglichkeit bietet.

Sonstiges

Kontaktieren Sie uns, um mehr über diese Immobilie zu erfahren und einen Besichtigungstermin zu vereinbaren.

Anbieter

Gensheimer hoch3 GmbH und Co. KG Hochstadter Str. 2b, 76877 Offenbach an der Queich

Wohnen mit Charakter: 
Einfamilienhaus mit Blick, Ruhe und viel Raum

Vertriebsansprechpartner: Herr Ernst Gensheimer

Weitere Informationen finden Sie unter:
http://www.gensheimerhoch3.de (Website)
Impressum des Anbieters

Startbild location icon 76889 Gleiszellen-Gleishorbach
Wohnfläche
201 m²
Grundstücksfläche
933 m²
Zimmer
7
Kaufpreis
470.000 €
Finanzierung berechnen Anbieter kontaktieren