Elegante & Stilvolle Loftwohnung über zwei Etagen - MA Oststadt

location icon 68165 Schwetzingerstadt/Oststadt, Mannheim
In Zusammenarbeit mit Immoscout Logo

Informationen

Typ
Loft
Etage
4 von 4
Wohnfläche ca.
170 m²
Nutzfläche ca.
20 m²
Zimmer
2,5
Schlafzimmer
1
Badezimmer
2
Anzahl Garage / Stellplatz
1 Außenstellplatz
  • Gäste-WC
  • Aufzug
  • Keller
  • Einbauküche

Kosten

Kaufpreis
1.272.500 €
Hausgeld
800,00 €
Provision für Käufer
Käuferprovision beträgt 3,57 % (inkl. MwSt.) des beurkundeten Kaufpreises

Bausubstanz & Energieausweis

Baujahr
2016
Objektzustand
Gepflegt
Ausstattung
Luxus Qualität
Heizungsart
Fernwärme

Objektbeschreibung

Diese exklusive Loft- Maisonettewohnung liegt im Herzen der Mannheimer Oststadt und bietet auf ca. 170 m² Wohnfläche eine Kombination aus historischem Charme und modernem Komfort. 
Der Wohnbereich erstreckt sich über zwei Ebenen und ist für anspruchsvolle Immobilienliebhaber konzipiert, die Wert auf unkonventionelles Design und eine hochwertige Ausstattung legen.
Beim Betreten der Wohnung gelangen Sie direkt in einen lichtdurchfluteten, offen gestalteten Wohnraum, der durch die hohen Decken ein beeindruckendes Raumgefühl schafft. 
Die Wohnung wurde als Neubau unter Denkmalschutzauflagen errichtet, was ihrem Charakter eine ganz besondere Note verleiht. 
Ein besonderes Highlight ist der Personenaufzug, der direkt zu der Wohnung führt und den Bewohnern exklusiven Zugang zur vierten Etage bietet. Die offene Küche fügt sich nahtlos in den Wohnbereich ein und ist mit hochwertigen Materialien und modernen Geräten ausgestattet, die Kochen zu einem Erlebnis machen. 
Die Raumaufteilung sorgt für eine harmonische Wohn- Atmosphäre, die von der durchdachten Lichtplanung unterstrichen wird. Für zusätzlichen Komfort sorgt die integrierte Klimaanlage, die in den Sommermonaten für angenehme Temperaturen sorgt. 
Die Wohnung verfügt über zwei moderne Tageslichtbäder, die mit edlen Armaturen & großzügigen Duschen ausgestattet sind, um den höchsten Ansprüchen gerecht zu werden. 
Ein zusätzliches Highlight ist der großzügige verglaste Wintergarten ähnliche Arbeitsbereich, der über spezielle Ziehharmonika-Fenster verfügt und somit bei jeder Witterung einen herrlichen Rückzugsort bietet. 
Der Zustand der Immobilie ist als gepflegt zu bezeichnen, da diese regelmäßig gewartet sowie instandgehalten wurde und entspricht somit den aktuellen Standards an Energieeffizienz und Wohnkomfort. 
Die Heizung erfolgt über umweltfreundliche Fernwärme, die unter dem Holz- Parkettboden verlegte Fußbodenheizung kann in der kalten Jahreszeit den Raum erwärmen & gleichzeitig in der warmen Zeit kühlen. 
Zur Wohnung gehört außerdem ein Außen- PKW-Stellplatz, der den Bewohnern eine bequeme Parkmöglichkeit bietet. Die Lage der Wohnung verbindet zentrale Annehmlichkeiten mit einer exklusiven Wohnatmosphäre. 
Sämtliche Einrichtungen des täglichen Bedarfs, wie Einkaufsmöglichkeiten, Restaurants und öffentliche Verkehrsmittel, sind in unmittelbarer Nähe und bequem erreichbar.
Diese exklusive Wohnung ist ab sofort bezugsfrei und bietet Ihnen die Möglichkeit, in eine Immobilie mit geschichtsträchtigem Ambiente und modernem Wohnkomfort zu investieren. 
Die Kombination aus historischem Flair, moderner Ausstattung und zentraler Lage machen diese Loftwohnung zu einem besonderen Angebot in der Oststadt.

Hier ein link zu einem 360° Rundgang: 
https://tour.ogulo.com/T1C9

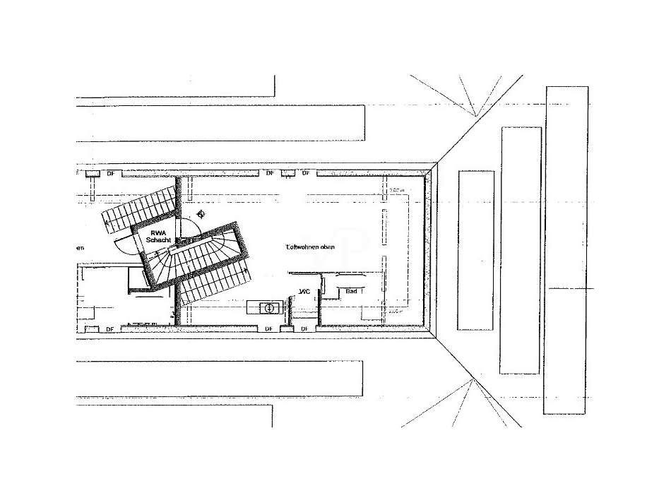
Grundriss

Loftwohnen_unten
Loftwohnen_unten
Loftwohnen_oben
Loftwohnen_oben

Ausstattung

- Großzügiger, offener Wohn- und Essbereich mit Design-Küche
- Zwei luxuriöse Tageslichtbäder mit edlen Armaturen & bodengleichen Duschen
- Fußbodenheizung mit Heiz- und Kühlfunktion (Fernwärme)
- Hochwertiges Echtholzparkett
- Personenaufzug mit Zugang zur Wohnebene (3. OG mit eigenem Eingang)
- Denkmalschutz 
- hohe Decken
- offen gestaltete Wohnräume
- exklusive Ausstattung
- offene Küche
- hochwertige Einbauküche 
- zwei moderne Tageslichtbaeder 
- Personenaufzug
- Stellplatz
- Klimaanlage
- Parkettboden 
- Fußbodenheizung 
- Fernwärme 
- Kellerraum 
- beliebte & zentrale Lage Mannheim / Oststadt 
- Einbauschränke 
- Faltfenster 

hier ein link zu einem 360° Rundgang: 
https://tour.ogulo.com/T1C9

Lage

Elegante & Stilvolle Loftwohnung über zwei Etagen - MA Oststadt
68165 Schwetzingerstadt/Oststadt, Mannheim

Die genaue Adresse dieses Objekts erhalten Sie vom Anbieter.

Die Mannheimer Oststadt zählt zu den exklusivsten und gefragtesten Wohnlagen der Stadt. 
Zentrumsnah und zugleich ruhig gelegen, verbindet sie urbanes Leben mit hoher Wohn- und Lebensqualität.
Geprägt von stilvoller Architektur, großzügigen Alleen und einem gewachsenen, gehobenen Umfeld, bietet die Lage eine ausgezeichnete Infrastruktur und ein gepflegtes nachbarschaftliches Miteinander.
Der nahegelegene Obere Luisenpark lädt zu Sport, Erholung und Freizeit im Grünen ein – ein echtes Plus im städtischen Alltag. 
Zahlreiche Cafés, Restaurants, Kultureinrichtungen und Einkaufsmöglichkeiten sind ebenso schnell erreichbar wie der Hauptbahnhof, die Universität oder das Stadtzentrum.
Des Weiteren bestehen sehr gute Anbindungen an den öffentlichen Personennahvekehr sowie an die Autobahnanschlüsse (A6, A656 ).

Sonstiges

GELDWÄSCHE: Als Immobilienmaklerunternehmen ist die von Poll Immobilien GmbH nach § 2 Abs. 1 Nr. 14  und § 11 Abs. 1, 2 Geldwäschegesetz (GwG) dazu verpflichtet, bei der Begründung einer Geschäftsbeziehung die Identität des Vertragspartners festzustellen und zu überprüfen, bzw. sobald ein ernsthaftes Interesse an der Durchführung des Immobilienkaufvertrages besteht. Hierzu ist es erforderlich, dass wir nach § 11 Abs. 4 GwG die relevanten Daten Ihres Personalausweises festhalten (wenn Sie als natürliche Person handeln) – beispielsweise mittels einer Kopie. Bei einer juristischen Person benötigen wir eine Kopie des Handelsregisterauszugs, aus welchem der wirtschaftlich Berechtigte hervorgeht. Das Geldwäschegesetz sieht vor, dass der Makler die Kopien bzw. Unterlagen fünf Jahre aufbewahren muss. Als unser Vertragspartner haben Sie auch eine Mitwirkungspflicht nach § 11 Abs. 6 GwG.
 
HAFTUNG: Wir weisen darauf hin, dass die von uns weitergegebenen Objektinformationen, Unterlagen, Pläne etc. vom Verkäufer bzw. Vermieter stammen. Eine Haftung für die Richtigkeit oder Vollständigkeit der Angaben übernehmen wir daher nicht. Es obliegt daher unseren Kunden, die darin enthaltenen Objektinformationen und Angaben auf ihre Richtigkeit hin zu überprüfen. Alle Immobilienangebote sind freibleibend und vorbehaltlich Irrtümer, Zwischenverkauf- und Vermietung oder sonstiger Zwischenverwertung.

UNSER SERVICE FÜR SIE ALS EIGENTÜMER: 
Planen Sie den Verkauf oder die Vermietung Ihrer Immobilie, so ist es für Sie wichtig, deren Marktwert zu kennen. Lassen Sie kostenfrei und unverbindlich den aktuellen Wert Ihrer Immobilie professionell durch einen unserer Immobilienspezialisten einschätzen. Unser bundesweites und internationales Netzwerk ermöglicht es uns, Verkäufer bzw. Vermieter und Interessenten bestmöglich zusammenzuführen.

Anbieter

VON POLL IMMOBILIEN Mannheim - Barbara Busch Seckenheimer Straße 30a, 68165 Mannheim

Elegante & Stilvolle Loftwohnung über zwei Etagen - MA Oststadt

Vertriebsansprechpartner: expose.salutation.NO_SALUTATION VON POLL IMMOBILIEN Shop Mannheim

Weitere Informationen finden Sie unter:
http://www.von-poll.com (Website)
Impressum des Anbieters

TBWohnung location icon 68165 Schwetzingerstadt/Oststadt, Mannheim
Wohnfläche
170 m²
Zimmer
2,5
Kaufpreis
1.272.500 €
Finanzierung berechnen Anbieter kontaktieren