Hausansicht
Hausansicht
Hausansicht
Hausansicht
Hausansicht
Hausansicht
Hausansicht
Hof
Hof
Werkstatt
Werkstatt
Werkraum
Werkraum
Eingang
Treppenaufgang
Badezimmer
Küche
Küche
Esszimmer
Esszimmer
Esszimmer
Wohnzimmer
Wohnzimmer
Schlafzimmer
Badezimmer
Badezimmer
Badezimmer
Balkon
Kinderzimmer
Durchgangsraum
Wintergarten
Wintergarten
Badezimmer OG.
Badezimmer OG.
Badezimmer OG.
Badezimmer OG.
140043121846-EG Kopie 2
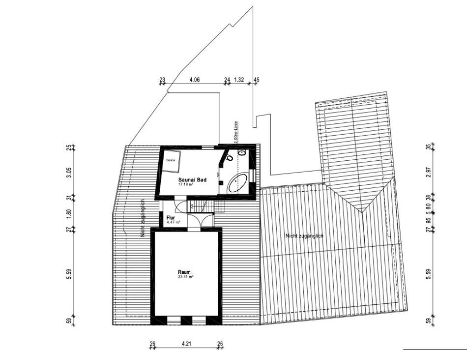
140043121846-1.OG Kopie 2

Weingut komplett saniert mit Hof, Terrasse, Wintergarten und Werkstatträume

location icon 76829 Ranschbach
In Zusammenarbeit mit Immoscout Logo

Informationen

Etagenanzahl
2
Wohnfläche ca.
206 m²
Nutzfläche ca.
200 m²
Grundstücksfläche ca.
370 m²
Bezugsfrei ab
nach Absprache!
Zimmer
4
Badezimmer
2
  • Gäste-WC

Kosten

Kaufpreis
399.999 €
Provision für Käufer
3,57% inkl. 19% MwSt. vom Kaufpreis
3,57 % Käuferprovision inkl. MwSt., verdient und fällig mit Beurkundung des notariellen Kaufvertrages. Der Immobilienmakler hat einen provisionspflichtigen Maklervertrag mit dem Verkäufer in gleicher Höhe abgeschlossen.

Bausubstanz & Energieausweis

Baujahr
1717
Modernisierung/ Sanierung
zuletzt 2024
Objektzustand
Saniert
Ausstattung
Gehobene Qualität
Heizungsart
Zentralheizung
Wesentlicher Energieträger
expose.attributes.energySourcesEnev2014.WOOD_CHIPS
Energieausweis
liegt vor
Energieausweistyp
Bedarfsausweis
Endenergiebedarf
168,8 kWh/(m²*a)
Energie­effizienz­klasse
F
168,8 kWh/(m²*a)
Energie­effizienz­klasse F
  • A+
  • A
  • B
  • C
  • D
  • E
  • F
  • G
  • H
  • 0
  • 25
  • 50
  • 75
  • 100
  • 125
  • 150
  • 175
  • 200
  • 225
  • >250

Objektbeschreibung

Wohnen an der Deutschen Weinstraße in einer perfekten Umgebung. Das könnte das Motto dieses bemerkenswerten Objekts sein.

Die von uns exklusiv angebotene, seltene Weingut-Immobilie mit Hof, Terrasse, überdachte Stellplätze sowie Werkstatträume befindet sich in einem sehr seltenen gepflegtem Top-Zustand.
Der Grundriss dieses Objekts bietet variable Raumaufteilung & die Wohnlage sorgt für angenehme individuelle Wohnatmosphäre. 

Renovierungsauflistung seit 2012

-Fenster im Altbau 
-Hackschnitzelheizung mit kompletter Installation 
-Elektroinstallation 
-Dämmung der Außenwände 
-komplette Wasserinstallation 
-Gäste-WC mit Dusche und Hauswirtschaftsraum 
-Bodenbelag (Vinyl und Fliesen)
- neue Raumaufteilung
-Solaranlage

Renovierung 2014
-Pflasterung und Abwasser im Innenhof 

Renovierung 2015
-Duschbad mit Fußbodenheizung 

Renovierung 2018
-Wintergarten mit Fußbodenheizung und Terrassenversiegelung 
-neues Terrassengeländer 

Renovierung 2020
-Flur und Treppen neu gestaltet 

Renovierung 2021
-Gäste-WC im Innenhof 

Renovierung 2022
-Bad im 2.0G mit Infrarotkabine und Eck-Badewanne 

Renovierung 2023
-kompl-Aussenanstrich Fassade

Renovierung 2024
-Dach neu eingedeckt (ältester Teil des Hauses)
-teilweise neuer Anstrich der Innenräume

Die Raumaufteilung entnehmen Sie den beigefügten Grundrissen. 

Genießen Sie schon jetzt die Vorfreude auf Ihre Traumimmobilie.

Weiters bitte auf Anfrage!

Weitere Dokumente

Lage

Weingut komplett saniert mit Hof, Terrasse, Wintergarten und Werkstatträume
76829 Ranschbach

Die genaue Adresse dieses Objekts erhalten Sie vom Anbieter.

Sonstiges

Bitte haben Sie Verständnis, dass wir nur Anfragen mit vollständig angegebener Adresse und Telefonnummer bearbeiten können.

Wir weisen in diesem Zusammenhang darauf hin, dass Sie laut § 4 Abs. 6 und § 6 Abs. 2 Nr.1 Satz 6 Geldwäschegesetz verpflichtet sind, dem Immobilienmakler Ihre Identität nachzuweisen sowie die dazu erforderlichen Informationen und Unterlagen zur Verfügung zu stellen.

Ansprechpartner:

Herr Patric Lyncker

Geschäftssitz: Otto-Hahn-Straße 3b
67454 Haßloch Tel: 06324-9704740

Alle Angaben sind ohne Gewähr und basieren ausschließlich auf Informationen, die uns vom Auftraggeber zur Verfügung gestellt wurden. Wir übernehmen keine Gewähr für die Vollständigkeit, Richtigkeit und Aktualität dieser Angaben.

Mit der Anfrage auf dieses Objekt erklärt der Interessent seine ausdrückliche Einwilligung für die Kontaktaufnahme per Telefon oder E-Mail durch einen unserer Mitarbeiter.

Alle Gespräche sind über unser Büro zu führen. Bei Zuwiderhandlung behalten wir uns Schadenersatz bis zur Höhe der Provisionsansprüche ausdrücklich vor. Zwischenverkauf ist nicht ausgeschlossen.

Der Käufer zahlt im Erfolgsfall an das oben genannte Maklerunternehmen eine Käufer-Maklerprovision in Höhe von 3,57% inklusive 19% Mehrwertsteuer. Die Provision errechnet sich aus dem beurkundeten Kaufpreis.
Lyncker Immobilien hat mit dem Verkäufer einen provisionspflichtigen Maklervertrag in gleicher Höhe abgeschlossen (Maklervertrag nach § 656 c BGB).


Gerne stehen wir Ihnen nach Terminabsprache für eine Besichtigung zur Verfügung.

Die Firma Lyncker Immobilien handelt im Makler-Allein-Auftrag

Anbieter

Immobilien Lyncker Otto-Hahn-Str. 3b, 67454 Haßloch

Weingut komplett saniert mit Hof, Terrasse, Wintergarten und Werkstatträume

Vertriebsansprechpartner: Herr Patric Lyncker

Weitere Informationen finden Sie unter:
http://www.immobilien-lyncker.de (Website)
Impressum des Anbieters
Widerrufsbelehrung

Hausansicht location icon 76829 Ranschbach
Wohnfläche
206 m²
Grundstücksfläche
370 m²
Zimmer
4
Kaufpreis
399.999 €
Finanzierung berechnen Anbieter kontaktieren