Großzügiges Dreifamilienhaus mit Gewerbeteil auf riesigem Grundstück – ideal auch als Bauplatz!

location icon 72820 Sonnenbühl
In Zusammenarbeit mit Immoscout Logo

Informationen

Haustyp
Mehrfamilienhaus
Etagenanzahl
3
Wohnfläche ca.
332,5 m²
Nutzfläche ca.
614,3 m²
Grundstücksfläche ca.
1.500 m²
Bezugsfrei ab
1.5.2025
Zimmer
12
Schlafzimmer
9
Badezimmer
3
Anzahl Garage / Stellplatz
5 Garagen
  • Gäste-WC
  • Keller
  • Vermietet

Kosten

Kaufpreis
720.000 €
Provision für Käufer
4,76% inkl. MwSt

Bausubstanz & Energieausweis

Baujahr
1904
Modernisierung/ Sanierung
zuletzt 2017
Objektzustand
Nach Vereinbarung
Heizungsart
Zentralheizung
Wesentlicher Energieträger
Öl
Energieausweis
liegt vor
Energieausweistyp
Bedarfsausweis
Endenergiebedarf
274,5 kWh/(m²*a)
Energie­effizienz­klasse
G
274,5 kWh/(m²*a)
Energie­effizienz­klasse G
  • A+
  • A
  • B
  • C
  • D
  • E
  • F
  • G
  • H
  • 0
  • 25
  • 50
  • 75
  • 100
  • 125
  • 150
  • 175
  • 200
  • 225
  • >250

Objektbeschreibung

Zum Verkauf steht ein großes Anwesen in Sonnenbühl-Undingen, bestehend aus einem Dreifamilienhaus und einer angrenzenden ehemaligen Textilfabrik. Dieses Ensemble bietet nicht nur eine großzügige Wohnfläche, sondern auch vielseitige Nutzungsmöglichkeiten für Investoren, Gewerbetreibende oder Liebhaber historischer Immobilien.

Lage:
Das Dreifamilienhaus befindet sich in Sonnenbühl-Undingen, einer idyllischen Gemeinde im Landkreis Reutlingen, Baden-Württemberg. Die Lage besticht durch ihre ruhige und naturnahe Umgebung, eingebettet in die sanften Hügel der Schwäbischen Alb. Gleichzeitig bietet die Lage eine gute Anbindung an die umliegenden Städte, insbesondere Reutlingen und Tübingen, die in kurzer Fahrzeit erreichbar sind. Geschäfte des täglichen Bedarfs, Schulen und öffentliche Verkehrsmittel sind ebenfalls in unmittelbarer Nähe vorhanden.

Objektdaten:
Objektart: Dreifamilienhaus mit angeschlossener, ehemaliger Textilfabrik
Baujahr: 1904 (Textilfabrik), ca. 1925 (Wohnhaus)
Wohnfläche: ca. 332,5 m² (aufgeteilt in 3 Wohneinheiten)
Grundstücksfläche: ca. 1.500 m²
Nutzfläche (Fabrik): ca. 614,30 m²
Zimmer: 12 (gesamt)
Kaufpreis: 800.000 EUR

Details zum Wohnhaus:
Das Dreifamilienhaus verfügt über drei großzügig geschnittene Wohneinheiten, die sich über drei Stockwerke erstrecken. Jede Einheit bietet einen separaten Eingang, was sowohl eine Nutzung als Mehrgenerationenhaus als auch eine Vermietung ermöglicht. Die Wohnungen sind zum Teil modernisiert und verfügen über:

Wohnungen: 3 ( 122,62 qm + 99,81 qm + 85,56 qm)
Zustand: Gut gepflegt, teilweise modernisiert
Böden: Parkett,  Laminat, Fliesen
Heizung: Öl-Zentralheizung + 2 Kaminöfen
Besonderheiten: großer Garten, 5 Garagen mit Stellplätze
Details zur ehemaligen Textilfabrik:
Die angrenzende Textilfabrik bietet eine Vielzahl an Nutzungsmöglichkeiten. Das Gebäude hat einen historischen Charakter und könnte beispielsweise in eine Werkstatt, ein Atelier, oder auch in Loftwohnungen umgewandelt werden. Die Fabrikhalle beeindruckt durch ihre hohen Decken und die robusten Bauweise.

Nutzfläche: ca. 614,30 m²
Zustand: Renovierungsbedürftig
Besonderheiten: Historischer Charme, Ausbaupotential
Potenzial und Nutzungsmöglichkeiten:
Dieses Objekt bietet zahlreiche Nutzungsmöglichkeiten. Es eignet sich sowohl als Wohnhaus für eine große Familie, zur Vermietung als auch zur gewerblichen Nutzung. Die ehemalige Textilfabrik könnte mit dem richtigen Konzept zu einem wahren Schmuckstück entwickelt werden. Ob Atelier, Eventlocation oder Loftwohnungen – der Fantasie sind keine Grenzen gesetzt.

Besichtigung und Kontakt:
Dieses schöne Anwesen können Sie nach vorheriger Terminvereinbarung besichtigen. Kontaktieren Sie uns, um weitere Informationen zu erhalten oder einen Besichtigungstermin zu vereinbaren.

Kontakt: 
Ulrike Foullon
Tel: 01578-1782134
info@neckarhaus-immobiilien.de

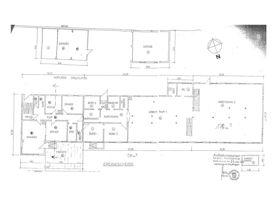
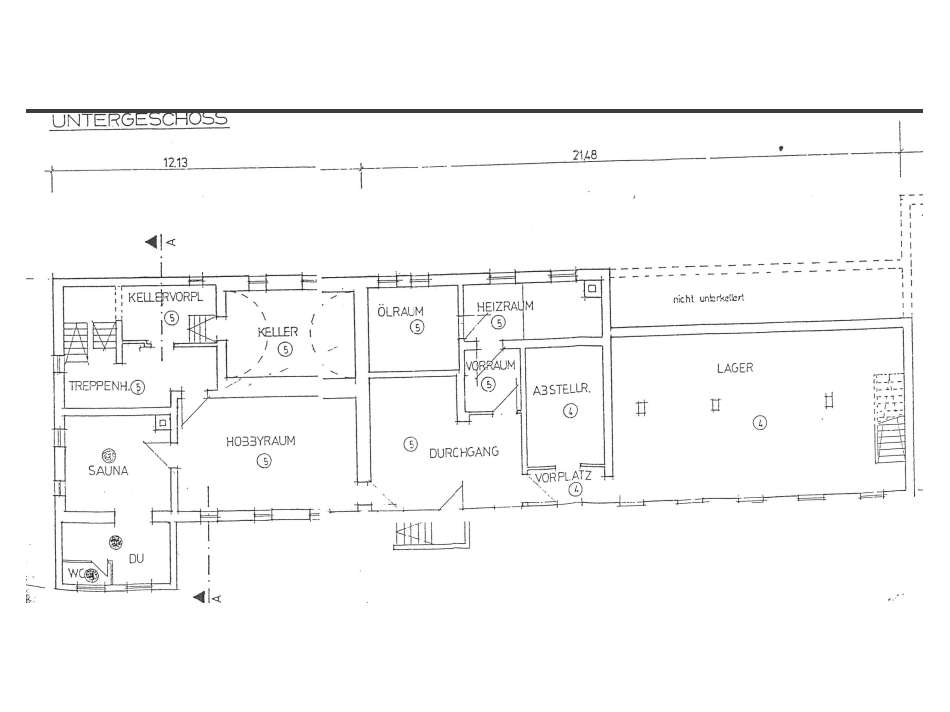
Grundriss

Grundriss UG1
Grundriss UG1
Grundriss EG
Grundriss EG
Grundriss OG
Grundriss OG
Grundriss DG
Grundriss DG

Ausstattung

- 3 Wohneinheiten + 1 Gewerbeeinheit, ehemalige Fabrik
- 5 Garagen
- Gewölbekeller, Sauna, Heizung, Hobbyraum
- EG 4 Zimmerwohnung
- 1.OG 4 Zimmerwohnung, vermietet
- 2. OG 4 Zimmerwohnung + Galerie, vermietet

Lage

Großzügiges Dreifamilienhaus mit Gewerbeteil auf riesigem Grundstück – ideal auch als Bauplatz!
72820 Sonnenbühl

Die genaue Adresse dieses Objekts erhalten Sie vom Anbieter.

Sonstiges

Modernisierungen:
- ca. im Jahr 2000 Dach (10-12 cm Dämmung)
- Heizung ca. im Jahr 2000
- Solaranlage für Warmwasser ca. im Jahr 2014

Anbieter

Neckarhaus-Immobilien Weibermarkt 2, 72764 Reutlingen

Großzügiges Dreifamilienhaus mit Gewerbeteil auf riesigem Grundstück – ideal auch als Bauplatz!

Vertriebsansprechpartner: Frau Ulrike Foullon

Weitere Informationen finden Sie unter:
https://neckarhaus-immobilien.de (Website)
Impressum des Anbieters
Widerrufsbelehrung

Hausansicht location icon 72820 Sonnenbühl
Wohnfläche
332,5 m²
Grundstücksfläche
1.500 m²
Zimmer
12
Kaufpreis
720.000 €
Finanzierung berechnen Anbieter kontaktieren